查看完整案例


收藏

下载
一花一世界
一树一菩提
摒弃纷扰的杂念
专注在自己喜欢的事情上
总会有意想不到的收获
为自己布置一个美丽舒适的家居环境,更多的是选择一种生活方式。牡丹里的一位女业主在工作闲暇之余,种植了300多盆多肉,是个富有生活情趣的女主人。五颜六色的多肉不仅让整个家庭氛围更温馨美好,也让自己有一个美丽的好心情!
工程地点:牡丹里
装修风格:美式
主要材料:墙面乳胶漆,地面地砖地板,吊顶 ,装饰玻璃隔断
项目面积:90㎡
户型结构:三房一厅一厨一卫
合作模式:半包+舜恒冷暖+阖沐家软装
装修预算:
半包6.5万,总造价25万含家具家电
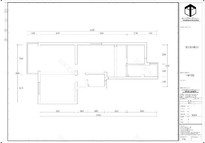
牡丹里原始结构图
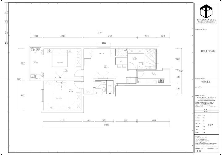
牡丹里平面布置图
— 客厅 —
在本套平面方案中,对户型的格局做出了一定的调整——拆除了小房间和客厅之间的隔墙,调整了儿童房的开门方向,客厅和儿童房之间
采用通透的玻璃隔断
,配上黑色的边框和纯色窗帘,既保证了空间的通透宽敞,又满足了儿童房的私密性
。
蓝与白的色彩搭配,让居室明亮而舒朗。
▼
— 餐厅 —
餐厅区域保留了原有的结构柱,在旁边增设了装饰酒柜,酒柜前方采用卡座的设计,增加了餐厅的收纳功能。同时兼顾了美观度,卡座来自于尚居旗下阖沐家,饱满浓郁的蓝色与窗帘相呼应,使整体感更协调,墙面采用白色乳胶漆,让房间内的光线更为透亮。
▼
— 儿童房 —
儿童房拥有非常好的采光效果,白色的木质书橱和浅蓝色的窗帘搭配,让整个居室倍加清新简约,为女孩营造了舒适活泼、学习与休息一体化的生活氛围。
▼
— 卧室 —
卧室的格调简素而温馨,
没有繁文缛节的装饰,
如同女主人温婉而热爱生活的个性。不同于客厅明快的节奏,卧室给人一种缓慢而温情的步调——带走身体的疲惫,让灵魂焕然新生。
▼
— 厨房 —
蓝色的墙砖为厨房带来了一阵清凉感,也使得环境更加整洁、明净。一组白色实木厨具让整个厨房散发着浓浓的美式氛围。
▼
尚居装饰
∣
互联网家装领导品牌
秦淮区中华路333号二楼
025-58070499
戳原文,更有料!
客服
消息
收藏
下载
最近





















