查看完整案例


收藏

下载
灰色系天生优雅,不同深浅的搭配效果,既协调又有层次感。与深灰的结合,低调而质朴,适当加入黄色,又能营造出雅致高级家居环境。
▲
本案整体的环境以干净沉稳的浅灰色为基调,烘托居者宁静雅致的生活氛围,而家具和饰品则以鲜明的对比色来表达居者豁达乐观的处世方式。
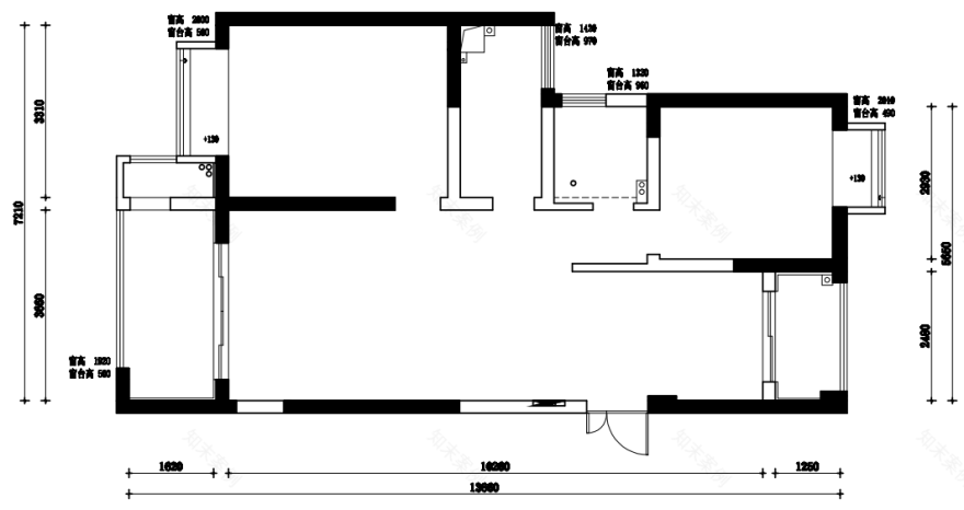
▲ 原始结构图
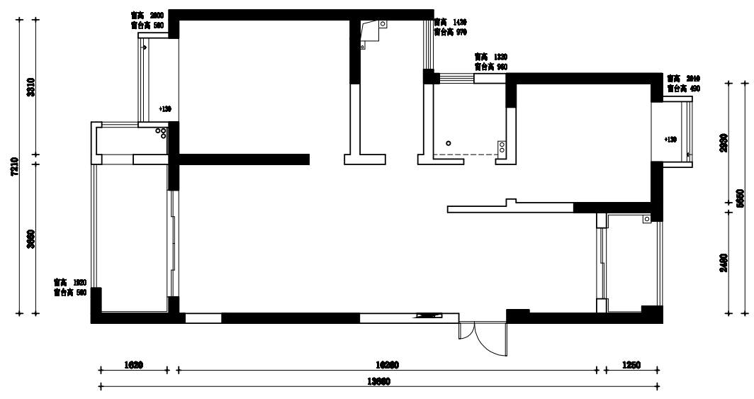
▲ 平面布置图
项目名称:中电颐和府邸
项目性质:新房装修
项目风格:
现代轻奢
户型格局:三室两厅
项目面积:105平米
设计师:唐馨
▲ 结合屋主人的喜好,整体空间简洁舒适,线条明朗,灰白搭配的空间中利用暖黄的灯带、电视背景墙金属包边、轻奢黄铜角几、座椅等明亮色彩打破沉静。
▲ 深灰色和浅灰色,
减弱了色彩之间的相互角力,更像是彼此的进阶。
搭配白色、肉粉色、雾霾蓝色...都令客厅朴素而优雅,低调而不单调。
▲ 线条简洁的阳台推拉门,释放大量光线进来,大大增强室内明亮度,阳台全墙面立柜扩大收纳功能,美观又实用。
▲ 金属茶几和单人椅,玻璃和大理石背景墙及小饰品的穿插又形成了极富层次感的虚实搭配。
▲ 门厅望向客餐厅视角,南北通透
▲ 餐桌旁边增设橱柜,增加杯碟碗盏的收纳,分担了厨房的压力。白色橱柜搭配金属不规则灯具,优雅精致。
▲ 深灰色餐椅搭配爵士白大理石餐桌,尽显轻奢气质。
▲ 厨房,定制L型柜体与台面,使操作动线更加流畅,网红小白砖自带清新气质,黑白灰经典纹地砖耐脏易打理。
▲ 次卧简约质朴,整体配色相互呼应,极简顶面点缀简约吊灯,阳台设计别具一格,小收纳空间自成天地。衣柜设计简洁又大方,金属把手呼应灯具,串联全屋风格。
▲ 床头柜造型独特,色彩呼应背景墙。
▲ 主卧以不同明度的蓝为主调,再配上金属色彩修饰,温柔安静又充满干练气质。
▲ 主卧收纳柜靠墙而立,装饰画突出跳跃,充满活力。
▲ 书房一角改造成大脑的休息区,放松的思维随着画笔漫游天际。
▲ 卫生间,干湿分离的洗漱区域,镜面嵌入特点鲜明的背景中,台盆下雅致双开门柜,可以收纳常用洗漱品。
往期成品案例品鉴
尚居实景案例丨大新华府84㎡现代北欧风格
尚居实景案例丨熙龙山院200㎡轻奢风格
尚居实景案例 | 136㎡美式轻奢风
· · · ·
公司地址:秦淮区中华路333号二楼
家装热线:134-0585-9085
客服
消息
收藏
下载
最近





























