查看完整案例


收藏

下载
| 奢享主卧、畅享衣帽间,还有干湿分离洗漱区 |
| 简约设计130㎡,一家三口共享自由 |
小区名称:融侨中央花园
户型格局:三室一厅
户型面积:130㎡
设计风格:现代简约
越来越多的家庭
希望在居所中
能够有一间
媲美高级购物场所中的衣帽间
还希望拥有夫妻自己独立的洗漱区域
还有随着时间的堆积
家中能够容纳各类物品的杂物空间
这一切在他们家得到解决
……
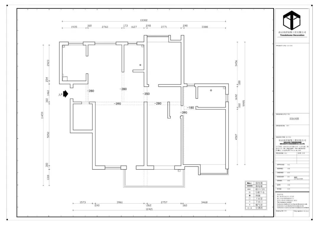
原始结构图
原户型方正,南北通透。
但多道隔墙将房屋分割成多个小空间,
对于生活来说十分不便。
用户提出希望能够将空间扩大,
提升居住舒适度,
并为孩子扩大玩耍空间和长大后的独立生活空间。
面对用户需求,设计师从来都是匠心巧思,
最终决定将多道隔墙拆除,空间合并。
并在原来用户需求的基础上设计出
独立衣帽间、杂物间等区域。
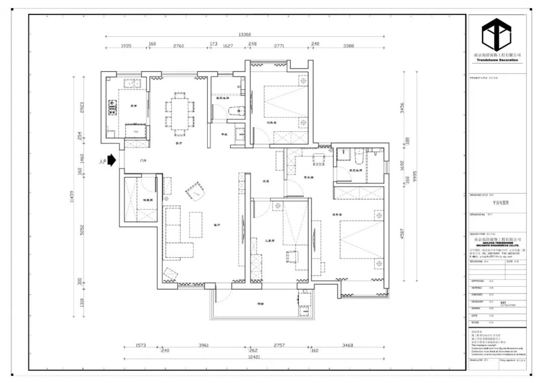
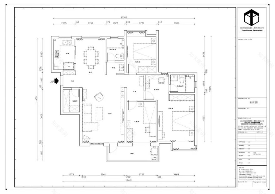
平面设计图
设计亮点:
1、
主卧空间面积拓宽,主卧设置卫生间和衣帽间,私密性好;
2、
儿童房母子床设计,且紧邻主卧。
玄关
进门玄关区,左手边定制有中空设计的鞋帽柜,方便进出。
右手边延伸出杂物间,收纳家中暂时不用的一切杂物。
站在客厅看玄关
客餐厅
站在玄关的视角
客厅细节图
原户型中的客厅区域户型方正,南北通透,
餐客厅一气呵成,居家休闲自由切换。
设计师从空间上一分为二,
右边为客厅,为用户提供聚会休闲场所;
左边为餐厅,为用户提供生活就餐场所。
站在客厅看餐厅
站在餐厅看厨房
客餐厅设计简洁大方,线条明朗
。
餐厅与厨房采用玻璃推拉门,
全屋保留大面积窗户,采光度非常好。
卧室
客厅角度看走道
站在衣柜处角度
站在床头看衣帽间
衣帽间局部
从正门进入主卧,
首先看到的是与卫生间相连的衣帽间。
整体设计延续了简约的格调,
淡雅色系营造宁静舒适的氛围。
衣帽间旁边还设立了化妆台,
满足女主人日常化妆保养及着装更衣的小需求。
休息时,也可替代写字台,
在这里写写字看看书,自由又惬意。
卫生间内景
主卧自带卫生间,
简约的白色墙砖搭配原木柜体,
营造出干净、明亮、清新的气质。
洗手台下的储物柜增加收纳空间,
用卫生间时也方便放置手机、书籍等物品。
儿童房
儿童房内景
儿童房墙体粉色乳胶漆覆盖,氛围更温馨。
母子床更适合孩子成长期,
对于喜欢爬上爬下的小朋友来说,
每天上床下床都是一件非常开心的事儿。
居所至于家是最终的呈现,
每个家都不一样,
居住在家里的人也各有各的不同。
设计师在设计之初则会重视用户个人情感方式,
关注其差异,充分了解他们的需求和兴趣,
关注生活其间的人,生活其间的家庭,
处理好用户的生理、心理与环境关系的问题,
才能真正做到为用户量身定做。
客服
消息
收藏
下载
最近























