查看完整案例


收藏

下载
美 · 因苛求
“家”的优雅感一直都影响着我们的生活
“家”的设计迷人之处
是因为它无限地还原人的血肉
带有故事和情感
我们常常很难回答关于风格的问题
The elegance of "home" has always influenced our life.
The design of "home" is charming because it can restore human flesh and blood infinitely, with stories and emotions.
We often have trouble answering questions about style.
居住在高楼林立的都市人们
被城市中的低气压压得喘不过气
开始寻求更多户外活动与自然共生的生活方式
People living in high-rises in cities,
Overwhelmed by the low air pressure in the city,
they began to seek
more outdoor activities and a way of living with nature.
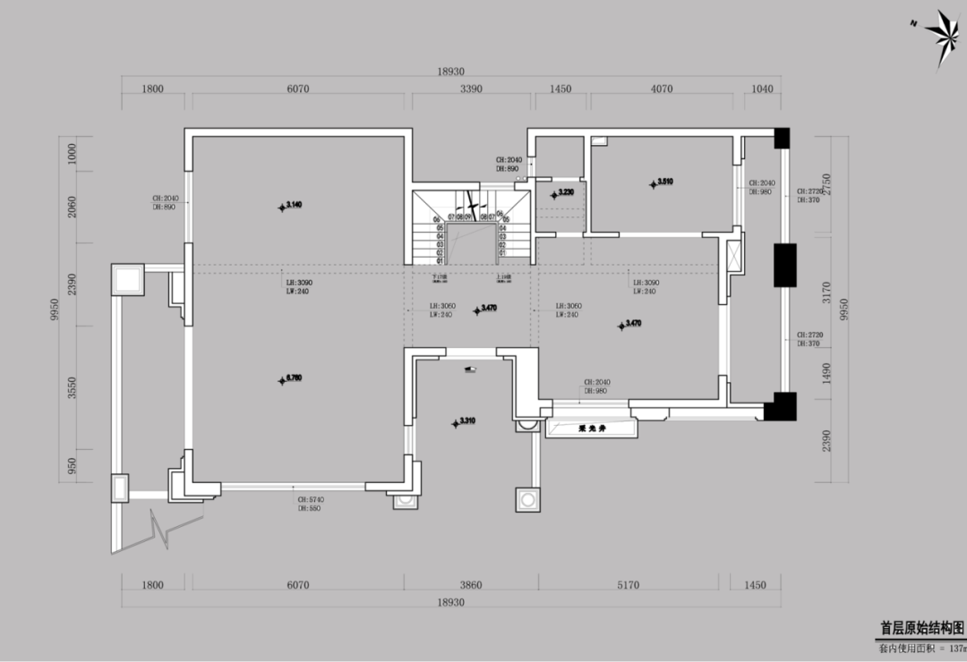
原始结构图
平面结构图
项目为四层别墅。
一层为起居空间,三面庭院环绕,是建筑最珍贵的资源
二、三层是家人
居住的空间
地下一层则规划为容纳社交和性格爱好的空间
基于对整体空间的理解和人群生活的洞察
我们通过空间资源的改动,加载功能和生活方式的可能性
再从生活方式出发,细腻功能体验的舒适度和合理性
最后以带有精神的器物逐步打磨
构建出一个人、一个家的面貌与生活场景
Based on the understanding of the whole space
and the insight of people's life.
Finally, it gradually builds the appearance of a person,
a home and a life scene with spiritual objects.
#玄关#
天花与墙面的交织关系,加强空间的建筑结构感
入户玄关巧妙的划分了餐厅与客厅,功能
与形式并存
整体空间保持现代的基调,引入自然的元素
以锈金作为点缀,简洁而高雅,着力打造一个艺术化空间
The whole space maintains the modern tone,
introduces the natural elements,
with rust gold as the ornament,
concise and elegant, and strives to create an artistic space.
#客厅#
开放的室内空间与户外景观相连,实现人与自然和谐相处
大面积的玻璃窗增加了视野和采
光,提升了居住的舒适感
浓烈的蓝以不同的材质导入,贯穿于客厅的不同块面
不同灰度的黑与白,用肌理感强烈的棉麻、绒布材质间序其中
金属的光泽以线条的形式介入
The open interior space is connected with the outdoor landscape, realizing the harmony between man and nature.
Large area of glass Windows increase the view and lighting,
enhance the comfort of living.
开放式的水吧台,链接西厨与品茶台,也链接起关于生活的切片
生活的琐事、交谈,一起
临窗看雨的静默
又或者在失眠的夜里斜靠在沙发上数远处的灯光明明灭灭
我们用想象力编织了一幅又一幅生活的片面
然后将故事抽走,把带着故事的家具留下
We use our imagination to weave one side of life
after another
and then pull the story away.
Leave the furniture with the story.
#餐厅#
餐厅延续空间的整体调性
以材质本身的层次与质感去传达空间的气韵
橱柜以低饱和度颜
色的对比来延续空间质感
提高家庭的社交需求,临窗设置艺术边柜
通过造型和蓝色和整体空间互相呼应
The restaurant continues the overall tonality of the space.
With the level of material itself
and simple sense
to convey the spirit of the space.
#卧室#
男孩房满富多元化和自由感的色彩纵深延展
在视界中均衡分散,达到丰富而不显杂乱
简
单的色调可引导视线向上,赋予其方向性和玩味性
带来强烈的视觉流动和前进感
活泼的铺面色块自然拼接过渡迸生场域能量
The color depth of the boy's room full of diversity
and sense of freedom extends in the horizon to balance and disperse,
so as to be rich but not messy.
女儿房,充满温馨的童话感
粉色在几何美感的图案下没了闷俗的无神
休闲躺椅让空间摩
登起来,却未失少女的俏皮和可爱
仿佛是一个在梦中未醒的女孩,绽放的月白,纯洁而明艳
这是一个良好美学素养之下的女孩房间,初出随意却处处美好
Daughter room, full of warm sense of fairy tale.
This is the girl room under a good aesthetic accomplishment
go out at first optional but everywhere beautiful.
长辈房典雅而不失时尚,岩板加线条的背景配合玻璃镜面的衣柜
优雅、含蓄是整个空间的
装饰语言
偏开的柜门,没有任何现代的符号,却有了浓郁的高贵气质
The elder room is elegant and do not break vogue
There is no modern symbol, but has a strong noble temperament.
多功能房背景用了淡灰色的硬包扪布拼接大理石
修饰柱子与背景的转角
意在将房间居住
的空间更轻松更具有品质的表达出来
更让时尚感觉得以体现
更是当代人文进步及传统理节以一种装饰的手法来表达
Express the living space of the room more easily and with more quality.
It is a decorative technique to express the contemporary cultural progress and the traditional theory.
#主人房#
地面与墙面的衔接关系,加强空间的结构感
玄关巧妙的划分了主人房和过道,功能与形式
并存
整体空间保持现代和时尚的基调,引入自然的元素
以锈金作为点缀,简洁而高雅,着力打造一个艺术化空间
The overall space maintains a modern and fashionable tone, introduces natural elements as embellishment with rust gold
concise and elegant, and strives to create an artistic space.
岁月刻于树木之上的痕迹,历史赋予大地感性的肌理
浅浅淡淡的木、素朴柔和的光。置身之中
慢慢雕琢一份静养之心,没有一点矫饰和浮躁
忘却一切得失只留一份恬淡的心境
Slowly carve a quiet heart, no pretense and impetuous forget all gains and losses only a calm state of mind.
#地下室#
恰到好处的仿生家具,除了将大自然的蓬勃引入繁华都市之外
更是让大自然缤纷的色彩成为这
个家的「调色板」
为整体的灰色调带来明媚之感, 让高级的气质与鲜活的生命力并存
The colour that lets nature profusion becomes this home "palette" the gray tone that is integral brings beautiful sense
let advanced temperament and fresh vitality coexist.
设计师简介 I About the designer
柏洋 Vince
“一个有温度的家才能被之称为家,美观性跟功能性的完美结合才能称之为一个好的设计。”
主要奖项
2017年全国华夏设计杯广州赛区银奖
2018年荣获华夏奖银奖
2018年荣获老板电器厨房广州赛区优秀奖
2019年荣获建筑+广州赛区银奖
2019年荣获华夏奖优秀奖
设计机构 I Designer Department:强匠装饰设计院
主案设计师 I Designer:柏洋 Vince
副设计师 I Associate Designer:徐浩杰 Jermy
参与设计者 I Participating designers:莫福伟 Allen 林培锴 Kyle
项目地址 I Project address:东莞市圣堤雅
设计时间 | Design time:2019-2020
项目类型 I Project type:别墅设计
面积 I Square Meters:850
㎡
扫码
围观工地
扫码
进入商城
扫码
客服
消息
收藏
下载
最近
















































