查看完整案例


收藏

下载
绿蚁新醅酒,红泥小火炉。晚来天欲雪,能饮一杯无?——白居易
项目概况| 雅韵东方一揽芳华
本案位于杭州,白墙青瓦的中式建筑在烟雨江南的临安之城,格外的古朴动人。保持建筑内外的一致性,本案在设计风格上以中式为艺术精髓,加入现代风格的简约,气质典雅中张弛有度,空间艺术感与时尚值均在线,给人以极致的视觉享受,内涵与气度饱满,表现形式爽朗不羁,演绎一场属于现代社会的东方居住艺术,古今交融,别样芳华。
△会客厅
△过道
地下空间 |虚实相生浑然天成
注重留白,设计如同人生哲学。
最有意趣的人生,一定不要填得太满,像国画里的留白。只在笔墨勾勒、皴染之间,蓝天、白云淡逸悠远;雪山、瀑布尽显峥嵘;闲潭、河流、湖泊更是意蕴悠悠,且静水流深。
本案地下空间开阔通透,大量的留白给人以无限的想象力,结合音律、光影,松石等,使得空间意趣妙然。
△会客厅
△过道
一楼|神韵典雅 东方美学
更突出中式传统艺术格调,融合大量的木结构,给予空间温润与自然。一盏案台,两件摆件,再加上中国风味道十足的国画一幅,让玄关处景致亮眼,将中式空间艺术的情怀以形物构景所表现出来,寓情于景,情景交融,尽显中式艺术之雅。
△门厅
△门厅
△餐厅
以沉稳、内敛的传统文化为基点,精致的中式元素结合传统的现代技艺,呈现带有东方美学的精致空间。融合了很多青色于空间中,色调古典亮眼在背景开启序章,整体则以大地色系为基调,材质上运用了木饰面与大理石以及布艺,灰白与墨绿穿映其中,营造出一种稳重悠然的中式意境。
△会客厅
△会客厅
柔和的方式呈现材质与色彩的对比关系,雅奢的家具穿插交互,这种建构方式承载着空间多元而丰富的体验,让人在空间环境中获得感悟与平衡。
△过道
△书房
东方艺术总予人无限悠长的遐想,色彩语素流转至书房空间,将艺术诗性的浪漫格调渗透至每一个角落。
△书房
二楼|中庸而治 大道至简
整个二楼以居住为主,选用质感高级的原木家具,接近自然,将当代文化与审美结合传统,提炼中式元素并加以简化和丰富,让空间变得更为简洁秀丽,用空间的语言来表达文化内涵。
△书房
书房延续东方精神的美感,格调清雅静谧,艺术与人文气息浓厚。定制书桌凳子,显现出另一番意料之外的沉稳美感。在此空间,有种素然宁静,让人凝神聚心的气场。
△儿童房
△主卧
△主卧
古人崇尚“大道至简”,生活亦主张“简”,这种居住的智慧同样适用于当下,舍去不必要的多余之物,以便心不为物所役,保持精神的自由。
每个人的生活都应呈现最美好的一面,风尘俱静、禅味悠长。这里有宁静致远的格局,有清风自来的淡泊,有返璞归真的绝俗,有身心寂静的归宿。
△主卫
项目方案图
▽
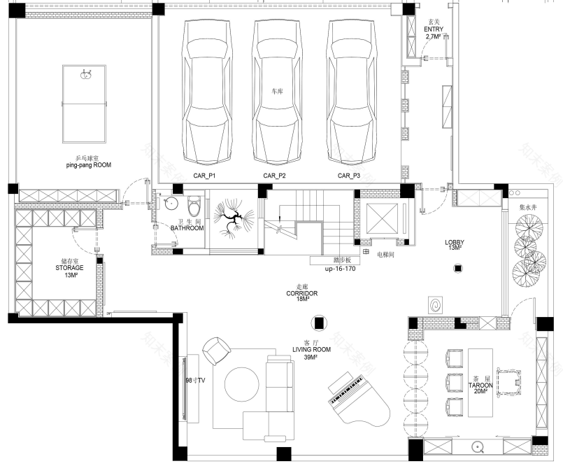
△负二楼方案图
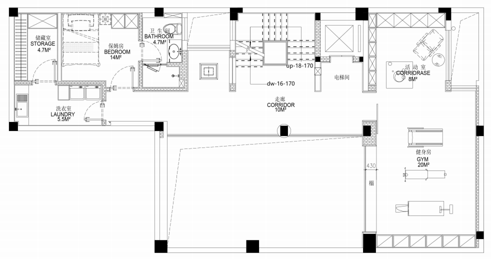
△负一楼方案图
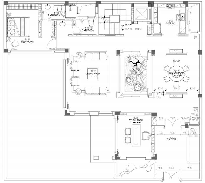
△一楼方案图
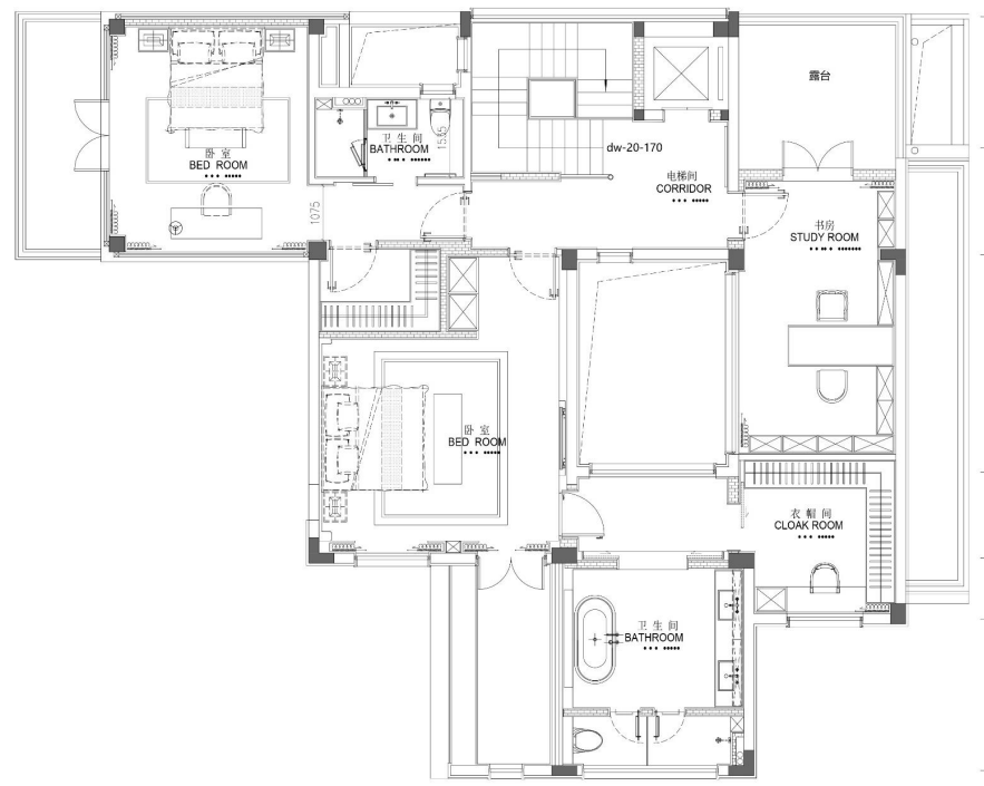
△二楼方案图
项目名称|江南里
公司名称|木融设计 MUR
项目地点|中国 杭州
项目面积|628㎡
主案设计|李玲波 任长城
参与设计|蒋鹏
项目类型|全案设计
完工时间|2023
主要材料|进口橱柜、汉斯格雅、维宝洁具、华为智能、木饰面、VF
木融设计
往期案例
木融设计|简约与前卫 诠释现代风尚
木融设计|静居 无为而雅
木融设计|摩登 几何时尚
木融设计|复古与形象
静谧悠然 世外桃源
木融设计|跟着感觉走 如风般自由
木
融设计|城市中的心灵栖所
木融设计|梦想还原 实现“Dream House”
李玲波
木融设计创始人/设计总监
坚持以艺术化的眼光来审视空间和时间的关系,用设计将二者完美结合。
执业以来连续 11 年获得多个业内设计大奖。擅长以敏锐的感知力,捕捉行业前沿动态。他的设计游走于理性思考和感性表达之间,对用设计解决现实问题,创造价值是他一以贯之的追求。
对高端豪宅和商业设计拥有丰富的实操经验,擅长将艺术、商业和设计相结合,创造出高品质的体验感受。
李玲波
设计理念
设计是一种审美活动,成功的设计作品一般都很艺术化。
但艺术只是设计的手段,而并非设计的任务。
设计的任务是要实现设计者的意图,设计者的意图就是要表现美,创造美。
个人经历
2020 年 40 UNDER 40 中国(上海)设计杰出青年
2020 年 “金住奖-2020 中国(上海)” 十大居住空间设计师
2019 年 红棉中国设计奖 最美极简空间设计奖
2019 年 红棉中国设计奖 最美雅奢空间设计奖
2018 年 “新设榜” 年度创新设计人物
2017 年 PChouse 年度风尚奖
2016 年 “祝融杯”灯光设计一等奖
2015 年 艾特奖上海地区商业空间一等奖
2014 年 Roca PChouse 时尚设计大赛“中国十大高端室内设计”
2014 年 “装饰家”杯实景类一等奖
2013 年 北京筑巢奖银奖
2012 年 参加上海电视台新闻综合频道“非常惠生活”栏目《一个遥不可及的家》录制
2008 年 奥普杯“十佳精英设计师”称号
2007 威能杯中国(住宅)室内设计明星大赛上海赛区专业组 优秀奖
第六届建筑装饰设计大赛 一等奖
作品案例
江南华府、万科燕南园、上海绿城玫瑰园、佘山三号、上海紫都晶园、南郊庄园、和良形象、ZK-Premio、浙江义乌浙铁、绿城玫瑰园、上海御翠园、上海四季雅苑、苏州桃花源、江西南昌万科青山湖别墅
木融设计
木融设计成立于 2018 年,由设计师李玲波带领的创作团队,聚焦全球化视野,不受具体风格的限制。通过艺术化的思维来拓展生活方式的新可能,重新定义人与空间的关系。以定制化高端豪宅设计与商业设计为原点向外辐射,提供高品质化、体验化的设计服务。着力于在设计中体现艺术审美,创造多元的生活方式和美学理念,为生活、商业等各个形态场景赋能。
▽
木融设计公司地址:上海市闵行区虹中路 335 弄集富大厦 3F
13681783362
客服
消息
收藏
下载
最近






































