查看完整案例


收藏

下载
一个人必须拥有一样东西:不是一种生性轻松的感觉,就是一种通过艺术和知识而变轻松的感觉。——尼采
项目概况|淳朴自然 浪漫无邪
本案坐标上海,是一套美式自由主义风格的空间别墅项目。整案色彩高雅清丽,气度不凡,以高级质感元素打造出时尚前卫且内涵雅致的空间景致。业主一家三代人居住于此,在空间布局以及美学搭配上,融合不同年龄段以及日常起居生活需求,满足更多元的生活功能,营造出符合一家人都能欣赏的艺术美感。
B2| 烂漫风情专属的自由主义
本案设计师从人文和美学上多重思考,注重艺术手法同时贴合生活,将美式风格的精髓与中国人的居住习惯相融合,构建出既有美式风情又符合当下中国人生活起居的现代美式生活空间。
△玄关
△客厅
简洁明快,色彩饱满,作为待客区的客厅设计,更多的让人感受到居住者的性格和审美,通过客厅最容易传达出居住者的品味了。通透的格局,让满室亮堂和舒适,高级配色的设计让整个空间都增加了活跃度和灵动度。
△
茶室&棋牌室
△酒吧
B1| 调味生活寄情风雅
给忙碌的生活多一点调味品吧,让时光慢一点,再慢一点。享受片刻的宁静与放纵,静坐品茗或者熬夜看一场大片甚至吼几首歌,都能给到生活更多的乐趣与放松。融合在居家空间里的休闲场所,足不出户就能 get 到这种快乐。
△
茶室
△
影音室
F1| 如风如海 自由徜徉
一楼一进门厅,线条简洁明朗,铁艺灯饰既复古又经典,没有过多华丽的装饰,一派自由的视觉享受。随性自在的美,蓝色星辰大海的既视感,更是让玄关迸发出无限想象力。
会客厅多人沙发围坐,是美式最喜欢的大家庭氛围感,而软装多选用大地色系,款式造型皆以舒适简约为主。
△
玄关
△会客厅
△餐厅
壁炉的设计是美式经典代表之一,起到烘托氛围增加暖意的效果。
区别于传统美式餐厅和厨房的开放空间,本案通过岛台做了切割,在粗犷大气的空间线条下,是精致和温馨的用餐空间,以中国人最爱的圆桌稳居其中,搭配以造型简洁大气的座椅,通过对材质细节的把控,不羁的整体状态下,充满了细节和巧妙之处。
△餐厅
F2|尽情绽放自我的生活
美式风格的卧室在布置上更注重温馨和舒适,极为看重自己的私密空间,多选用布艺和木质来妆点卧室,对于大地色系的热爱浸入到每一个细节里。本案相较其他美式,更融入更多符合现代人居住习惯的元素,在强调美观的同时更看重实用。
△
父母房
△
女儿房
△ 女儿卫生间
融入的色块明亮鲜丽,是美式豪放前卫的艺术表达,热烈的奔放与直接的喜欢,用这种大胆的表现力诠释出一种艺术魄力与生活格调。
△
男孩房
△男孩卫生间
蔚蓝如碧海蓝天,不羁且自由。以此色彩构建男孩生活起居空间和书房,如同徜徉在浩瀚宇宙,拥有着沉稳的魅力与张扬的性格,更加符合年龄段和性别的爱好与需求。
△书房
F3| 归属感让幸福感翻倍
三楼的主卧以典雅自然的配色为主,搭配舒适自然的软装陈设,宜居又舒适。穹顶做了个性化设计,更加开阔与敞亮,也让空间的呼吸感更加畅快与自在。
书房更突出一种文化氛围,沉浸式的进入一种独立静谧空间,思绪集中,时间静止。
△
主卧
△
主卫
△书房
项目方案图
▽
△
B2
方案图
△
B1
方案图
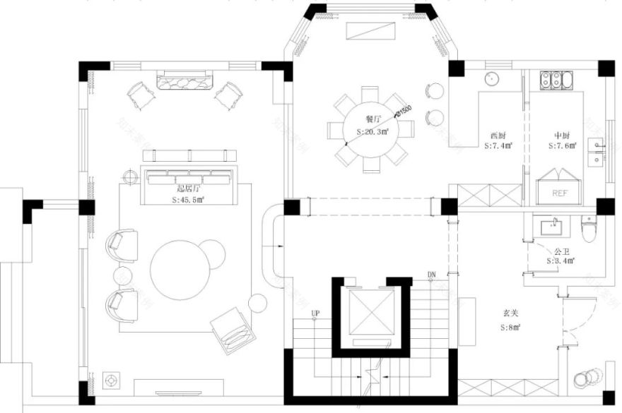
△F
方案图
△F
2
方案图
△F
3
方案图
项目名称|新江湾首府
公司名称|木融设计 MUR
项目地点|中国 上海
项目面积|668㎡
主案设计|李玲波
参与设计|蒋鹏
项目类型|全案设计
完工时间|2023
主要材料|德国爱格板、意大利艺术漆、护墙板、维宝、汉斯格雅
木融设计
往期案例
木融设计|简约与前卫 诠释现代风尚
木融设计|静居 无为而雅
木融设计|摩登 几何时尚
木融设计|复古与形象
静谧悠然 世外桃源
木融设计|跟着感觉走 如风般自由
木融设计|城市中的心灵栖所
木融设计|梦想还原 实现“Dream House”
李玲波
木融设计创始人/设计总监
坚持以艺术化的眼光来审视空间和时间的关系,用设计将二者完美结合。
执业以来连续 11 年获得多个业内设计大奖。擅长以敏锐的感知力,捕捉行业前沿动态。他的设计游走于理性思考和感性表达之间,对用设计解决现实问题,创造价值是他一以贯之的追求。
对高端豪宅和商业设计拥有丰富的实操经验,擅长将艺术、商业和设计相结合,创造出高品质的体验感受。
李玲波
设计理念
设计是一种审美活动,成功的设计作品一般都很艺术化。但艺术只是设计的手段,而并非设计的任务。设计的任务是要实现设计者的意图,设计者的意图就是要表现美,创造美。
个人经历
2020 年 40 UNDER 40 中国(上海)设计杰出青年
2020 年“金住奖-2020 中国(上海)”十大居住空间设计师
2019 年红棉中国设计奖最美极简空间设计奖
2019 年红棉中国设计奖最美雅奢空间设计奖
2018 年“新设榜”年度创新设计人物
2017 年 PChouse 年度风尚奖
2016 年“祝融杯”灯光设计一等奖
2015 年艾特奖上海地区商业空间一等奖
2014 年 Roca PChouse 时尚设计大赛“中国十大高端室内设计”
2014 年“装饰家”杯实景类一等奖
2013 年北京筑巢奖银奖
2012 年参加上海电视台新闻综合频道“非常惠生活”栏目《一个遥不可及的家》录制
2008 年奥普杯“十佳精英设计师”称号
2007 威能杯中国(住宅)室内设计明星大赛上海赛区专业组优秀奖
第六届建筑装饰设计大赛一等奖
作品案例
江南华府、万科燕南园、上海绿城玫瑰园、佘山三号、上海紫都晶园、南郊庄园、和良形象、ZK-Premio、浙江义乌浙铁、绿城玫瑰园、上海御翠园、上海四季雅苑、苏州桃花源、江西南昌万科青山湖别墅
木融设计
木融设计成立于 2018 年,由设计师李玲波带领的创作团队,聚焦全球化视野,不受具体风格的限制。通过艺术化的思维来拓展生活方式的新可能,重新定义人与空间的关系。以定制化高端豪宅设计与商业设计为原点向外辐射,提供高品质化、体验化的设计服务。着力于在设计中体现艺术审美,创造多元的生活方式和美学理念,为生活、商业等各个形态场景赋能。
▽木融设计公司地址:上海市闵行区虹中路 335 弄集富大厦 3F13681783362
客服
消息
收藏
下载
最近








































