查看完整案例


收藏

下载
幸福的家
项目面积|127m²
项目地址|九龙仓碧玺
面积风格|
现代风格
设计主创|颜奭浩
本案是一套三口之家的新居,男业主平时工作比较繁忙,装修全程由女主人负责,他们有一个可爱的女儿,所以设计师在设计的时候,将小孩子活动空间作为一大重点。如客厅无茶几设计,次卧可折叠床,以及儿童房的色彩布置。
空间整体的色调、陈设的布置及细节的刻画上,都力求柔和,注重功能性,体现了业主的品味,旨在更好地表达高品质生活方式。
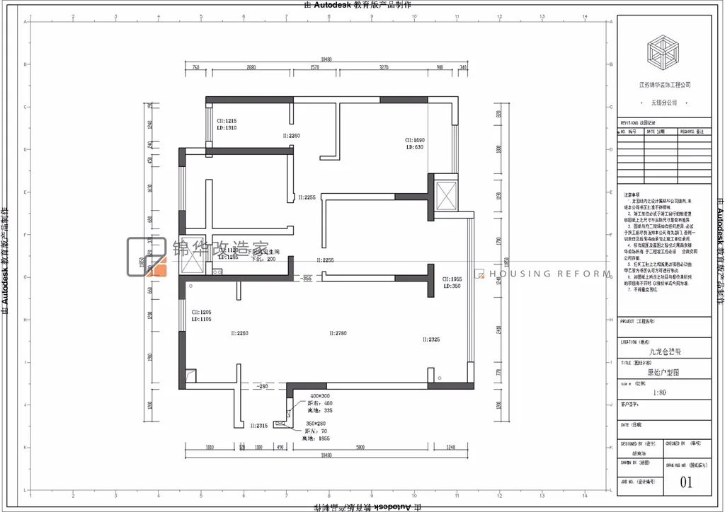
原始户型图
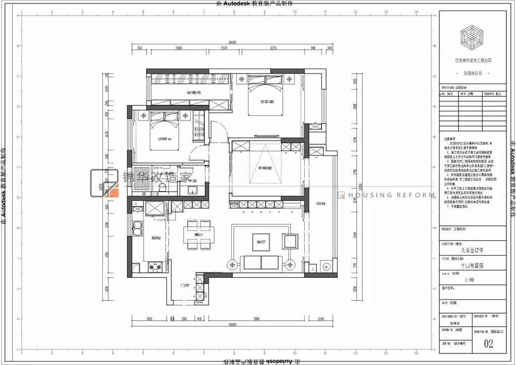
平面设计图
01
Living Room
极简电视背景墙,寥寥数笔,柔和的设计笔触自然地勾勒出轻松无拘的家居氛围。室外的自然光线与天然的绿色交替点缀,让纯净的空间多了更多趣味与生气。
家中宝贝正处于活泼乱动的阶段,客厅没有放置茶几,沙发前空出来的地方准备铺上地垫成为孩子的游戏区,宽敞柔软不怕磕着碰着。
考虑到很多家庭都有扫地机器人,所以设计师在选择家具的时候,都选择了不落地设计,避免积灰,方便打理。
02
Dining Room & Kitchen
餐厨空间延续了主空间的设计风格,餐边柜收纳能力MAX,加装了灯带设计,使整个环境更具有通透性,呈现出了浓浓的现代气韵。
厨房设置成半开放式,采用可折叠推拉门,增加整体空间的通透性。同时避免因做饭产生的油烟。
03
Bedroom
主卧床卡其色硬包背景,将宁静平和搬进了卧室,搭配简单素雅的床品,平静而又愉悦的「归属感」总能让人心安,岁月的温柔一如既往。
床头暖黄色的灯光,构造属于自己的静谧空间,让生活简单且诗意。
次卧的处理非常简单,几乎没有多余家具,四周墙面几乎全是柜体,俨然是一个超强的储物空间。考虑空间的开阔性,于是专门定做了可以入墙的折叠功能床,相当于增加了客房功能。同时为家中小宝贝提供一个宽阔自由的成长空间。
04
Kids Room
设计师选用粉色做成烘托,营造出粉嫩的童趣感。房间选择可调节床具,让空间能跟随的宝宝的成长,同步长大。
05
Wash Room
- Designer
颜奭浩
查看更多案例&预约设计师
▼
18751580003
推荐阅读
140㎡北欧风大三房爆装榻榻米、隐形柜,储物能力堪比240㎡豪宅!
学区房翻新丨横街小区100㎡北欧风,满足对家的所有期待!
百变翻新家丨89平旧房完美逆袭,变身北欧风时尚婚房!
客服
消息
收藏
下载
最近



























