查看完整案例

收藏

下载
「入画」
纯净空间的世界,任何事物进入,都如进入画中世界一般,美好。
——立和
设计背景
此案地理位置位于广东省揭阳市,项目西北方临榕江北河,视野开阔,河岸两侧贯穿梅东大桥,在本案的入户客厅,可以欣赏到揭阳市最美的河岸景色,自然环境优美。本案为一套复式空间,通风采光好,户型方正,结构合理,空间高,是一套不可多得的经典户型。业主为都市质性女士,自由职业,经营多种产业,思想活跃,品位高雅,对新鲜事物想多一些尝试,不希望自己的家固守以前的样子。我们的设计师运用独立、穿透的设计手法,将空间进能合理规划分区,让各个功能空间相互渗透连接,打造更闲适而不失温暖的惬意空间。突出了都市女性温文尔雅、平和理性的特点,用浅木色的整体色调,表达业主的温馨典雅。在设计风格定位上,吸取了意式现代风格中的一些经典元素,既不过分张扬,而又恰到好处地把雍容华贵之气渗透到每个角落,既突出复式空间本身的自然优势又适当彰显业主的个人品味。
The project is located in Jieyang City, Guangdong Province. The northwest of the project is adjacent to the North River of Rongjiang River, with a wide view. Both sides of the river bank run through the Meidong Bridge. In the living room of this project, you can enjoy the most beautiful river bank scenery in Jieyang City, with a beautiful natural environment. This project is a set of duplex space with good ventilation and lighting, square apartment, reasonable structure and high space, which is a rare classic apartment. The owner is an urban qualitative lady, freelance, operating a variety of industries, active in thinking, elegant in taste, and wants to try more new things, and doesn’t want his home to stick to the previous appearance. Our designers use independent and penetrating design techniques to reasonably plan and partition the space, allowing each functional space to penetrate and connect each other, creating a more leisurely and comfortable space without losing warmth. It highlights the urban women’s gentle, peaceful and rational characteristics, and uses the overall tone of light wood to express the warmth and elegance of the owner. In terms of the design style positioning, it has absorbed some classic elements in the Italian modern style, which is not overly ostentatious, but also permeates the grace and luxury to every corner, which not only highlights the natural advantages of the duplex space itself, but also appropriately demonstrates the owners’ personal taste.
空间展示
玄关
推门而入 is a super high empty transition space, with a super large area of floor-to-ceiling windows, which meets the needs of the owner’s usual girlfriends’ gatherings and leaning against the window to enjoy the view in her leisure time, and also brings sufficient lighting to the interior space. The fashionable and simple bar counter creates more possibilities for the leisure area by the window, with bartending, juice, and beverage replenishment. The designer also specially selected Harman Kardon speakers to be placed on the table, bringing soft jazz, and the quality of life begins to be reflected from the entrance. The wooden component above the bar counter provides a light source for the bar counter, while the blue sphere carried on it gives the beating emotion and vitality of this space, and the owner’s taste is more obvious.
Opening the door and entering is an ultra-high overhead space with large floor-to-ceiling windows, which meets the owner’s usual needs for close friends gatherings, and the need for leaning on the window to view the scenery in their leisure time, and also brings plenty of light to the interior space. The stylish and simple bar counter creates more possibilities for the leisure area by the window. Bartenders, juices, and drinks are supplemented. The designer also chooses Harman Kardon speakers and places them on the table to bring soft jazz and quality. Life begins to manifest from entering the house. While the wooden components above the bar provide a light source for the bar, the blue sphere that carries it gives the space a beating mood, vitality, and the owner’s taste more obvious.
客厅
客厅电视背景设计师精挑了浅色竖纹木饰面,让空间纯净,不拖沓。手工漆晕染电视背景主体,让其突出,给视觉带来焦点,两个黄铜质的音箱,给电视背景再一次凸现主人品味。高挑的电视背景延生到天花,纯净的手工漆肌理,给以空间高贵气势,给人以强烈的稳重感和归属感。
The TV background designer in the living room has carefully selected light-colored vertical-grained wood finishes to make the space pure and not procrastinated. The hand-painted lacquer smudges the main body of the TV background to make it stand out and bring focus to the vision. The two brass speakers once again highlight the master’s taste in the TV background. The tall TV background extends to the ceiling, and the pure hand-painted texture gives the space a noble aura, giving people a strong sense of stability and belonging.
楼梯的设计,设计师也是颇为用心,在正面看过去,一簇沙漠绿植就映在眼前,给人以沙漠绿洲的清新舒适感。踏步运用亲肤木地板,给脚柔和的触感,甩开一天工作的疲惫,走上二楼私密区。楼梯一至三步的踏步,拉大的尺度,给予楼梯不一样的造型,灵动起来。扶手以纯钢化玻璃处理,通透的材质,光影的折射,让上楼梯这件事,变成了一种享受。
The designer is also very careful about the design of the stairs. Looking at it from the front, a cluster of desert green plants is in front of you, giving people the fresh and comfortable feeling of a desert oasis. Exhausted from a day’s work, walked to the private area on the second floor. The steps of the stairs are one to three steps, and the scale is enlarged, giving the stairs a different shape and agility. The handrails are treated with pure tempered glass. The transparent material and the refraction of light and shadow make going up the stairs a kind of enjoyment.
起居厅
顺着楼梯上来,二楼的起居厅在面前映现,有着水吧台、休闲沙发、弧形观景台。设计师给这个房子的主人配备了在二楼所需要的生活用品,让平时喝水、调咖啡这件事,在二楼也可以实现。在休闲沙发的左侧,设计师挑选了和入门蓝色圆球呼应颜色的石膏挂件做装饰,还有一个精致的阅读壁灯,让业主在夜晚,能有一个舒适的阅读空间,休闲。
Going up the stairs, the living room on the second floor is reflected in front, with a water bar, leisure sofa, and curved observation deck. The designer has equipped the owner of this house with the daily necessities needed on the second floor, so that he can drink water at ordinary times, and coffee mixing can also be achieved on the second floor. On the left side of the lounge sofa, the designer chose a plaster pendant that echoes the color of the entry blue ball for decoration, and there is also an exquisite reading wall lamp, so that the owner can have a comfortable reading space at night and relax.
影音厅
主卧/衣帽间
主卧空间原来是两间房间,设计师把这两个空间重新整合分区。床位部分用衣柜做隔断,把主卧空间和衣帽间区分开来,床头背景采用上升弧形造型,这个造型给人以拥抱舒适感、围合和安全感,会带着人一起做着美梦。
The master bedroom was originally two rooms, and the designer reorganized the two spaces into partitions. The bed part is partitioned by a wardrobe to separate the master bedroom from the cloakroom. The bedside background adopts a rising arc shape. This shape gives people a sense of embracing comfort, enclosing, and a sense of security will bring people to dream together.
男孩房
男孩房空间以蓝色为基调,赋予空间带有青春、活力的气息,让 13 岁的男孩子带着少年该有的心境成长。配备学习书桌,设计师还巧妙地在衣柜上做出没有柜门的装饰格,让孩子可以放置自己喜欢的物品。
The boy’s room space is based on blue, giving the space a youthful and energetic atmosphere, allowing 13-year-old boys to grow up with the mood that a teenager should have. Equipped with a study desk, the designer cleverly made a decorative grid without a door on the wardrobe, so that children can put their favorite items.
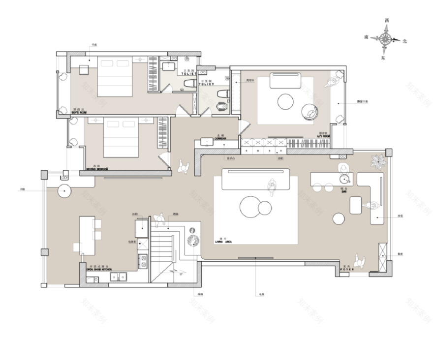
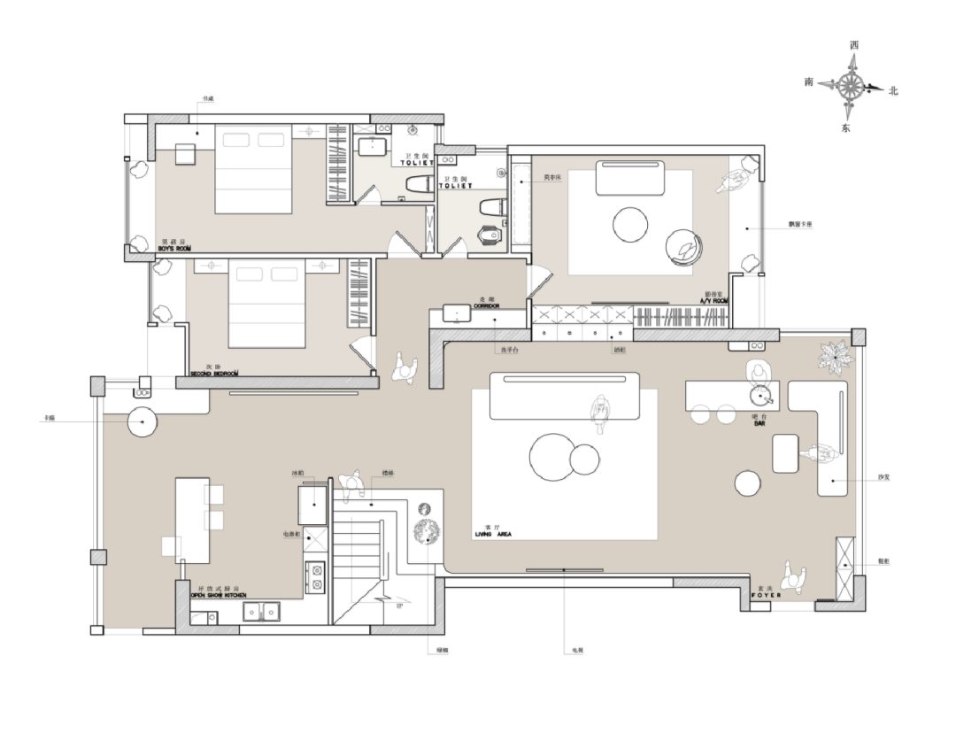
平面方案
项目名称 | 入画
项目风格 | 现代
设计机构 | 立和建筑设计
总设计师 | 李和峻
设计团队 | 谢宝珍
项目地址 | 广东省揭阳市东方首府顶层复式
项目面积 | 320㎡
立和建筑设计 | 简介
Lihe Architectural Design | Introduction
立和建筑设计,做能立足于时间长河的设计,人和,静美。
汕头市立和建筑有限公司,是一家专业性强,综合能力高的设计机构,服务范围涵盖空间设计,软装设计,全案设计+落地。
Lihe architectural design, make a design that can be based on the long river of time, people are harmonious, quiet and beautiful.
Shantou Lihe Construction Co., Ltd. is a design agency with strong professionalism and high comprehensive ability. Its service scope covers space design, soft decoration design, full case design + landing.
Core design concept
Restore the charm of the space, do not follow the secular trend, use the human senses as an important clue, explore, and endow it with beauty.
李和峻 | Li Hejun
立和建筑设计创始人及总设计师
李和峻主张还原空间魅力,不跟世俗潮流,以人感官为重要线索,探索,赋予美好。以此为核心设计理念,创造出糅合多变少,功能齐全,但不失空间气质的新时代空间环境。
2020 年度华南设计星,汕头市装饰协会会员。
Li Hejun | Li Hejun
Founder and Chief Designer of Lihe Architectural Design
Li Hejun advocates restoring the charm of space, not following secular trends, and using human senses as important clues to explore and endow beauty. With this as the core design concept, it creates a new era space environment that blends more and less, completes functions, but does not lose the spatial temperament.
2020 South China Design Star, member of Shantou Decoration Association.
Residential Design | Villa Design | Store Design | Architectural design
推荐阅读
▲《chǒng 屋》御景江南 100㎡
客服
消息
收藏
下载
最近





































