查看完整案例


收藏

下载
这是一个复式案例。业主是一对中年夫妇,都有各自的独立工作。女主人从事的工作也算是半个家装行业,所以对自己即将入住的新家有自己独特的想法。男主人是个热爱家庭的人,在新家这方面很尊重女主人的想法。
接下来,设计师根据夫妇俩的需求,结合两人的生活习惯对户型做出了改动。
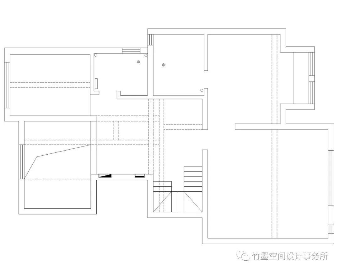
原始户型
因为房子在顶层梁位比较多,在很大程度上限制了设计理念。进过多次的交流与探讨,设计师对一层作出较大改动,让空间看上去更加大。二层设计师保留了原有的建筑结构,跟多的是在后期的搭配中展现。
设计师用色比较大胆,整体色系比较明快。深蓝色给人诱惑能让人冷静下来享受生活。以黄色作为点缀增加了生机。
餐厅内嵌的柜子,不仅满足酒柜还能兼容餐边柜的使用,简洁干净。
一个超大的厨房空间,可以让女主人在这里尽情的发挥她的厨艺。
入户玄关的设计更是眼前一亮,内嵌的造型不仅美观,还可以满足屋主人作为展示的区域。
主卧的设计在原结构的基础上设计师加以修饰,让屋主人在一个空间有两种视觉体验。
end
竹简留墨传承千年 空间有限创意无限
竹墨空间设计事务所地址:北美N1文创区9-1003
设计热线:13453250057 17735648668
客服
消息
收藏
下载
最近













