查看完整案例

收藏

下载
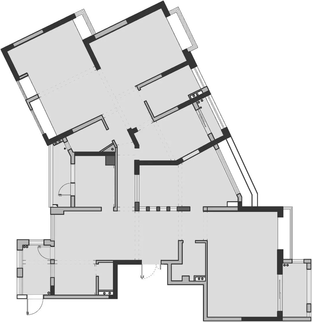
●原始结构:
1. 本身户型是异型结构,玄关较小,无法储物,客餐厅的跨度很大,而餐厨空间又比较小。
2. 过道空间狭窄,后期考虑缩短过道动线,大阳台异形且过大,卫生间小且异形。
3. 主卧和次卧的飘窗长且鸡肋。
调整空间,动静分区:
1. 客厅上方有梁结构,全屋地暖设计,设计师通过弧形处理,弱化梁的存在感。
2. 调整入户右手边客厅空间,考虑到生活习惯及起居时间,变为老人房。
3. 拆除入户阳台,厨房及大阳台的墙体,打通公区提升客餐区域互动性,使空间更加通透。
4. 对面阳台向外做现浇,增加了多功能瑜伽房,茶室等,满足业主需求。
5. 厨房改为开放式空间,增加岛台台面,厨房与餐厅呈洄游动线,增加台面的同时,动线也得到极大的改善。
得天独厚的地理位置,窗外与室内完美的融合,达到“天人合一”的居家质感;用柔和艺术漆作为整屋的色调,加上异型的空间感,整屋给人一种“道法自然”的闲适感。
简洁而充满美学的空间,让忙碌转换为放松,沉寂了一整天的身体,又渐渐苏醒过来。
在自然和健康生活之间建立新的联系,一家人在开放的健身区挥洒运动的汗水,享受时光。
煮茶、焚香、抚琴、泼墨、挥毫,可独坐、静思、忘机、鉴赏、会友、深谈,得耳目口舌之乐,抛躯体心灵之乏。
原本厨房空间较小,整个客餐厅的动线也不顺畅,用打开式设计,让整个空间变大,同时每个空间都能满足功能需求。开放式的厨房和餐厅共用同一个大空间,洄游的动线围绕中岛,以西橱柜为重点全白橱柜设计,满足烹饪需求。
主卧悬浮吊顶与原木组合,整屋和客厅的氛围相契合;化繁为简,从空间格局到色彩关系,到空间的尺度和艺术御用,减少设计的痕迹,用合适的手法,为空间和自然融合增色。
●次卧
●儿童房
◍往期精选(私宅)作品 | Real works...
◍美家精装(实景) |Real works...
◍星点公装(实景)作品 |Real works...
☛点击这里查看所有往期实景
◍用数字说话 | Speak with numbers
5W+设计经验
80%老客户口碑介绍率
98.8%好评调查
100%工地全公开
◍所获荣誉(部分) | Honor received
2012 年度国际空间设计“艾特奖”最佳公寓设计入围奖
2012 年度大金内装设计大赛江苏别墅组金奖、公寓组铜奖
2012 年度中国室内设计年度评选金堂奖“优秀住宅公寓设计”
2012 年度中国室内设计明星大赛“中国好宅”实景组银奖
2014 年度 Think Home 智轩企业标杆奖
2017 年度龙城设计 TOP10 榜中榜
2018 年度中国常州设计师盛典优秀设计企业
2018 年度“营造家奖”年度设计师
2018 年度"巅峰设计力 ICON20"巅峰设计力 设计公司 ICON10
2018 年度 M+高端室内设计大赛年度优秀设计师
2018 年中国家装设计百强
..........................................
常州天宁店:天宁区北塘河路恒生科技园 26 号
13961406112
常州湖塘店:武进区淹城中路 116 号
18115793301
旗下品牌
美家精装(家居廊)馆:江苏省常州市武进区淹城中路 116 号
13961217215
其他平台搜索
“鸿鹄设计”
在更多平台关注我们
客服
消息
收藏
下载
最近


































