查看完整案例


收藏

下载
设计思路
AT THE BEGINNING
消费时代的洪流裹着我们前行,潮流背后的生活化语境在城市多元文化的冲击中被赋予着全新定义,前沿新潮、优雅浪漫、经典气质。对人居烟火的眷恋,构筑着一个个不同的人居空间,质感在包容琐碎日常的情景中反复出现,归于生活,超脱美学。家并不是一个纯粹的居住空间,也代表着对生活的态度也是心灵的一片净土。
本案是对业主精装房的翻新改造,业主对于原有的装修风格不是很满意,打算重新设计。业主的诉求非常明确,总体干净、简洁、同时有很温暖柔和。
01 「简约造就空间」
玄关空间
▲玄关
入口是重要的情绪转换空间,推门入家时,静力一隅的玄关缄默不语,但从室外的奔波转为室内的安定,幸福仿佛伸手可触。由室外进入室内,顺手关门、放下钥匙和包以及快递、换鞋等一系列日常动作,被功能性的鞋柜所容纳。
▲玄关
入口是重要的情绪转换空间,推门入家时,静力一隅的玄关缄默不语,但从室外的奔波转为室内的安定,幸福仿佛伸手可触。由室外进入室内,顺手关门、放下钥匙和包以及快递、换鞋等一系列日常动作,被功能性的鞋柜所容纳。
进门对景是设计的一种委婉手法,避免视线的直视,同时端景的营造使心境瞬间发生改变,暗示着从公共空间回到了自己私属的领地。
02「 空间与秩序 」
客厅空间
▲客厅
大面积的窗户让屋外的风景成为家中四时常新的艺术品,为客厅提供了充足的自然光线与通风。以功能、生活动线为核心,采用围合型沙发布局,视觉上端庄大气,充满家的温馨感。
▲客厅
电视背景爵士白大理石和哑光木饰面的结合,材质除了本身肌理,还有亮面哑光面对比,颜色上也有个深浅对比。
大理石的线条分割让整个立面简单又十分耐看。
客厅侧面的线条壁灯为整面留白做了适当的点缀,整个空间现代时尚感中别有一番韵味,不同的人不同的感悟,看书,练字,亲子互动,哪怕静静地待在这里冥想,这就是家,有朝有暮,明天也是如此,一切美好如初。
03「 温馨与氛围 」餐厅空间
▲餐厅
客餐一体的空间,显现自由流动的开放格局,整体空间以原木色加以黑白灰为主题配色。
04「 简约就是清新 」
厨房空间
▲厨房
采用餐厨分离式设计,一扇推拉门隔开了厨房与餐厅。灰白之间的拼接,对话起生活里柴米油盐,简单的色彩让情绪舒缓,去繁就简,在简单的空间里,寻求内心的宁静。
05「 动线与流通 」书房空间
▲书房
开放的空间结构、与自然的亲密接触,给予居住者很大的自由。
▲书房
悬浮桌板贯穿了两个区域,给空间带来通透感以外也增添了互通性。于书柜中择一本心仪的书,香茗半盏,翻一页时光缱绻,心有余间。
06「 向往与归属 」
主卧空间
▲主卧室
好的睡眠环境是对身心的一种治愈与呵护,除了保持全屋统一的调性之外,别致的床头灯,简单的装饰品,舒适的床品,将温馨浸润,不论外界怎么喧嚣,这里永远是一片宁静。
▲主卧室
利用材料的多元化应用、几何造型的有机融入、线条节奏和韵律的充分展现、灯光造型的立体化应用等表现手法,营造温馨柔和、独具浪漫主义情怀的卧室空间。
▲衣帽间
设计师将主卧一部分空间划分给主卫,实现干湿分离。穿过衣帽间,进入主卫,空间动线流畅一气呵成。
07「 色彩渐变 」
次卧空间
▲次卧
次卧中的色彩极尽简洁和温柔,不复杂的配色搭配不浓重的色彩,与纯色的床头背景渲染出一片单纯的适睡空间。
08「宁静与气质」
北卧空间
▲ 客卧
木质的温润和利落的线条感,轻而易举的就营造出温馨惬意的氛围,一体式的桌面柜体设计,整洁又大方。
09「 生活的回归 」
其余空间
▲生活阳台
西北面这个独立的设备阳台改造成多功能的小书房,集中学习就寝储物三大功能于一体。
▲ 卫生间
虽然只有几平米但是线条流畅,各功能区各占一角,整个卫生间简约大方。
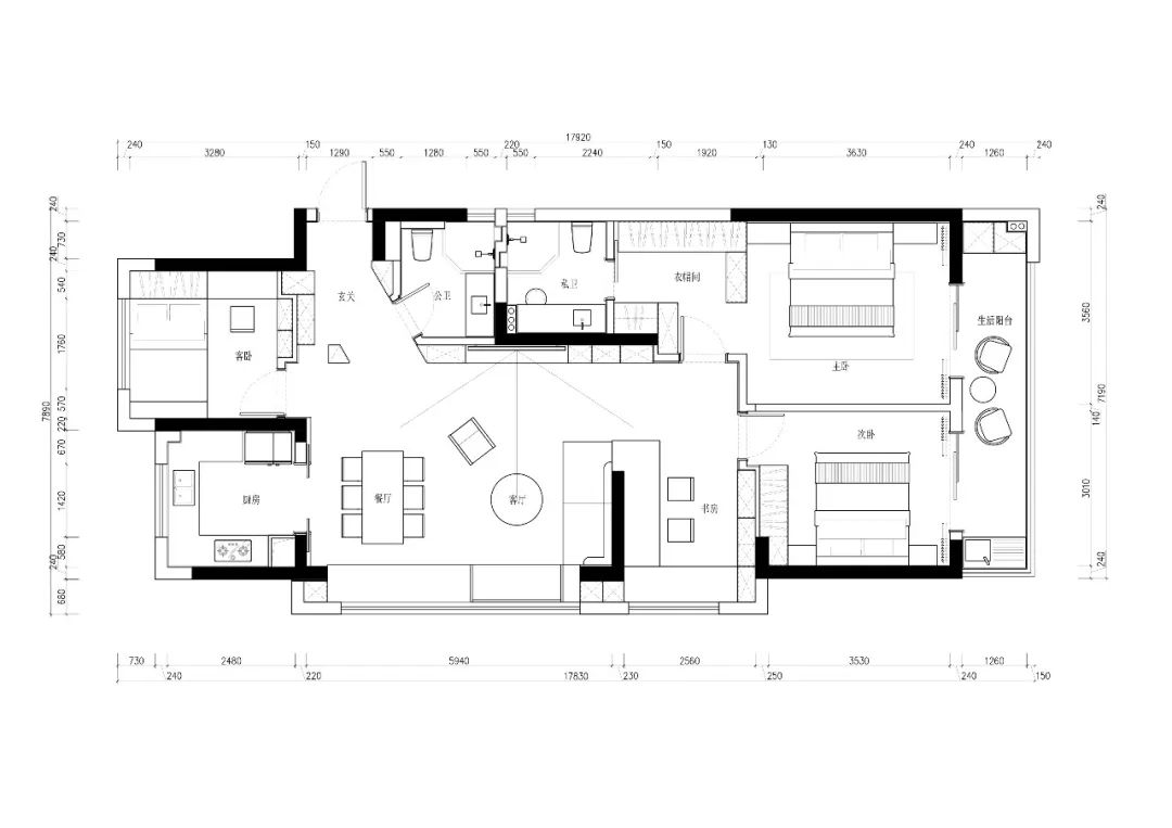
▲ 平面图纸
Location | 项目地点:Taizhou,Zhejiang| 台州临海 - 君临府
Area | 项目面积:130㎡
Date | 完成时间:2022
Design team | 主创设计:Bai Changling | 白昌铃
Photographer | 摄影:Bai Changling | 白昌铃
▲白昌铃|设计总监
曾获荣誉
上海国际设计周新锐中国设计奖(2020-2021)台州城际榜
CIFF 设交圈
本末空间设计于 2020 年创立于浙江台州临海,专注于人居空间设计及商业空间设计。我们秉承着“物有本末,事有始终”的设计宗旨,通过设计重构人与空间的关系,以人的感受为本,结合空间特点作为延伸,致力于人与空间的和谐统一。随着现代人对家居空间的品质追求不断提升,在空间内涵更加重要的今天,我们通过对生活方式的多样性的思考,重新定义空间,用设计的语言重构空间与人的关系,为业主打造一个灵魂的栖息地。
客服
消息
收藏
下载
最近





















































