查看完整案例


收藏

下载
Type | 项目类型: 全案设计
Location | 项目位置:贵阳 观山湖区 华润悦府
Area | 项目面积:200
㎡
Design | 设计单位: 上海半间设计贵阳分公司
Team | 设计团队: 高丽娟 刘兴付
◆
设计灵感
design inspiration
◆
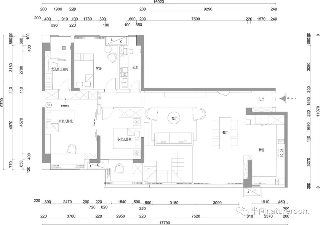
一层平面图
first floor plan
此项目位于贵阳市观山湖区,业主是一对年轻夫妇,有两个可爱的女儿。我们通过对业主家庭成员的基础调研了解到,业主一家四人中有三人五行缺水,所以我们在设计中会将水元素融入室内,故有了以“大鱼海棠”为主题来展开的设计。
This project is located in Guanshanhu District, Guiyang. The owners are a young couple with two lovely daughters. Through the basic research of the owner's family members, we know that three of the four members of the owner's family are short of water in five elements, so we will integrate the water element into the interior in the design, hence the design with "Big fish and Begonia" as the theme.
◆
效果呈现
The effect appears
空间以存续于永恒之中的,温馨与冷静的曲型结构来展开。利用最直白的建筑语言勾勒清朗,由光影强调轮廓与气氛。追随无华的当代性,不过分于依赖宏观与华丽的事物,使空间冷静而不显得傲慢。
The space is unfolded with a curved structure of warmth and calmness that persists in eternity. Using the most straightforward architectural language to outline the clear, light and shadow to emphasize the outline and atmosphere. Follow the contemporary nature of no China, do not rely too much on macro and gorgeous things, so that the space is calm but not arrogant.
细节和氛围的亲和力,借由楼梯材质,形态与空间恰如其分的互动缓缓展开,引入视线的是光影错落的楼梯踏步,和型如柱体的鱼缸设计,形成静态光影与动态事物相结合,将空间的角度和需求并融规划,构建无死角的空间感官。
Details and affinity of atmosphere, by the stairs is qualitative, appropriate interaction unfolds form and space, the introduction of the line of sight is light scattered stair step, and the design of the tank type such as cylinder, the combination of dynamic and static light things, the space Angle and demand and financial planning, construct the spatial senses no dead Angle.
冲破造型堆叠与繁琐的束缚,以灯光作为点缀,曲线作为主体,呈现低调、宁静和沉思。运用艺术性表达空间的哲学,婉约地将艺术感与空间的气场共融,使得维度内的线条表达与意识存续变得流动而自由。
Break through the shackles of modelling stacking and trifling, with lighting as an ornament and curve as the main body, presenting low-key, quiet and meditation. Using the philosophy of artistic expression of space, the artistic sense and the air field of space are gracefully integrated, so that the expression of lines and the existence of consciousness within the dimension become flowing and free.
脱离喧嚣的公共空间走进私人居所,给小女孩一个温馨充满想象的梦幻之所,色彩丰富又不失沉稳,床的形式是充满童趣的兔子耳朵,造型独特的衣柜,即使是平凡的结构关系也产生一种艺术感官。
From the hustle and bustle of public space into private residence, give the little girl a warm and imaginative dream place, rich colors and calm, the form of the bed is full of childlike rabbit ears, unique shape of the wardrobe, even ordinary structural relations also produce a sense of art.
通过一个艺术感极强的谷仓门进入大女儿卧室,整体色调以较基础的灰白色系为主,搭配清新自然的草绿色和柔和的木纹壁纸,同样不做过多的装饰,床头背景挂上孩子自创的画作,摆件是手工艺品,它不仅仅是一个住所,也是孩子童年欢乐的记忆空间。
Through a strong artistic barn door into her bedroom, whole is tonal give priority to with the basis of gray system, with pure and fresh and natural grass green and soft wood wallpaper, also don't do too much adornment, hang up the background of the head of a bed children of her own paintings, furnishing articles is a handicraft, it is not just a house, and children happy childhood memory.
◆
二层平面图
Second floor plan
整个二楼是新建出来属于主人的独立空间,独立的衣帽间能放下主人好多喜爱的物品,简单又不缺乏想象力的卧室空间,床头背景的设计也是独具匠心的使用几何图形,增加空间的层次感。就连卫生间都有足够的淋浴和盆浴的自由选择空间,可谓是最理想的私人领域了。
The whole second floor is a newly built independent space that belongs to the host. The independent cloakroom can put down the articles that the host likes a lot. It is simple and does not lack imaginative bedroom space. The design of the background of the head of a bed also shows originality in using geometric figures to increase the administrative levels of the space. Even the bathroom, with its choice of shower and bath, is the ideal private space.
◆
效果呈现
The effect appears
◆
关于半间设计
About half room design
半间natureroom
公司地址
总公司:上海市长宁区愚园路1107号半间设计
TEL/V:19821416616
梁东
分公司:
贵阳市观山湖区金阳南路6号居然之家
TEL/V:13162082897
高丽娟
客服
消息
收藏
下载
最近
































