查看完整案例


收藏

下载
Type | 项目类型: 软装设计
Location | 项目位置:贵阳 观山湖区 天麓壹号
Area | 项目面积:230
㎡
Design | 设计单位: 上海半间设计贵阳分公司
Team | 设计团队: 高丽娟 殷法涛
色彩在室内设计中占据着重要的位置,并承载了很多效能,如风格取向、情感寄托、甚至身心健康等,因此色彩的运用,会给居者的生活增添许多层次感和个性感。利用色彩对风格的营造,也会使室内空间的形态更具表现力。
Color is occupying important position in interior design, carried a lot of efficiency, if style orientation, emotion is consign, even physical and mental health to wait, because this is colorific apply, the life that can give reside adds a lot of administrative levels feeling and individual character feeling. Use color to build to the style, also can make the form of interior space more expressive force.
◆
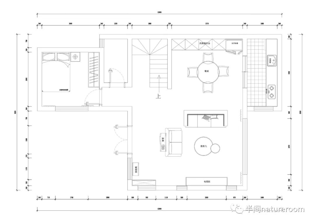
一层平面图
first floor plan
◆
效果呈现
The effect appears
一楼会客厅为开放型空间,揽括了门厅,客餐厅和西厨,使得整个空间更加的大气,开阔。同时也增加了空间的流动性,顶面的设计也在一定程度上对空间进行了划分,不会让人感觉到凌乱无序。在色彩的运用上也遵循主次关系,蓝白色的经典搭配,再加以点缀,让整个空间充满了艺术的生活气息。
The meeting room on the first floor is an open space, which includes the entrance hall, guest dining room and western kitchen, making the whole space more atmospheric and open. At the same time, it also increases the fluidity of the space. The design of the top surface also divides the space to a certain extent, so that people will not feel messy and disorderly. In the use of color also follow the primary and secondary relationship, blue and white classic collocation, and then embellished, so that the whole space is full of artistic life.
◆
二层平面图
Second floor plan
◆
效果呈现
The effect appears
二楼主卧背景墙通过高级灰和墨绿色拼色处理,和朱红色的床形成对比,凸显了主人的时尚个性,旁边放置休闲沙发,适合夫妻二人在闲暇的清晨午后,在窗边沐浴阳光,阅读饮茶,抛开快节奏的工作,尽量享受休闲时光,感受慢生活的魅力。
Second lie setting wall through advanced building Lord grey and dark green color matching processing, and contrasts with the red bed, highlights the master fashion and personality, placed next to the leisure sofa, suitable for the couple in the morning, when leisure afternoon, the sunshine in window edge, reading tea, despite the fast pace of work, try to enjoy the leisure time, feel the charm of slow life.
◆
三层平面图
Three floor plan
◆
效果呈现
The effect appears
er
三楼儿子房以蓝白两色为主色调,配以橘黄色为点最,打造年轻时尚的空间,通过灵活的空间塑造与高级感的软装搭配,小空间也大气时尚,细节上的处理又增添了浪漫的品质感。
The third floor son room with blue and white color as the main tone, with orange as the point of the most, to create a young and fashionable space, through flexible space shaping and advanced sense of soft outfit collocation, small space is also atmosphere and fashion, details on the processing and add a romantic sense of quality.
◆
关于半间设计
About half room design
半间natureroom
公司地址
总公司:上海市长宁区愚园路1107号半间设计
TEL/V:19821416616
梁东
分公司:
贵阳市观山湖区金阳南路6号居然之家
TEL/V:13162082897
高丽娟
客服
消息
收藏
下载
最近




















