查看完整案例


收藏

下载
点击上方蓝字关注我们↑
↑
↑
↑
项目地址
:洛阳亚威金尊
项目面积
:107㎡
设计风格
:奶油系现代
设计团队
:庆设计&禹果软装
—————————————————————
“ 空间,是生活的容器。当这容器能够确实呼应、合乎我们的需求与愿望,生活才能真正有滋有味、自在自得。”
简介:
一套三口之家:男主热衷于每日阅读“ 希望拥有一间自己的独立安静之所,女主希望空间整体舒适干净、放松自然 ” ,同时对收纳空间的要求比较高。
整体设计方案,通过对空间疏密有致的规划,配合自然家居材料,以及光学的合理运用,增加了空间的灵动性和层次感。
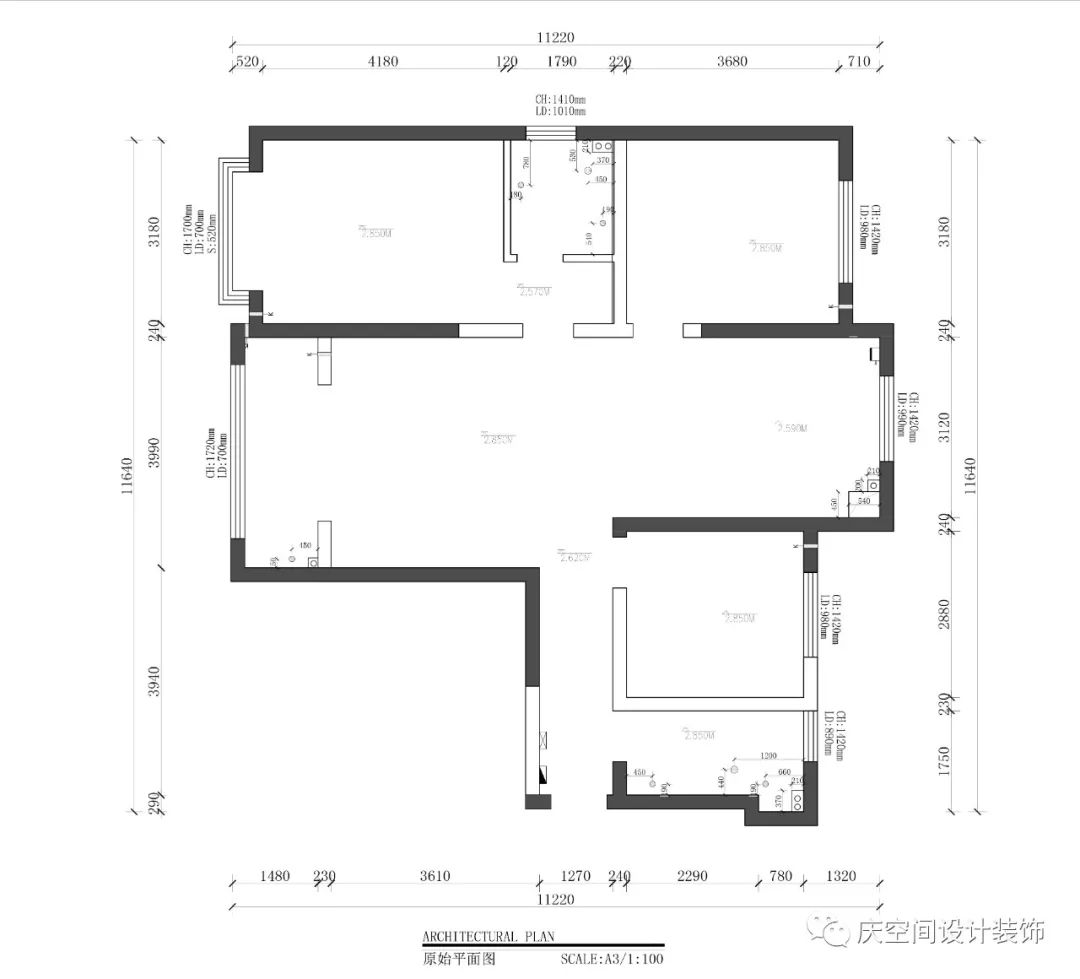
原始结构图
平面布置图
拆掉客房墙体做转角鞋柜,干区对面柜体可作为客卫储物,中间做开放格,方便放置 、随手拿取,鞋柜与客房衣柜共用柜体,即是柜也是客房的“墙”
木质材料的温度以及生命力和墙面流畅的线条、简洁的造型、素雅的色彩一同创建出干净、温馨、自然的生活空间。作品的呈现与业主家里简单、淡然、热爱原生态的生活态度密不可分。
客厅与阳台打通、地砖通铺、客厅采光+观景感
原木的圆弧茶几搭配浅灰色的沙发使空间柔和起来。墙面壁灯作装饰整体氛围感拉满 nice√
客厅整体色调多用原木色、米灰色、奶绿色
、奶咖色
与带有文艺风格的女业主非常搭配 。整体硬装多运用异形、圆弧结构营造舒适、温润、独特的居住氛围。
电视背景墙面简单做了造型设计,奶绿色柜体点亮了背景墙,墙面不再单调、枯燥。下柜做悬空设计,后期方便打扫。开放格随手收纳,不显凌乱 。
厨房属于可开可合的半开放式厨房,u型布局、冰箱放入厨房、使用玻璃推拉门,视觉上放大餐厅空间,采光也不受影响。
主卧作为日常休息场所,整体色调柔和,提供好的休息氛围。床头的壁灯转头设计更加方便,衣柜做嵌入式,顶天立地的大衣柜。
开放格+床头柜设计,避免第一片柜门打不开的尴尬
主卫改为书房,最大化利用空间,定制 “ 一体书柜+书桌+衣柜 ” 的设计,满足业主想拥有一间独立书房空间的需求 。
儿童房整体墙面乳胶漆,无造型设计,带童趣兼具设计感的主灯为主要照明光源 。
客房面积较小,采用无主灯设计,筒灯作为主光源,从视觉上放大整个空间,衣柜与走廊鞋柜共同组成“墙面”,对这块结构感兴趣的小伙伴可以研究一下我们的平面布局哦
设计不止在于提高居住者的生活品质,而是要用各种细致入微的小细节和带有温度的想象力去填满
庆设计|日式甜品店|方案展示
庆设计|龙猫的家|实景展示
庆设计|轻复古时光|实景展示
庆设计|腹有诗书气自华|方案展示
庆嘚吧嘚|轻复古时光|实景拍摄现场
庆设计|新中式·康桥顶层复式|实景展示
庆设计实景|色彩浓郁的摩登公馆
客服
消息
收藏
下载
最近


















