查看完整案例


收藏

下载
传承与传播
传统技艺所处的历史语境与当代生活存在较大差异。这种差异性使其显得抽象而不易解读。在本项目中,我们尝试用空间化的方式来阐释传统技艺,化被动解读为主动互动,让传统技艺变得易读易懂,在精神上融入当代生活。
▼艺术馆入口
▼项目概览
▼装置展示厅
▼展厅直通街道
▼装置与展墙
十竹斋
十竹斋是一个历史悠久的木版水印工坊,已传承 400 余年,入选了国家级非物质文化遗产项目名录。其木版水印工艺分为勾描、刻版、印刷三道工序,主要用以创作版画及复制书法、绘画等艺术作品。
▼木版水印作品及雕版
▼木版水印过程
转释传统
木版水印技艺核心为分版和叠印。根据原画的笔迹、色调等因素分拆版块,多次叠印,精准复制原作。我们提炼这一核心,将其“分版叠印”的线性过程同时展现,把一副画的所有分版印刷在不同透明板上,按叠印顺序组合成层叠装置。直观展示木版水印的核心工艺,让抽象的过程一目了然。
▼层叠装置
▼装置展示工艺步骤
▼装置与展厅
▼装置展示工艺步骤
▼装置展示复制属性
当下与历史
十竹斋艺术馆位于商业街,外边是繁华的市井街道,内部是传统技艺文化。把历史引入当下,需要一个连接空间。我们便把此空间设置在艺术馆前厅。在这个连接空间里,展示技艺核心的层叠装置错落布置,形成丰富的空间形态,吸引商业街行人进入。当人们驻足观看,便可感知传统技艺的精华,进而走进主展区了解木版水印的历史。同时层叠装置组合也划分出了不同的展示空间。
▼艺术馆与街道
▼从街道看展厅
▼装置与时间轴
▼前厅引入主展厅
空间嫁接
本项目将艺术馆“嫁接”在连锁酒店内,尝试让传统技艺文化和当代生活相融合。利用酒店地处市井、营业时间长等特点,打造“街坊里的 24 小时艺术馆”。让传统文化走出博物馆,走进生活。
▼艺术馆与街坊
▼展厅与街道
▼展厅与街道
▼装置与时间轴
▼装置反射灯带
▼装置穿透效果
▼主展厅
▼轴测图
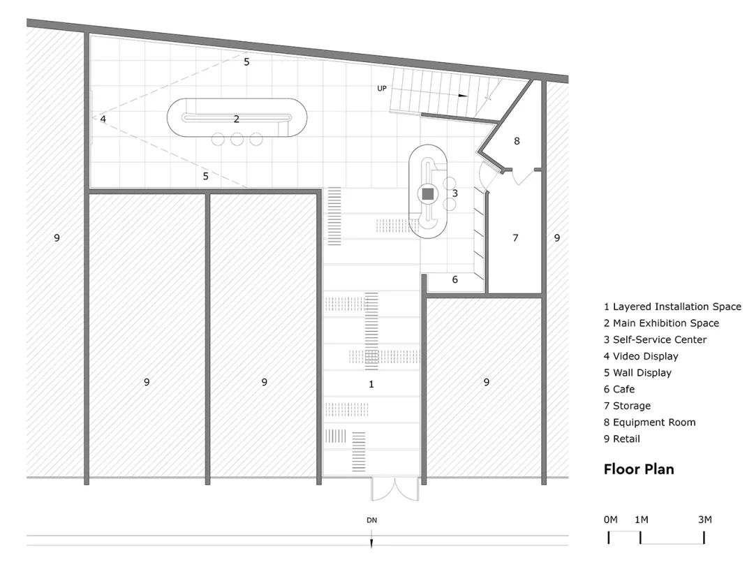
▼平面图
项目空间信息:
空间名称:十竹斋艺术馆
空间类型:商业空间、展览展示
空间地址:浙江省杭州市上城区高银街 58 号
非遗传承人:魏立中/杭州十竹斋艺术馆
设计公司:SITUATE 上下四方建筑事务所
设计团队:张明慧、张朕、张红瑜
展览策划:黄姗/未由实验室
空间面积:150 平方米
空间主材:水磨石、铝板拉伸网、实木多层板、镜面不锈钢、透明 PC 板、线性灯、玻璃
空间摄影:杜莐
项目客户:住友酒店集团
·END·
亚太公装
优秀案例、行业知识分享
客服
消息
收藏
下载
最近


























