查看完整案例


收藏

下载
复旦大学新江湾第二附属学校项目位于上海新江湾北部,是一所72班九年制一贯制中小学校。
东临城市主干道淞沪路,北为绥芬河路,西为恒学路,南为复旦大学新江湾校区。
用地38393㎡,总建筑面积49800㎡,按预制装配式混凝土结构体系、绿色建筑二星建造。
设计难点:如何妥善解决较小的用地环境以及较低造价条件与高品质教育设施需求之间的矛盾,并合理布置具有不同功能的建筑体量;如何突破中小学校行列式布局的刻板印象,创造更多充满活力的开放空间。
集约化
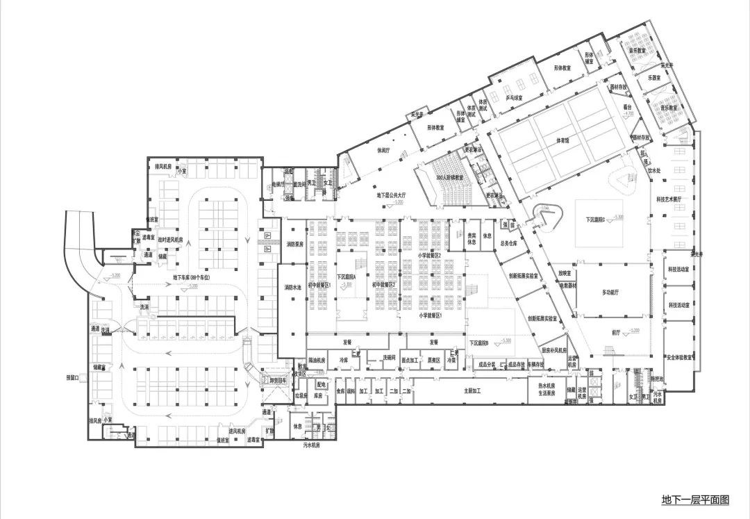
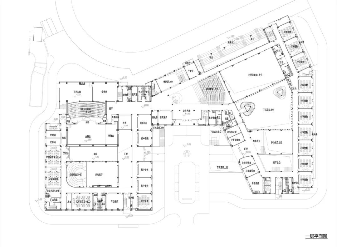
校区按东、西向分为运动区和教学区,以减少东侧淞沪路的噪声影响,并易接驳西侧城市道路;按南、北向把建筑分为小学部、中学部,两者通过中区的综合部(办公和公共实验室)相连接。
学校对教育设施的数量和品质有较高要求,如设置500座剧场、300座报告厅、多功能教室、展厅、体育馆、400米标准运动场等。为节约用地,与惯常手法如“轴线对称、行列串联”不同,项目因地制宜,采用“整体连贯、空间围合”的“弓”形体量,用集约化手法使布局更加紧凑、各种设施密切联系,形体富有节律,一气呵成。
围合与多中心
连贯的“弓”形体量围合3处空间:U形主入口区、北部厅院区和南部厅院区。在形态上,内院、中厅等公共空间与大空间功能用房相结合,形成各区域的的核心空间;在功能上,集中式、中厅式的布局,避免受天气影响,高效利用教学设施,符合走班制模式及多样化教育理念;在空间效果上,中庭、环廊、台阶等连接了不同高差的公共活动场所,形成了多中心、上下灵动的空间形态。
空间与起伏
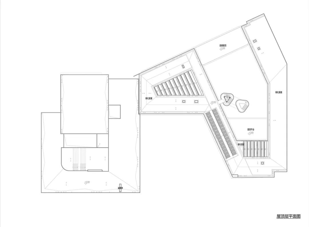
为提高用地效率,把建筑分为下部、上部空间,在竖向上创建多层次的“地面”场所。
下部包含较大体量的体育馆、报告厅、餐厅等,沉入地下弱化建筑体量,为争取自然通风、疏散采光要求,嵌入了3处下沉庭院。上部则布置对日照需求较高的教室、实验室和办公室,并充分利用屋面场地。
这些新的“地面” 形成了流动型共享空间如采光中厅;
高大型空间如体育馆、阅览室、多功能厅;
围合型的庭院空间;
退台型各层屋顶花园;
观演型空间如阶梯教室、剧场、室外看台。
营造了多维度、自由的、活泼的校园环境。
结构与立面
结构为预制装配式混凝土体系(PC),重复的构件便于装配化的实施。立面结合结构做法有3种形式:2种主立面设置水平遮阳构件,保证采光均匀性;东立面为锯齿状,兼顾遮阳与采光。立面材料为低价的仿石涂料,局部点缀铝板幕墙,以“灰、红”色调搭配。整体效果律动、明快且细腻,反映装配式特点但不呆板,符合中小学建筑的特点。这是学校项目在预制装配式混凝土结构体系发展方向的尝试。
结语
建筑师通过集约的总体布局来适应狭小的用地环境,采用更个性化的建筑空间以容纳更丰富的教育设施,并创造更立体的、充满活力的室内外环境来提升校园品质。在这种高密度的城市建设的条件下,复旦大学新江湾第二附属学校是对基础教育空间设计的一种发展和探索。
项目负责人:王文胜
设计团队:王辉、钟强、程熠
结构设计:金刚、马东亚、李继国、文超
施工方:上海建工二建集团
委托方:上海城投(集团)有限公司、杨浦区教育局
·END·
亚太公装
优秀案例、行业知识分享
客服
消息
收藏
下载
最近



















































