查看完整案例


收藏

下载
欢迎点击上方蓝字
“世界上唯有两样东西能让我们的内心受到深深的震撼,一是我们头顶上灿烂的星空,一是我们内心崇高的道德规则。”——康德
南京市交管局指挥中心,用现代美学的手法蕴涵服务人民、纪律严明的精神。
圆弧形的电子显示屏,网罗万物,包罗万象,大气而庄重。而弥漫着点点“星光”的幽邃的穹顶则给人以鲜明浩瀚空灵的视觉印象,宛如置身于浩淼苍穹,富有浓厚的独特空间的人文诗意。
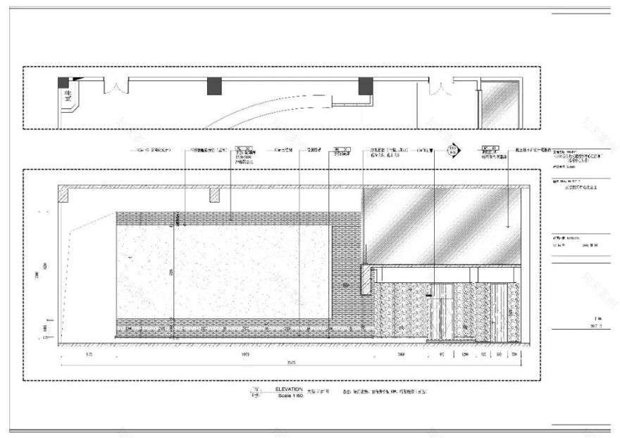
地面采用鱼骨状的地板拼花,与顶面局部的结合,丰富了空间块面相互呼应的状态,和谐而统一,灵动而绵延,喻示着正气浩然的精神。
桌角处蓝色流线型光的线条,成为空间视觉的导向性标志。看似随性摆放的办公桌椅,实则在遵循着某种规律,当我们在星空下聚神工作,必会感受到在美妙空间徜徉的身心自由。
那圆弧形的环岛楼梯,不同的半径,构成丰富多变的空间曲线。各种圆弧旋空间曲线的导向律动,成为了空间的主导,导演着建筑空间,拾级而上,脚下是莹莹的灯光,指引着向上的方向。
星空之所以美丽,就是因为在无限的宇宙中,不管黑暗如何蔓延,都有星星的光芒去把它照亮。
星空下的准则05
星空下的准则06
星空下的准则07
星空下的准则08
星空下的准则09
星空下的准则10
星空下的准则11
星空下的准则12
星空下的准则13
星空下的准则14
星空下的准则15
星空下的准则16
星空下的准则17
星空下的准则19
星空下的准则20
项目名称:南京市公安局交通指挥中心
设计方:南京市室内装饰设计研究院
项目设计&完成时间:2017.12~2018.
设计总监:徐茂华
设计团队:徐骊、徐幻欢、李巧云
设计面积:673㎡
星空下的准则02
星空下的准则03
星空下的准则04
星空下的准则05
星空下的准则06
星空下的准则07
星空下的准则08
星空下的准则09
星空下的准则10
星空下的准则11
星空下的准则12
星空下的准则13
星空下的准则14
星空下的准则15
星空下的准则16
星空下的准则17
星空下的准则19
星空下的准则20
项目名称:南京市公安局交通指挥中心
设计方:南京市室内装饰设计研究院
项目设计&完成时间:2017.12~2018.
设计总监:徐茂华
设计团队:徐骊、徐幻欢、李巧云
设计面积:673㎡
星空下的准则02
星空下的准则03
星空下的准则04
星空下的准则05
星空下的准则06
星空下的准则07
星空下的准则08
星空下的准则09
星空下的准则10
星空下的准则11
星空下的准则12
星空下的准则13
星空下的准则14
星空下的准则15
星空下的准则16
星空下的准则17
星空下的准则19
星空下的准则20
项目名称:南京市公安局交通指挥中心
设计方:南京市室内装饰设计研究院
项目设计&完成时间:2017.12~2018.
设计总监:徐茂华
设计团队:徐骊、徐幻欢、李巧云
设计面积:673㎡
亚太 公装
简 单 快 捷
欢迎关注
长按关注
客服
消息
收藏
下载
最近






















