查看完整案例


收藏

下载
该套案例为
北欧风格
这是一套北欧风格的居所
男主人一
直在海外工作
现在要回国了
把之前买的房子装修成自己喜欢的样子
目前是独居
父母
有时候会过来小住
喜欢简单清爽的生活氛围
业主对生活品质有着自己独特的要求
喜欢更亲和自然的原木元素
和更柔和的马卡龙色系
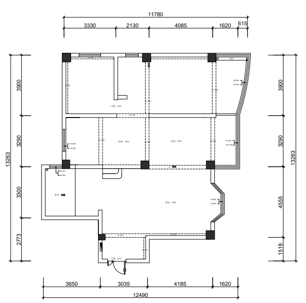
平面结构图
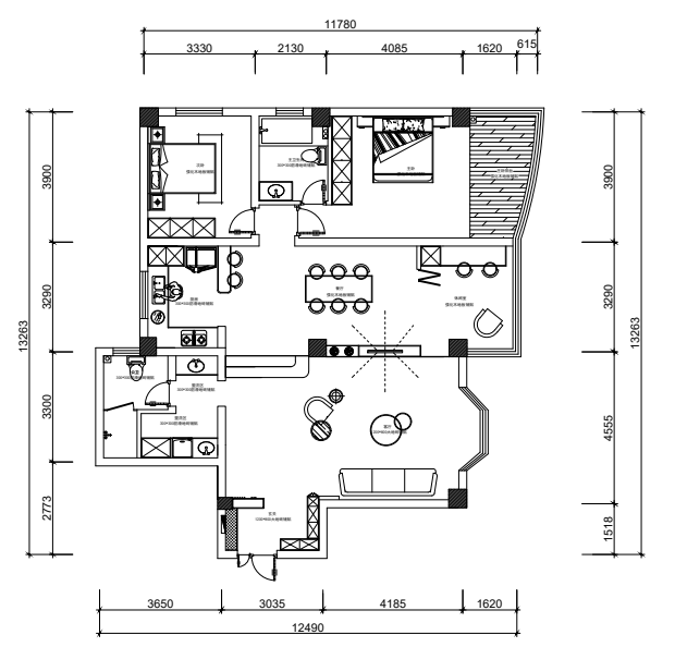
平面布局图
项目 Name / 蓝天小区
面积 Area / 146㎡
户型 Layout / 套四改套三
风格 Style / 北欧
模式 Mode / 全案服务
疲惫有沙发为你撑腰,乏味有阳光为你提神,烦心的时候,满墙的淡绿就能净化眼睛。这个客厅空间,每一平米都是为舒适而搭配出来的。
卸下手包、脱掉皮鞋,在进门的柜子前做的这些事,其实就是进入放松模式的前奏。栅栏隔断放在入户与客厅处,既不占用空间,又多了一份丰富感。借助错层户型的天然优势,墙面可以变得丰富又有趣。
独立的餐厅空间,给聚餐带来更多仪式感,也扩展了客厅空间。垭口做了金属门套,为家增加了华丽的轻奢氛围。
用原木做墙壁、做地台,享受大自然赋予夜晚的静谧基调;
在某个慵懒的午后,让懒人沙发包裹身体,在地台上想象一次沙滩上的度假之旅。
设计师认为,家对于每个人来说都是唯一的,它应和着主人的内心世界,调节着主人与外面世界的相关性,每一块空间,都可以缓解压力、包容自由。
喜欢这样的设计吗?
现在报名预约本案设计师为您设计
我要到店了解
点击下方
“阅读原文”
即可在线预约
客服
消息
收藏
下载
最近

























