查看完整案例


收藏

下载
该套案例为
黑白灰极简
对于这种黑白灰极简的装修
风格
从广义的视觉感官中
会给人以过于冰冷的感觉
但另一方面这样的设计
在生活节奏快、工作压力大的当下
同样也会拥有
返璞归真的质感
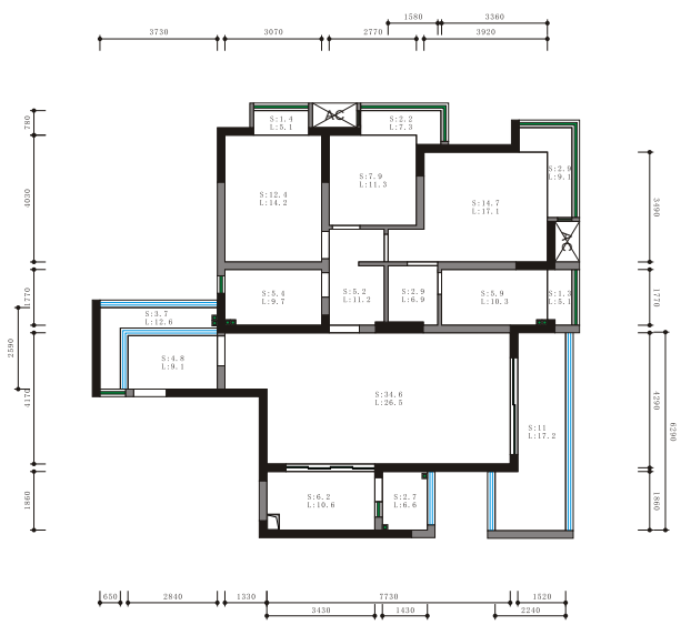
平面结构图
平面布局图
项目 Name / 新鸿基悦城
面积 Area / 148㎡
户型 Layout / 平层
风格 Style / 黑白灰极简
模式 Mode / 全案服务
空间和人的内心性格很像,不复杂的颜色,利落的线条,描绘出房屋主任的居住态度。
含蓄干练的设计表达,清爽干净中透露着出挑的
活力。
中岛餐桌一体的定制设计,将生活精致的仪式感氛围烘托的非常加分,甚至能够想象当家人与你最爱的美食上桌时对面而坐谈笑用餐之间,幸福而温暖的情绪就此漫延开来。
超大的收纳柜体承载了餐边柜、酒水柜、陈列、储藏等多种功能,无把手的设计,让每一方寸都尽显极简。
睡卧采用灰色主调,营造轻松舒缓的休息氛围。软饰材料包裹的床头背景墙拼接木质材料墙裙边让步入空间的视觉重心不显单调。在软装的选择上超高的床头靠背让坐卧之间皆被柔软包裹。
L型衣帽间设计,超大收纳空间,满足居住者一年四季衣物与饰品的收纳。分区有度的柜内设计,贴心之余,为衣物收纳提供了更多的区域选择。
男主的私人领域将“简”发挥到极致,“棱线分明”的定制书桌+一张双人沙发即是他最理想的天地。游戏、娱乐、会客、放空,书房毫无疑问是他最爱的私人主场。
喜欢这样的设计吗?
现在报名预约本案设计师为您设计
我要到店了解
点击下方
“阅读原文”
即可在线预约
客服
消息
收藏
下载
最近






























