查看完整案例


收藏

下载
该套案例为
现代风格
是一个公务员小姐姐独居的家
原有户型拥有三间卧室
但是由于业主
不喜欢空间过于局促
需要独立写字台 独立衣帽间
热爱烹饪 但不接受开放式厨房
注重空间收纳
于是选择将原来的户型
做了比较大的改动
同一空间中将原本的客厅
通过设计进行区域划分
打造出兼具学习、休闲和阅读的功能区。
原始结构图
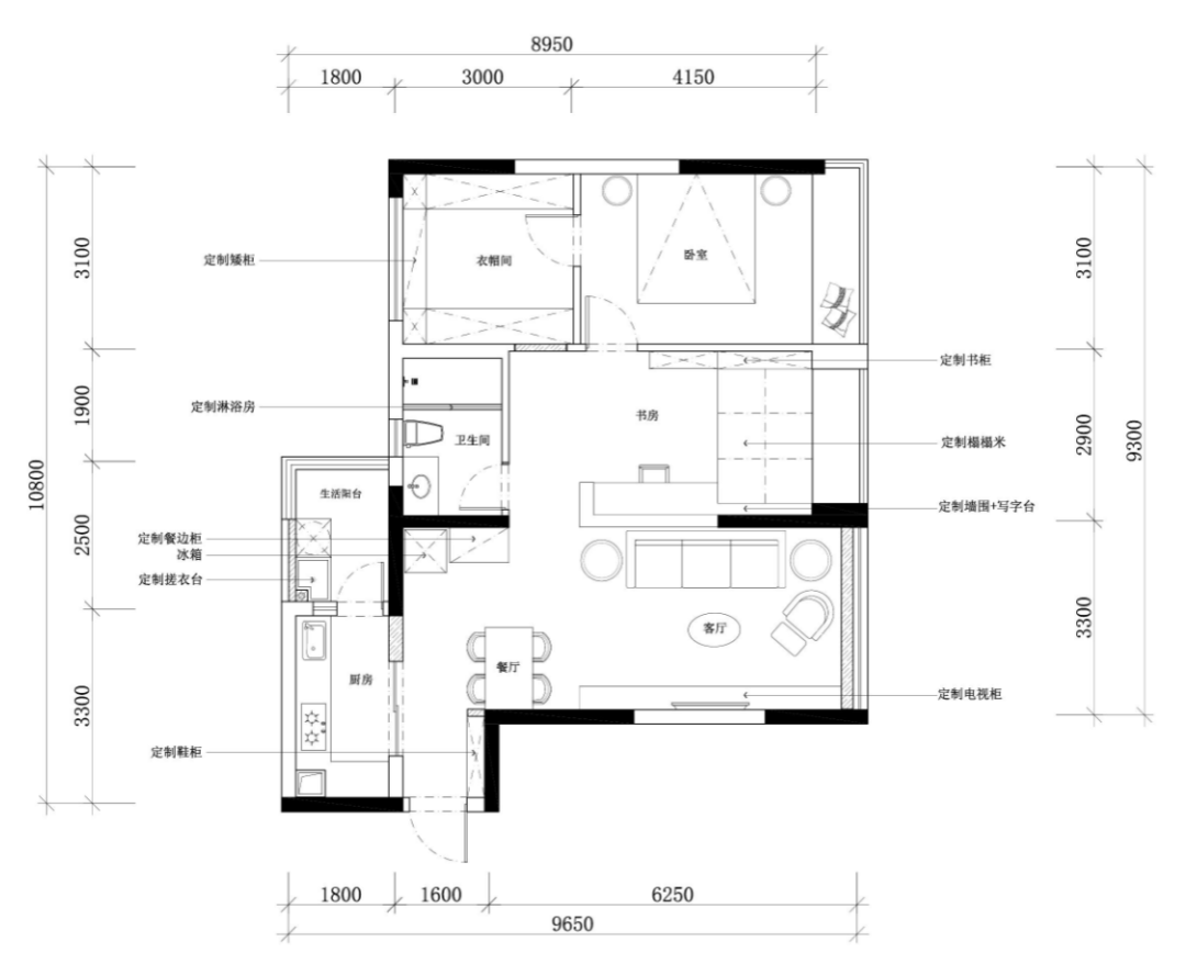
平面布置图
项目 Name / 龙湖西宸原著
面积 Area / 110㎡
户型 Layout / 套三改套一
风格 Style / 现代
模式 Mode / 全案服务
整体通透的开放式客餐厅环境让居住者非但未感到凌乱反而营造出井然有序,动线空间合理的舒适住感。
餐厅空间摒弃繁复与奢华,选择了简单的线条的桌椅,低调而素雅,满足日常就餐的功能同时也顺应了整体设计语言中的自然舒适感。
书房是整个空间设计的亮点,
利用半开放式的
隔断将客厅分区为多种功能
。办公学习区+阅读休闲区合为一起,整体空间感通透而明亮,放大了整体空间的视野感官。
同时设计师高效利用墙面将收纳功能融入其中,开放式的书柜格栅与柜体的结合,不仅能够收纳大量藏书、摆件,更能收纳日常出门的衣物。同时窗台的榻榻米设计,也能在后期朋友亲人到访留宿提供便利。
厨房
空间
狭长
,虽
然
面积不大,但对于独居于此的小姐姐来说完全够用。
从地到顶的大量橱柜满足了日常烹饪收纳的极大需求。
L型橱柜的设计让烹饪/洗切/摆盘等操作可以井然有序的进行,完全不用担心台面拥挤混乱。
推拉门外即是西餐烹饪区,蒸烤箱与嵌入式冰箱和一般到顶柜体的加入形成模块化的西厨区域。让日常简餐的烹饪操作变得格外便捷。
整体卧室的配色与延续全屋整案的色调,没有过多设计元素的修饰,更多的是突出自然平和。营造出每一次的舒适的睡眠氛围。
空间虽小,但对于女生来说拥有一个衣帽间是绝对不能少的。最大程度上争取收纳空间,将定制的矮柜作为梳妆台使用也是一举多得。
喜欢这样的设计吗?
现在报名预约本案设计师为您设计
我要到店了解
点击下方
“阅读原文”
即可在线预约
客服
消息
收藏
下载
最近
































