查看完整案例

收藏

下载
点击上方蓝色字关注我们~
最美新中式
华浔·设计
设计风格:新中式
项目面积:300㎡
项目地址:泰州·华泽天下
| 设计说明 |
“山气日夕佳,飞鸟相与还。”古代的诗人陶醉于一片自然风光,寄情于景,品悟理趣,于忙碌奔波的现代人而言,不失为一种向往。
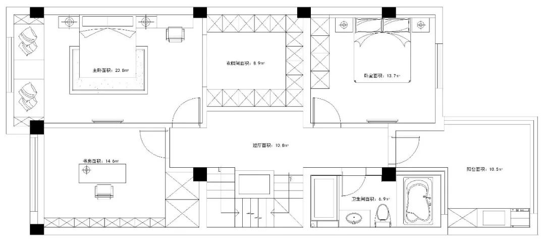
▼ | 平面图 - plan |
一层平面图
二层平面图
三层平面图
室内花园的设计增添了中式园林的元素,公共空间开敞式的设计巧妙的运用隔断、花格等元素,再现了移步一景的精妙小品。
▼ | 客厅 - living room |
客厅家具线条简约流畅,不同材质的运用和碰撞,凸显新中式风格特有的质感和美感。
水墨国画的元素点缀其中,巧妙地融入沙发、座椅、吊灯、茶几等家具,赋予空间隐约悠远的意境。
“
室内单品加以青花蓝、琉璃黄、长城灰、水墨黑和玉脂白点缀,构成一道缤纷的中国传统色彩风景线,使整个空间不再拘于沉稳单调的色调。
”
茶如人生,人生如茶。
巧妙运用隔断,在客厅一边再现茶禅一味。增强空间的开放性,再现了移步一景的精妙小品。
▼ | 餐厅 - Dining room |
圆,在中国传统文化中,往往被寄予团圆、圆满的美好希冀。
以大理石纹瓷砖进行虚拟分区,与天花形成区域呼应,更显空间气势。
餐厅的桌椅柜子皆有“圆”元素的融入。
中式太师椅、山水背景墙、仿古吊灯相互辉映,保留了中式韵味的同时,使整个空间更加活泼并富有节奏。
▼ | 书房 - Study |
二层书房
蓝色渐变层次分明的山脉
,给书房空间增添几许静谧的氛围,于书卷文物中品味禅意和淡然。
圆形实木置物区镶嵌的背景墙面,
文物古董的收藏摆放有序,透露出主人深厚的文化修养。
三层书房
本书房置于三层卧室内,延续层书房的静谧空间。
▼ | 茶室 - tearoom |
“寒夜客来茶当酒,竹炉汤沸火初红”
。茶禅一味,在茶水的浓淡中品味人生境界的高低。茶室重视意境的渲染,室内花园的设计增添了中式园林的元素,巧妙运用隔断、花格等元素增强空间的开放性。
▼ | 卧室 - Bedroom |
二层主卧
主卧空间氛围延续了主题风格,“山水、树木”元素自然融入,人文的气息愈发浑厚,光影之间营造出意境深远的空间氛围,令人不自觉沉浸其中。
二层次卧
蓝色水墨渲染的地毯、水墨山脉装饰画,古韵气息贯穿在整个居家环境中,处处散发着简洁优雅、唯美大气的层次之美。
三层卧室
采用对称式的布局方式,辅以金色线条区分层次,格调优雅大气、造型简朴优美,色彩浓重而成熟,呈现亦古亦今的空间氛围。
三层衣帽间
▼ | 卫浴 - Bathroom |
将中式的经典元素提炼并加以丰富,与现代材质的巧妙兼柔。
大到一个立面,小到一幅画,设计师皆采用去平面化的设计手法进行空间的变幻,
连点于线,集线成面,化面为空间
。
—end—
客服
消息
收藏
下载
最近




























