查看完整案例


收藏

下载
【项目名称】:《恣享时光》
【项目地址】:桂林市
【项目类别】:住宅空间
【项目面积】:356 平方(三层+顶楼露台)
这是之前的样子......
这是设计后的样子......一楼设计效果 01
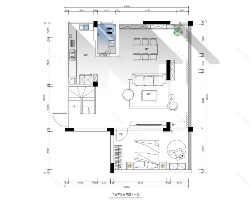
一楼 平面方案布局
二楼 平面方案布局
二楼设计效果表现
三楼平面方案布局
三楼 设计效果表现
四楼平面方案布局
顶楼设计效果表现 04
-THE END-
【所获荣誉】
2021 年度中国室内设计“金堂奖”城市十佳设计师;
2021 年度中国家博会(广州)『
客服
消息
收藏
下载
最近
























