查看完整案例


收藏

下载
【项目地址】:桂林·建干路
【设计面积】:室内 157m²+顶楼花园 231m²
【项目类别】:私人会所
【设计师】:闫晶晶
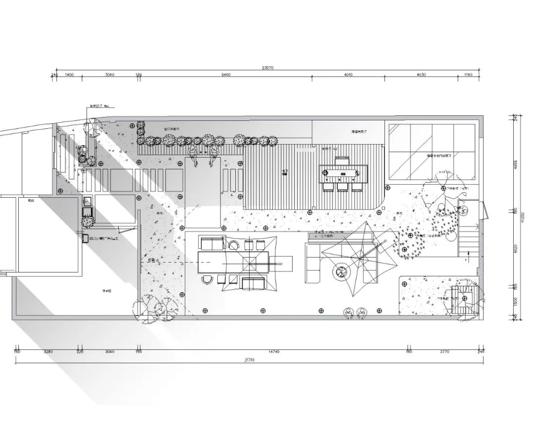
顶楼花园 平面方案布局
效果表现
一座老楼的顶层花园的改造。充满温度与放松,一份艺术与舒适并存的休闲场所~
天很蓝,人很暖,一眼就心醉的地方
植物的青绿给空间带来活力与生机
傍晚,太阳悄悄落下,露台花园的灯光缓缓亮起,花园多用太阳能款的落地灯,节能的同时,也更美观,氛围感更强。
室内包厢平面方案布局
效果表现
“少即是多”是去繁从简的从容感。简约不是简单,而是简洁婉约,独具风致和格调。
生活一半是诗意,一半是烟火。在简约硬装的基础上,软装的高级是一种氛围感,是生活不动声色的柔软,用一个美好,演奏一部序曲。
-THEEND-
【所获荣誉】
2021~2022 年度 第 12 届锋范 IDOL 软装空间类等级奖项;餐饮休闲娱乐空间类优秀奖;居住空间实景类杰出奖;2022 年度 中国设计·新桂系·独秀奖公共空间实景组、居住空间实景组、陈设设计组等级奖项;2021 年度 中国【金堂奖】城市十佳设计师;2020-2021 年度广州设计周 40UNDER40 中国(广西)设计杰出青年;2020 年第十一届广西 IDOL 锋范奖软装设计类优秀奖;2020 年第十一届广西 IDOL 锋范奖餐饮娱乐空间实景类优秀奖;2020 年第六届中国设计·新桂系设计大奖赛居住空间组铜奖;2020 年第六届中国设计·新桂系设计大奖赛公共空间组优秀奖;2020 年第四届欧派杯梦想设计家十佳设计师;2019 年鹏鼎奖“城市骄傲”桂林精英设计师桂林原创设计师;2019 年第三届欧派杯全国百强设计师;2018-2019 年度广州设计周 40UNDER40 中国(广西)设计杰出青年;2018 年中国红棉设计最美现代空间设计先锋人物;2017 年获广西锋范设计花木兰称号;2015 年获中国设计新桂系优秀作品奖。
未完待续...
“不刻意的设计,才是最好的设计,一切回归自然...... ”
客服
消息
收藏
下载
最近


















