查看完整案例


收藏

下载
【项目地址】:桂林阳朔 X酒店
【项目面积】:800+m²
【项目类别】:商业空间
【设计师】 :闫晶晶
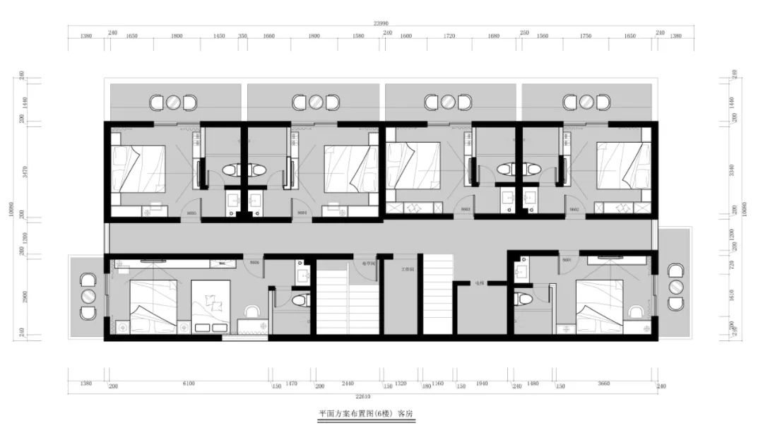
平面方案布局
效果表现
01
一楼 接待区 休闲区
酒店位于桂林阳朔县的繁华街道,针对的客户主要是年轻人,用途旅游住宿为主,所以,本案的风格定位在工业风
02
过道区域
03
客房
客房设计简约形式为主,配合灯光效果,得以呈现现在的最终的效果
-THE END-
【所获荣誉】
2020-2021年度
广州设计周
40UNDER 40
中国(广西)设计杰出青年;
2020
年第十一届广西IDOL锋范奖 软装设计类优秀奖;
2020年第十一届广西IDOL锋范奖 餐饮娱乐空间实景类优秀奖;
2020
年广州家博会设计千人计划入选设计师;
2020
年第六届中国设计·新桂系 设计大奖赛 居住空间组铜奖;
2020年第六届中国设计·新桂系 设计大奖赛 公共空间组优秀奖;
2020
年第四届欧派杯梦想设计家 十佳设计师;
2019
年鹏鼎奖“城市骄傲”桂林精英设计师桂林原创设计师;
2019
年第三届欧派杯 全国百强设计师;
2018-2019年度 广州设计周 40UNDER 40中国(广西)设计杰出青年;
2018
年中国红棉设计 最美现代空间设计先锋人物;
2017
年获广西锋范设计花木兰称号;
2015
年获中国设计新桂系优秀作品奖
.
未完待续...
“不刻意的设计,才是最好的设计,一切回归自然...... ”
客服
消息
收藏
下载
最近















