查看完整案例


收藏

下载
2003西部山区设计奖
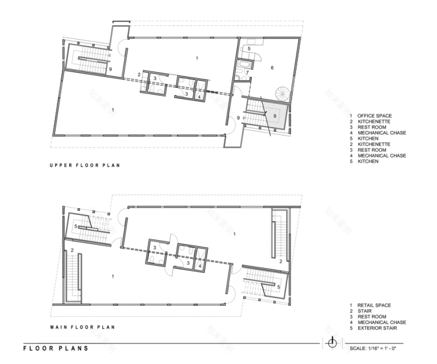
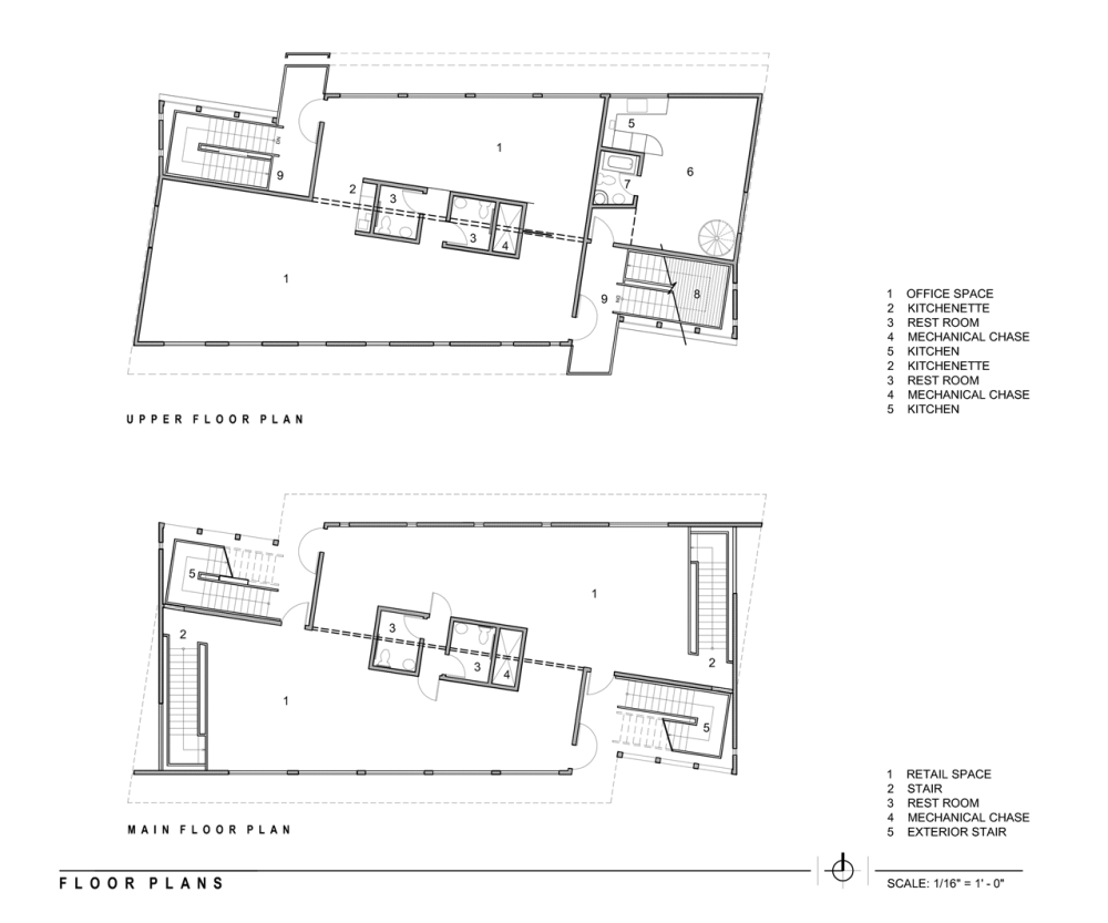
这座7,500平方英尺的商业大楼的设计是为了在地面和地下室两层安装一个定制的硬件分销商,以及上面的投机办公空间。该计划需要灵活性,以便将来再使用,并可能细分的空间在每一层。这导致了一张图,将部分开放的楼梯塔和入口放置在规定的建筑垫的相对角落。然后,这些塔与一条线连接起来,这条线就成了屋顶的脊。屋顶沿北墙和南墙向相反的方向上升。街道一侧在一楼有大量的玻璃,以使商店的正面能见度,上面的窗户与可见景观成正比上升。
在后面,上层的膨胀玻璃为房客的会议区提供了山景。该建筑借鉴了该地区的土著牧场和农场结构。谷仓壁板的质地和颜色,以及在塔楼上的粘合金属石板,加强了这一意图。此外,由此产生的形式表明,随着时间的推移,在该地区的老农业建筑中发现了一种定居现象。
Firm Dynia Architects
Type Commercial › Office
STATUS Built
YEAR 2001
SIZE 5000 sqft - 10,000 sqft
Photos Ron Johnson
keywords:architecture, architecture news, interiors, interior design, portfolio, spec, brands, marketplace, products Whitechapel Building
关键词:建筑,建筑新闻,室内设计,组合,规格,品牌,市场,产品白教堂大楼
2003西部山区设计奖这座7500平方英尺的商业大楼是为了在地面上容纳一个定制的硬件分销商而设计的.
客服
消息
收藏
下载
最近












