查看完整案例


收藏

下载
千岛湖水在中国大江大湖中位居优质水之首,为国家一级水体,不经任何处理即达饮用水标准,被誉为"天下第一秀水"。1984年12月15日浙江省地名委员会正式将新安江水库命名为"千岛湖"。2001年,千岛湖风景区被评为首批国家AAAAA级旅游景区。2010年4月18日,国家旅游局授予千岛湖风景区为国家5A级旅游景区殊荣。
桃源山庄
项目地点:千岛湖
项目名称:桃源山庄度假别墅
空间性质:住宅
房屋类型:独栋别墅
实用面积:600平米(不含花园)
设计机构
:
正饰空间设计
美黎世设计
设计团队:
郑维烨
周慕云 陈昕 柴静
度假别墅不需要考虑大多的细节问题,但是要结合地域特点,把休闲和环境充分融入到空间内。
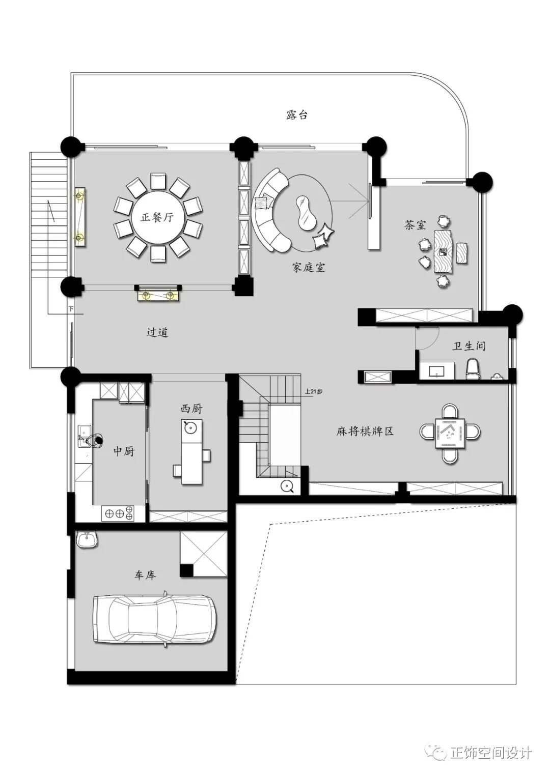
地下一层平面:地下一层空间主要考虑满足就餐与娱乐相结合,由于建筑本身所处景观湖位置,餐厅与茶室放置在景观最好的一侧。
一层平面图:一层主要是三个套间与一个会客室,可以满足多口人同时居住。可以约上三五好友,约一个假期,享受一番湖光山色。
二层平面图:二层同样设置了三个套间,所以卧室都是大幅落地窗,并且尺度上也十分额宽敞。将室外的景致直接引入室内。
三层平面图:三层有一个非常宽敞的空中平台,夜晚在这边可以聚会派对,喝酒烧烤等。习惯在大城市奔波的我们,需要一个能暂时放下手上的包袱,与大自然对话的空间。
部分实景照片
夜晚的湖边,安静而凉爽,除了风声就是波浪的声音。
室内空间明亮简洁,软装陈设精致舒适。
餐厅位置两面环湖,能在品尝美味佳肴的同时,感受湖光山色。
楼梯采用玻璃扶手配感应踏步照明,简约通透。
石材踏步做了防滑处理,玻璃扶手必须夹胶工艺。
电视墙底部的镂空使得家庭室与茶室隔而不断。
石材内部是悬吊是镀锌钢结构,这样的造型一定要确保结构的安全稳定。
组合式茶几可以有更多种可能性,可以作为茶几,也能用作脚蹬。
卧室一角,度角别墅介于酒店与居家之间,比酒店多了一些专属性和烟火气,比住宅多了一些时尚便捷。
双人客房一角
正饰空间设计创始人孙老师与时尚达人美黎世设计设计总监郑维晔小姐
美黎世隶属于美积美国际家居,成立于2002年。凭着对空间的贴切理解,和对生活品位的不懈追求,我们整合丰富的产品资源,以全新的理念对室内外空间环境进行二度陈设与布置,还原其真正生活化、人性化的一面,并以更加细致规范的服务流程,为客户提供专业的整体软装服务。
正饰空间设计创始人孙正栋先生
个人经历:
2008年获得上海交通大学媒体与设计学院设计系学士学位。
2008年入职中国海诚工程科技股份有限公司,第五设计所任建筑设计师。
2010年入职全筑建设股份有限公司,任全装修配套部设计组组长。
2013年上海正饰室内装潢设计有限公司,注册正饰空间设计品牌。
2015年上海正释建筑工程有限公司。
2020年创立正饰全木品牌(上海正势工程安装有限公司)。
主要荣誉
2012上海市优秀室内设计师
2015第六届筑巢奖住宅类提名
2019中建协设计年度大会-2019年度精英设计师
2019中国设计品牌榜-别墅空间提名
2019M+中国高端设计大赛上海赛区最佳人气奖
2019M+中国高端设计大赛省区TOP30
2019金住奖,上海区十大居住空间设计师
2019第十三届大金内装设计大赛优胜奖
2019CEAPVA奖-icva亚太视觉艺术交流展优秀作品
2019诺克奖优秀作品
2020CBDA中国装饰设计奖别墅类金奖
2020 德国红点奖reddot入围-归属
2020华鼎奖2019年度中国杰出青年建筑室内设计师
2020金创意国际空间设计大奖别墅豪宅类铜奖-无界
2020金创意国际空间设计大奖别墅豪宅类创新奖-归属
cbda中建协注册高级建筑师
icda国际建筑装饰设计协会注册高级设计师
中国建筑装饰协会会员
上海装修装修行业协会会员
APDF亚太设计联盟会员
筑巢设计师俱乐部会员
M+设计俱乐部金牌会员
icva设计协会亚太分会会员
代表作品
住宅类平层:
国信世纪海景 ,徐汇中凯城市之光,华侨城,长宁88金廷, 虹桥府邸 ,华润佘山九里,古北国际花园 ,古北瑞仕花园,古北强生花园,翠湖天地,古北御庭,中海紫御豪庭等。
住宅类别墅:
汤臣高尔夫,西郊美林馆,东郊紫园,白金院邸,滨江一号 ,桃花源,一品漫城,复地北桥城 ,湖山在望,天籁园,剑桥景苑,长岛别墅,万顺水源墅,中景水岸,绿城玫瑰园等。
商业类:
沈阳嘉里中心,宝莲购物中心,宁波沐云谷会所,云顶澜山会所,力康集团青浦办公楼,泛美佳丽办公总部,印言网咖,极佳电竞,蒙古国马王大厦样板间,蒙古国在森别墅样板间。
客服
消息
收藏
下载
最近




















