查看完整案例


收藏

下载
梦想给予的时光
是家烟火而不俗的期许
善良而不世故
这个世界
就会在大批量的套餐模式里
有一群发光的人 喜欢独特而拥有初心的你
个人标签 / Personal Label
五年设计经验、双鱼座、90后。
色彩控,喜欢一切与美相关的配搭。对设计有些小执拗,欣赏相互理念契合的客户。
对于设计这件事,大概就是兴趣咯,期待未来每一位都是相吸而来,为提升幸福感而合作。
地址:
景都佳苑 面积:
100㎡
屋主:尚小珍 PHOTO:杨先生
做了很多年的设计,回过头再看以往的案子,
会明显感受到过去的不足,设计的缺点;而那时在期待它拍摄出片的情绪,却依然记得是深刻而激动。也许设计中,会因每一年的历练创造更优秀的案子,而陪同经历那年这段时光的人,只有唯一这套案子的你和她。
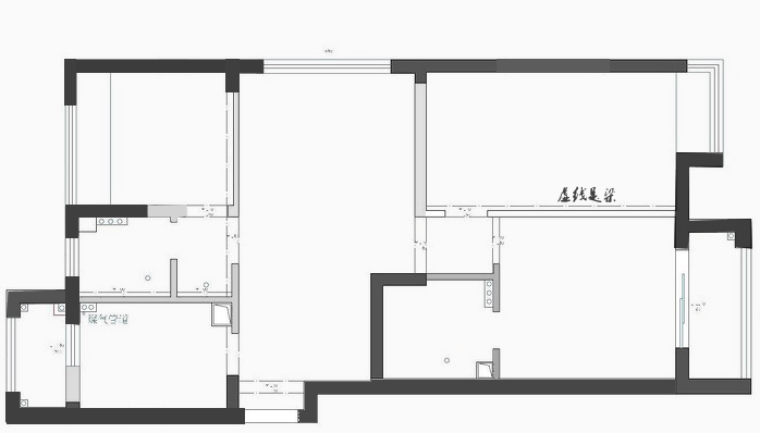
∇ 原始结构图
原户型介绍:户型限制,入门即见客厅;厨房小,设备阳台浪费;北边的飘窗台高度为65公分,无法拆除。
∇ 最终版方案
六月遇到尚小珍,是在前设计公司的洽谈桌上。这是我遇见第三套同户型的案子。
相似的是,屋主的职业都为服装店主。大概便是幸运了,彼此的理念还是配套的。第一次见面,干脆的签订了纯设计合同。余下的半个多月时间,步入了深化图纸,洽谈修改到安排施工人员进场后,我们一同走过将近小半年的时光。
「客厅 Living Room」
屋主的时间较为自由,更多的时候都在工地戴着口罩监督。
我的任务便是,掌控工种进场前与师傅和屋主的反复交接。由于施工方不是公司的施工团队,很多程度上出错率和看不懂图纸的情况还是很多。缺少熟悉的施工团队在管家群按时汇报工程进度与情况。纯设计,跟踪的时间和精力,要比半包来得多很多。此处,感谢屋主尚小珍的辛苦,定时定点的反馈工地状况,让我能够第一时间抓住工地的问题,及时赶到纠正。
「主卧 Master Room」
「主卫 BathRoom」
尚小珍的职业成就她对审美认知的加分,从“走个黑白灰”到后期加入的色彩,紧扣预算,我们在市场里前后挑选瓷砖,比价格,再到后续很多无名的小店的好货,都是小珍女士奔波的成果。我所起到的帮助,更多的是,在她选择的物品上,点头和否定。
「儿童房 Children's Room」
虽然,有好审美的业主,在抉择单品是有一定的眼光,但是,把控整体的工作,依旧还需要专业的设计来排除那些:橙色的床,绿色的沙发,黄色的卡座或各种鲜艳而不冷静的抉择。我们的中心思想,还是要保持它的高级灰,嵌入可调整的配色。尽管如此,她也是不可多得有自己想法并愿意配合设计师的好业主。
「榻榻米 Tatami」
「相关信息 ABOUT IT」
沙发,餐桌,主卧的床来自路桥居然之家;
橱柜,护墙,柜门来自于路桥装饰城周边;窗帘来自屋主的亲朋好友。其余所见均来自淘宝。原定预算30w,完工预算35W。最贵的选择 是柜子和门的定制。
Tips:
柜子和门是大面积奠定风格的基调,好看而质量好的,这笔费用很有必要投资。
以上 是蔡醒醒的案例独白
倘若 在偌大的市场
您寻觅的设计的路上
遇到
迷途
或许在您转身的刹那会发现我这枚
低调而正努力的星体呢
客服
消息
收藏
下载
最近



























