查看完整案例

收藏

下载
去风格化,简为永恒
项目简介
建筑面积:700平米
风 格:极简
设计类型:半包
运用材质
:抛釉砖、石材、木饰面等
设计单位:康盛装饰Kansen Decoration
设计说明
一层原始平面图▲
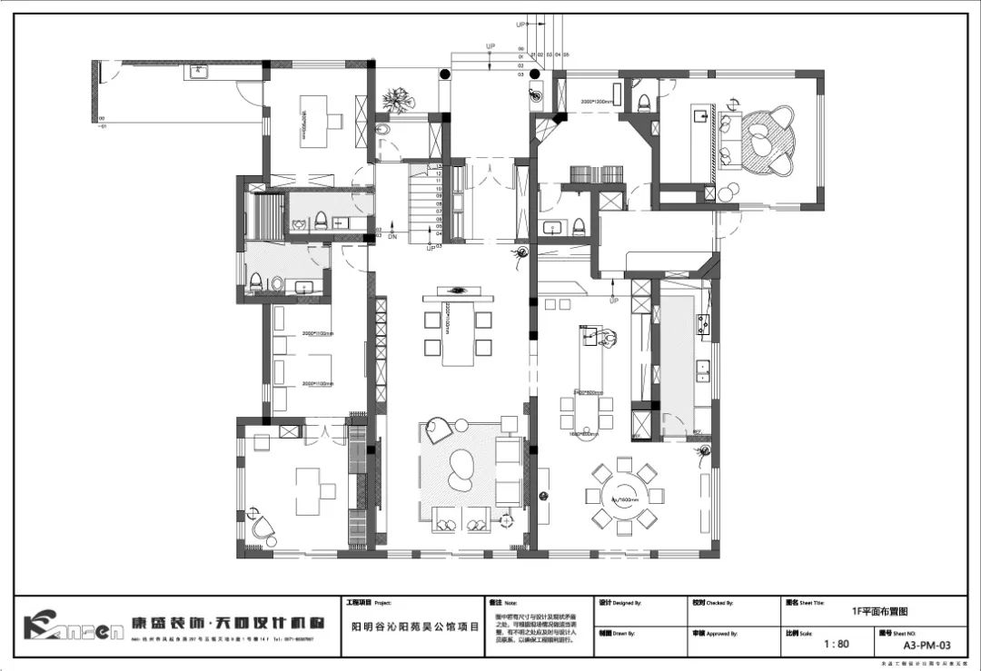
一层平面布置图▲
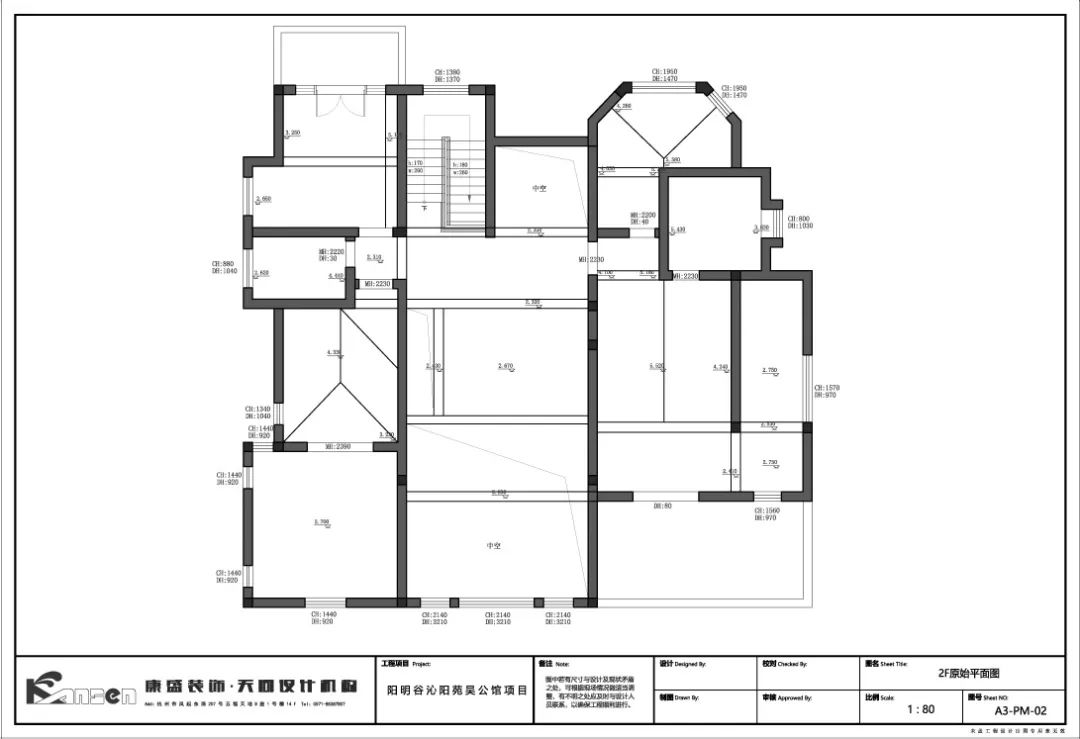
二层原始平面图▲
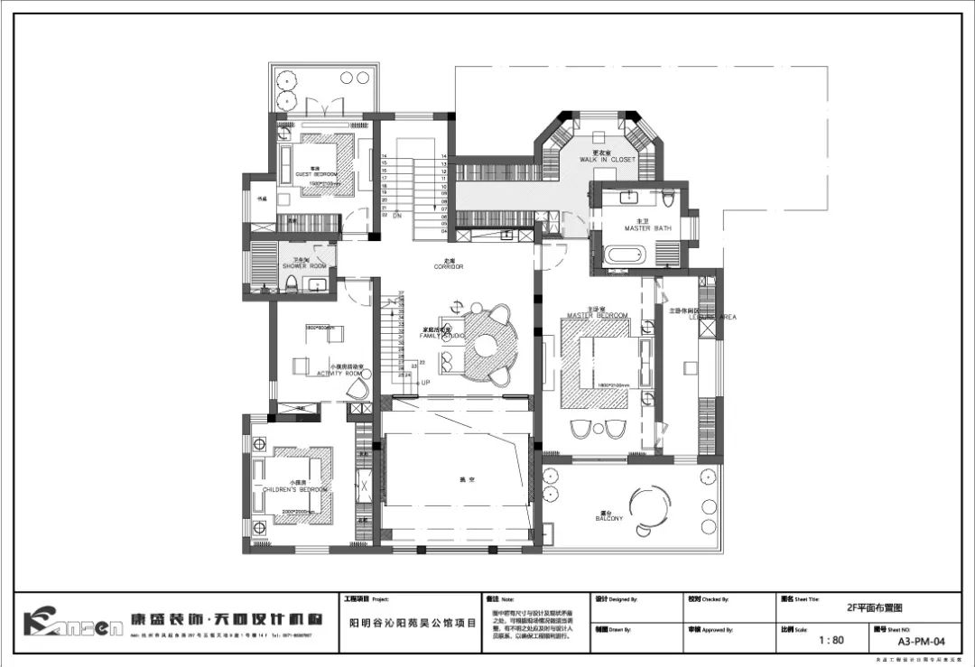
二层平面布置图▲
所有的灵魂都在努力地追求更完美的自我和生活氛围。
马斯洛将人生的需求分成了几大层次,而身处不同层次的人,都有着自己所追求、所奋斗的完美。
注重生活品味、注重健康时尚的现代简约设计风格越来越被人们所喜爱,其整体所表现出的
“简约但不简单”
,不是简简单单的堆砌和平平淡淡的摆放,因为每一处都是设计师深思熟虑后的创新设计和思路的延展。
墨黑与素白有着鲜明的对比
,二者所表现出来的巨大反差,
恰好呈现出一种经久不衰的品质
。在精致的椅子上坐下,翻开躺在素净桌面上的杂志,就算是在厨房一角,也足够散发你自身的优雅气质。在追求品质生活时,陪伴才是最长情的告白。
实景展示
/
客厅
/
Drawing room
本案为两层别墅,设计时用
少即是多的极简主义
为客户创造出一个
简约又不失温馨
的的家庭环境。
大面积亮白色作为空间基调,
时尚、简约、舒适、环保
成为设计出发点。将整体空间扩大,划分区域功能。
亮白、栗色、灰褐色、蒸汽灰作为辅助色与点缀色。
客厅不规则设计的电视背景墙,既兼具收纳功能又起到装饰性作用。简约的灰白搭配,不显老气,反而摩登的很,装饰画点缀,绿色清新的植物
昂首俏丽着,繁而不乱,美不胜收
。
/
餐厅
/
Dining room
/
主卧
/
Bedroom
主卧套房,设计师用胡桃木饰面装饰墙面,清晰的自然纹理,赋予空间舒适的温度。透过阳光的照射,光影丰富了沉稳的胡桃木色,相同的立体肌理,
从抚触中感知深刻的设计力度
。
每一间卧室作为居者的秘密花园,套房式的设计给足相对独立的自由空间。
让空间的天、地、壁很自然地融为一体,
简约低调,尽显淡而有味的空间质感。
老人房
Parents'bedroom
/
儿童房
/
Children's room
/
主卫
/
Main bathroom
/
书房
/
Study room
END
▼
TEI-0571-88387807
◆康盛装饰◆ 20余年做一件事
------------------------
严选辅材、主材,配合高品质环保施工
崇尚人性化的全案定制设计
主张 / 自我 / 无处不在
点击
阅读全文
,走进Kansen Decoration。
客服
消息
收藏
下载
最近















