查看完整案例

收藏

下载
“
读书,旅行。
身体和心灵总有一个在路上。
”
家,温暖着我们,
它能容纳我们路途中收获的感动与惊喜。
把美好收纳在自己的港湾
。
项目简介
建筑面积 : 180平米
风 格:美式复古
设计类型:全案设计
运用材质:大理石、木饰面、地板、石材、进口仿古砖等
设计单位:康盛装饰Kansen Decoration
设计说明
原始平面图▲
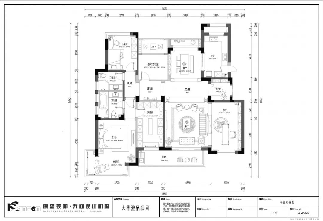
平面布置图▲
美式风格来源于欧洲文化,其风格并不过分强调繁复的雕刻,以舒适大气与多功能为主,但同时也不失怀旧、浪漫的感觉。
本案作为美式风格的其中一种,伴随着浓郁的复古情怀和主人生活的人文气息。
居室色彩主调为深咖啡
色,家
具搭配经典的皮质沙发
,实木家具等。家具、门、地板等都是大面积的咖色,室内各种花饰、摆件、丰富的木线变化、优雅明快的窗帘帷幄是西式传统室内装饰,空间环境表现出华美、富丽、浪漫、神秘的气氛。
整体格局采用一步一景,每一个角度,每一次驻足都带给我们足够的视觉和感官享受。
每一个装饰、静景都是主人热爱生活和丰富格调的点滴体现。
实景展示
/
客厅
/
Drawing room
美式客厅风格较多采用嵌入式石膏吊顶,搭配精致的水晶吊顶,营造出一种怀旧、浪漫的感觉。以地板砖拼接丰富了地面的造型,使得整个空间显得不那么正式。作为地面装饰材料,视觉效果极佳,在沙发区铺上大幅牛皮地毯,使空间区域划分更加清晰。复古造型的组合沙发,点缀的色彩无不彰显主人公热爱生活的精致情怀。家具上乘的质感,
让美式复古的优雅风格得以进一步的彰
显。
-
原设计效果展示
-
-
实景还原
-
/
过道
/
passageway
-
原设计效果展示
-
-
实景还原
-
/
玄关
/
Vestibule
-
原设计效果展示
-
-
实景还原
-
/
书房
/
Study room
大开间书房,简单实用,但软装颇为丰富,各类的书籍,一点乐器,一点摆设,显示主人独有的生活经历,丰富了对生活的认识。
-
原设计效果展示
-
-
实景还原
-
/
餐厅
/
Dining room
/
开放式厨房
/
Kitchen
/
主卧
/
Master Bedroom
美式风格设计理念中的卧室,通常是以功能性和实用舒适度为主要设计理念。大胆运用蓝色乳胶漆作为背景,清爽简洁,且透露着主人公的生活情趣。在饰品布置上,大多都是用成套的布艺来装饰房间,以简化繁。
-
原设计效果展示
-
-
实景还原
-
/
主卫
/
Bedroom toilet
/
儿童房
/
Children's room
/
阳台
/
Balcony
END
▼
TEI-0571-88387807
◆康盛装饰◆
20余年做一件事
------------------------
严选辅材、主材,配合高品质环保施工
崇尚人性化的全案定制设计
主张 / 自我 / 无处不在
点击
阅读全文
,走进Kansen Decoration。
客服
消息
收藏
下载
最近






































