创作上传
VIP
收藏下载
登录 | 注册有礼
知末案例
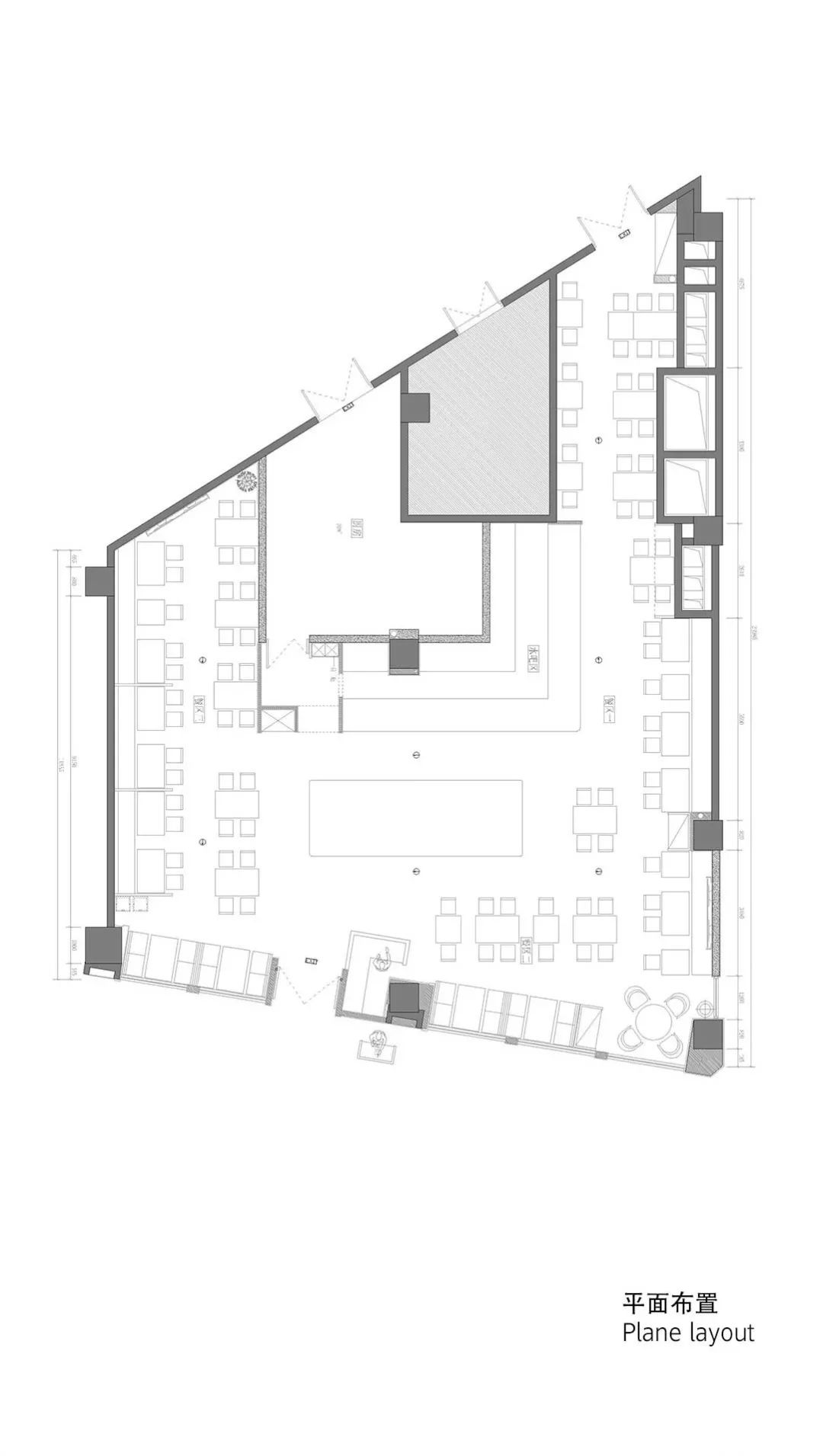
商业连锁 · 诺西欧牛排 · 木水空间设计事务所
2019/06/14 18:30:27
查看完整案例
微信扫一扫
收藏
下载
分享
商业连锁·文甲HOTEL·木水空间设计事务所
福装保 · 解决消费痛点,助力装企成长
大宅全案·正祥贵里香园胡宅·良品空间设计事务所
大宅全案 · 融侨悦熙陈宅 · 致上空间设计事务所
商业连锁 ·茶生活空间展厅·木水空间设计事务所
大宅全案 · 世茂臻园吴宅·禾研空间设计事务所
城市中央区观云机构云事务所
室内设计案例解析丨观云
商业连锁·城南朴宿·大宽空间设计事务所
云上鼓岭民宿丨中国福州丨致上空间设计事务所
福建首家联合发起,共同管理的设计平台——云事务所
大宅全案·双杭城朗庭徐府·良品空间设计事务所
客服
消息
收藏
下载
最近