查看完整案例


收藏

下载
项目信息
Information
━
项目名称:华宇御璟湖山 Project Name:Huayu Yujing Lake Mountain
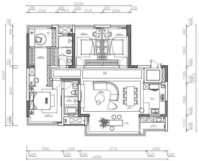
户型/面积:平层/119㎡ Unit type/Covered Area:Pingceng/119㎡
设计风格:美式轻奢 Design Style:American light luxury
设计师:廖俊豪 Designer:Llaojunhao
AMERICAN LIGHT LUXURY 美式轻奢
DESIGN NOTES
设计说明
——
大横厅布局模式,利用开放式设计,集客厅、餐厅、厨房、茶室为一体,增加了家人之间的联系。
以美式风格为基础,提取屋主喜爱的颜色,并运用至整个设计中,金属元素渗透到每一个空间,利用统一的色调,将屋主想要的简约、精致、优雅演绎于表,构建一个现代都市美居。
滑动查看平面/原始图
客厅/Living room
雅奢气质 Ya luxury
灰白的底色,加入金属元素、墨绿为点缀,打造出一个优雅精致的室内空间,凸显了屋主的品味与气质。电视背景墙墙面装饰、茶几、灯具等采用统一设计、色调的金属加大理石材质。石膏线条的墙壁,金属与大理石的光泽,在光线之下,呈现出一副低奢大气的景象。
阳台内置作为茶区,大面积落地窗,光线十足、视野开阔。沏一杯沁人心扉的香茶,浅酌慢品,享受惬意的慢时光。
餐厨空间 / Restaurant kitchen space
西式厨房设计,实用与美观浑然天成。深灰大理石厨房,搭配浅灰上下橱柜,功能齐全的厨房器具,整个厨房空间简洁明亮。大理石的餐桌,搭配墨绿的沙发餐椅,简约而不失优雅大气,金属的吊灯与小吧台,提升空间的精致感。
主卧 /Master bedroom
优雅、时尚
Elegant Fashion
高雅的灰白基调,蓝绿与金点缀,搭配经典美式线框墙,人字形木地板铺贴法,空间层次感与优雅感十足。加上无主灯点光源设计,视觉上更舒缓,宜睡眠。
次卧 / Second bedroom
大面积灰绿,清新、温暖且充满活力,给予卧室独有的安静与舒适。北欧挂画、现代感极强的家具,赋予空间时尚基调。
儿童房/Children’s room
星空主题。星球、火箭、星星以及宇航员模型,众多富有创造力的元素,仿佛让孩子置身于宇宙之中,感受它的神奇与奥妙。
-THE END-
会呼吸的家,圆你一个田园梦
极简 MUJI 风,原木中领略东方禅意
300㎡法式轻奢丨精致华丽雅居
网红美居丨这样设计才够惊艳!
大美新中式,国人骨子里的中式情结
工装设计丨重庆 FFC 超高颜值办公设计
DESIGN OF HONOR
全国住宅装饰装修“百强企业”
全国青年艺术人才(重庆)室内设计奖
SF 设计大赛十大青年设计师
APIDA 亚太区室内设计大奖
艾特国际空间设计大奖
中国住宅设计大奖
中国建筑装饰设计艺术设计大奖
IFI 中国室内设计大奖
M+中国高端室内设计大奖
金瓦年度住宅空间设计大奖
IDS 国际设计先锋
全国第四届美标设计大奖
亚太室内设计大奖
德意杯中国室内设计明星
卡萨帝艺术生活设计创意空间设计大奖
创意中国·第四届全国室内设计大奖
2020「营造家奖」西南赛区年度设计 TOP100
客服
消息
收藏
下载
最近










































