查看完整案例


收藏

下载
现代轻奢+个性style
▲▲▲
锦馨苑/
90
平方/
现代风格
本案位于北碚蔡家嘉瑞大道,
业主是一个单身人式、父母同住。
家之所在 心之所安
识码看全屋效果
似水墨花纹的电视墙,
现代化独特吊顶设计,
色泽搭配和谐自然,
干净又不失美感,
充分诠释了家的温暖。
客厅
简约而又不简单,
彰显着主人的智慧和品味。
这个庄雅别致“home”
静静的等待着它女主人的宠幸。
主卧
坐
于窗前,
一杯咖啡,
总有一抹风景让你驻停。
老人房
随处可见
现代化的艺术的画框,
明亮的灯,营造了一种
既有美的享受又有家的温暖。
爱的小屋/
期待小家伙的到来
儿童房
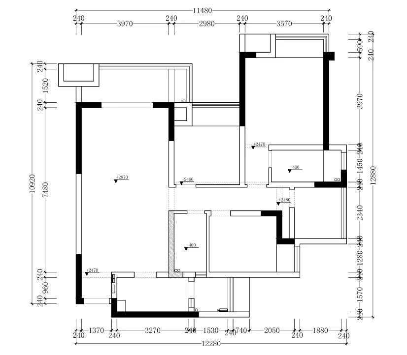
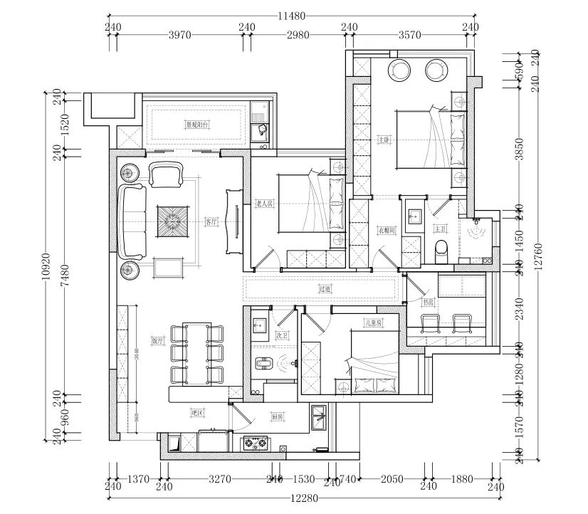
空间结构改造
我们在和客户进行了详细的沟通后,
给该户型进行了大胆的改动,
合理的布局生活动线满足了
家庭每一个成员的需求。
▲原始结构图
▲平面布置图
本案设计
客服
消息
收藏
下载
最近


















