查看完整案例


收藏

下载
“北海虽赊,扶摇可接”
As long as there is a place you want, you can reach it no matter how far away you are.
F L Y
¢
D E S I G N
⊙
#
扶 摇
#
❧
美·因 苛 求
•
01LIVINGROOM& RESTAURANT
客餐厅
流连于婉转的诗意与承合
采之于自然元素的理念表达
起于山水间,俗世内,通达万变
P. 01
P. 02
P. 03
P. 04 裹着山上的夜月,与假日的吻,以风和月光为乐器,演奏一曲慢悠慢悠......
Wrapped in the night moon on the mountain, kissing with the holiday, playing a slow song with wind and moonlight as instruments.
P. 05
P. 06
P. 07
P. 08
•
02MASTER BEDROOM
主卧
酣然于通透自在的豁朗
表现姿态的捕捉慢捻
钟于
翠微沧渊
,烟火人间
P. 09
P. 10
P. 11
P. 12
P. 13
•
03 CHILDREN ROOM 儿童房
秋日朝露,午后甘甜
伴着白榆和望舒,寻找我的园
P. 14
P. 15
•
04UNDERGROUNDSPACE
地下空间
陶醉于曲径通幽的宛转
寻之于情绪诉诸的形式多元
见于漫步时,停留处,欣喜万千
P. 16
P. 17
P. 18
P. 19
P. 20
•
05TOILET
卫生间
P. 21
• 06
HOUSE TYPE&PLANE DESIGN
原始结构&平面设计图
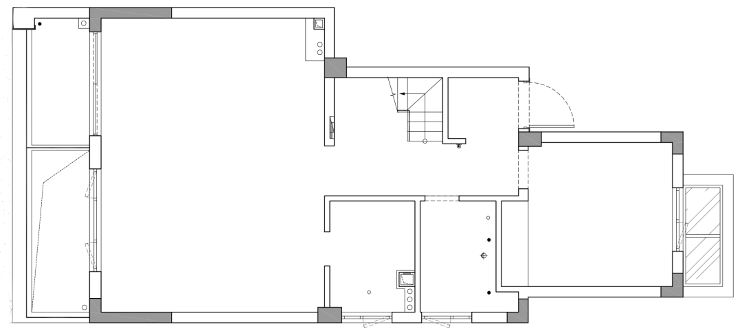
一层原始结构图
二层原始结构图
负一层原始结构图
负二原始结构图
向左划浏览更多
原始结构图
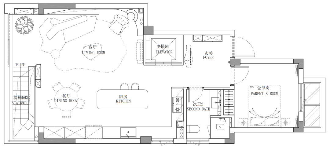
一层平面设计图
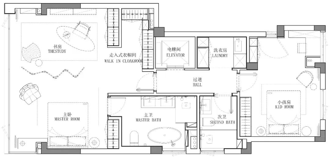
二层平面设计图
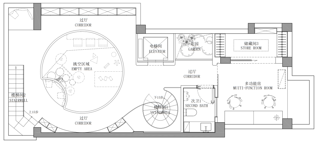
负一层平面设计图
负二平面设计图
向左划浏览更多
平面设计图
设计机构 I Designer Department:菲拉设计
项目地址 I Project address:浙江杭州·闻博花城
项目类型 I Project type:全案
面积 I Square Meters:300㎡
户型 I Door Model:排屋
视觉表现 I Photography:銀合视觉
不要忘记设为置顶哦
地址/杭州市江干区高德置地中心 2 号楼 2 单元 1101 室
#往期推荐#
所属版权及最终解释权归菲拉设计所有
客服
消息
收藏
下载
最近





































