查看完整案例


收藏

下载
F L Y
¢
D E S I G N
⊙
# Hot Summer #
❧
美 · 因 苛 求
热烈而张扬的红与抽象表现主义的反逆者—波普艺术的元素碰撞,是这个家超有态度的不言自明。
Passionate and make public red and abstract expressionism counter - the element of pop art collision, it is this home exceed those who have an attitude is self-evident
在业主保留三房的需求下,避免空间呆板,以空间上的通透及视觉上的挑逗,给予家更多的可能。
Below the demand that reserves three rooms in owner, avoid a space to be rigid, through what go up in the space be connected fully and the vision go up teaser, give the home more possibility.
逆向思维变痛点为亮点,飘窗作为空间家具利用,
临窗而坐沐浴阳光,好不惬意。
Reverse thinking to change the pain point as a bright spot, bay window as space furniture use,
next to the window and sit in the sunshine, very comfortable.
带有穿孔的铁板式半开放厨房,空间的互动与采光得以开发,阳光穿孔挥洒,光便有了形状。
The semi-open kitchen with perforated iron plate enables the interaction and daylighting of the space to be developed. The sunlight is perforated and the light has a shape.
厨房作为波普艺术表达的着重点,
对比强烈的黑白波点,
自动聚焦视觉中心。
The kitchen, as the focal point of pop art expression,
The contrasting black and white dots,
Auto-focus visual center.
高明度、高亮度的红是一针强心剂,
平静中夹杂着炽热,
遍布各个角落。
The kitchen, as the focal point of pop art expression,
The contrasting black and white dots,
It's everywhere.
主卧延续客厅的色彩盘,衡量留给空间呼吸的占比,异变双重曲面拒绝寡淡。
Advocate lie the colour dish of continuance sitting room, measure leaves what the space breathes to account for proportion, different change double curved surface refuses to be vacuous.
设计机构 I Designer Department:菲拉设计
项目地址 I Project address:天麓府
项目类型 I Project type:硬装设计,软装宅配
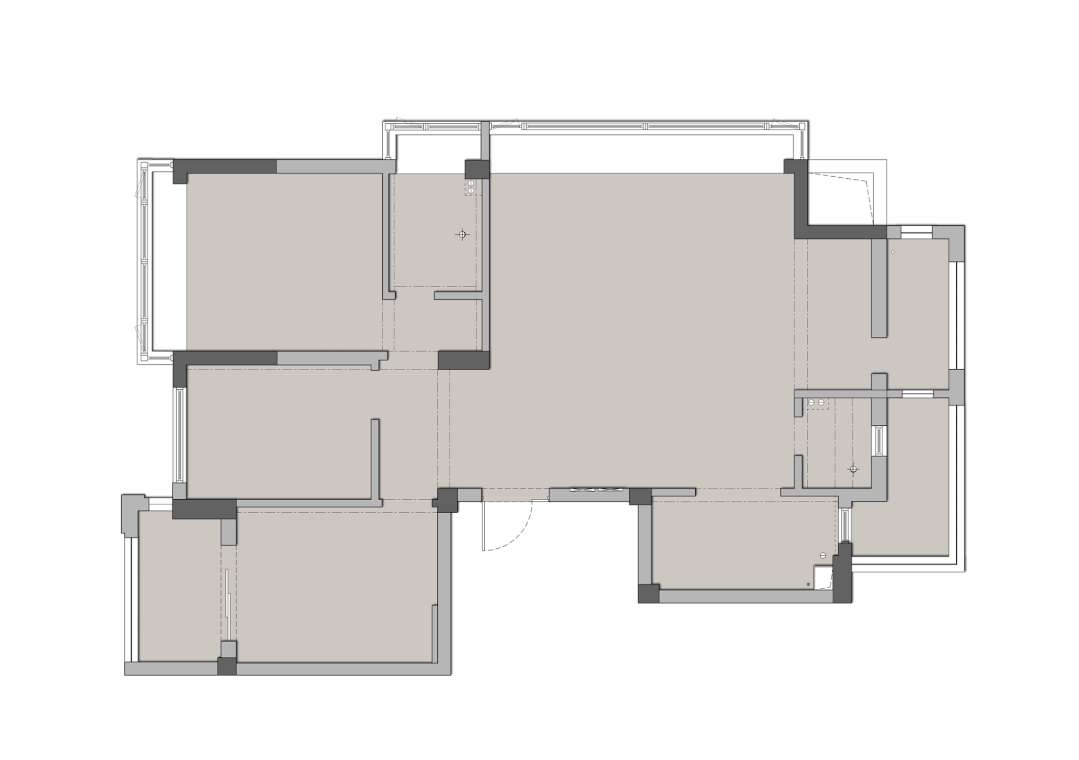
面积 I Square Meters:123㎡
户型 I Door Model:三室两厅
摄影师 I Photography:瀚默视觉-张家宁
不要忘记设为置顶哦
地址/杭州市江干区高德置地中心2号楼2单元1101室
#往期推荐#
所属版权及最终解释权归菲拉设计所有
客服
消息
收藏
下载
最近





























