查看完整案例


收藏

下载
用不私藏
不畏首的才华和真心
去回应、去印证
每个人对于生活的见解
才能听见内心深处对美的要求
With the talent
and sincerity of not hiding or fearing
To respond, to confirm
Everyone's opinion on life
To hear the inner demand for beauty
美 · 因 苛 求
如果要说出一个对设计师最大的恩赐或者最大的认可是什么,我们觉得那一定是有一个无条件的相信、赏识和配合的业主,因为一个好的作品一定离不开业主。就像贝聿铭先生遇到了杰奎琳·肯尼迪才有了肯尼迪图书馆。相识了法国总统密特朗,当时绝大多数人都不同意由一位黄皮肤的人来设计,只有在他慧眼识珠的坚持下才有了举世闻名的卢浮宫玻璃金字塔。
一套处于湖南的异地项目,如果没有业主张总和邓老师全权信任和配合也不会有这么好的呈现,所以在这里感谢邓老师可以给设计师一个展现“拳脚”的机会。异地项目有几个比较顾虑的点,交通不便、地域差异、选材困难、远程沟通起来也会格外困难。业主其实提前一年就预约了我们,期间一直远程沟通,设计师由于以上讲到的问题担心落地困难,一直委婉拒绝,沟通半年后客户专程飞杭州来见设计师,双方洽谈中设计师深刻感受到业主对家里的期望和装修的决心,为了满足一个对家满怀憧憬迫切打造精美住宅的可爱业主,设计师决定尝试尽最大可能确保方案的可行性,开始了一段远程的设计之旅!我们会把施工图、原始户型、最后的落地效果三个方面来看整个设计的实现过程。
一层
| First floor
二层
| Second floor
阁楼
| Attic
改
从机能出发改变形态
原本入户门对着客厅,利用屏风的概念量体分割创造一种穿透延伸却又有阻隔的空间感,丰富了玄关空间的层次,也能营造回到家心境转换的心理仪式感。
将原本三跑楼梯改成了时尚的旋转楼梯,建筑漫游,由上而下串联平面垂直空间,同时调整父母房房门位置,为父母房腾出衣帽间。
调整二层空间配比、置入开放式书房。常住人口为夫妻、父母再加两个小孩,需要有一个公共的休闲区,以及培养小孩兴趣的空间,所以
阁楼设置休闲区、音乐室,满足用户的休闲爱好。
客厅 | Living room
before
after
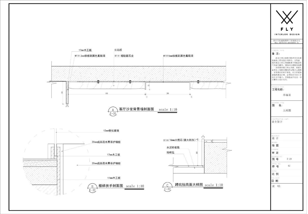
沙发背景的石皮原本打算用天然毛石处
理,
厚度在5-
8
公分,分量较重、施工难度较大
,
最后我们使用一
种
新
型
材料---
超薄石皮来替代厚重毛石,效果虽然没有理想中的完美,整体效果还是算在控制范围内。
异地项目其实会出现很多工艺,材料上的差异。比如入户玄关的格栅和挑空区的弧形木作包边原本打算找整体木作公司工厂生产、现场安装,但当地能提供个性化
定制的厂家太少,最后是由木工师傅现场制作,油漆工现场喷漆来实现。再比如
电视柜和沙发背景的黑边原本想用黑色铁板包边,也是受当地材料的限制、无法找到成熟的供应商,最终用木饰面加喷漆来实现。
在此感谢一下具备匠人精神的木工师傅,包括柜门板、柜体、木格栅、隐形门、电视柜、一层楼梯侧板、二层楼梯在内的木作部分都是由木工师傅现场
制作。
首选是最大限度使用当地材料,若当地材料产品不能满足设计需求可视情况我们来提供渠道解决材料问题。
对设计落地的苛求是设计师的基本素养,一切宗旨都是为了还原设计而服务,
详细的施工图纸也是为了工人师傅能够更好更清晰的明白而存在。
before
在做客厅的旋转楼梯同样也遇到一些问题,旋转楼梯施工难度大、新田没有施工队可以做符合设计意图的弧形楼梯,业主也有过动摇更改设计的念头,在我们的坚持下,客户辗转找到了
找了当
地
建筑院
进
行楼
梯结构的
设计和实施
,让设计想法得以实现。设计师给出踏步大理石是材料小样,客户在本地找不到合适的石材版型,专程到长沙采购。扶手是整体钢化玻璃的设定,当地也找不到可以一体成型的玻璃供应商,采取了分段安装拼接的方式完成其设计。
after
餐厅 |
Restaurant
before
after
书房 | Study
卧室 | Bedroom
儿童房 | Children's room
阁楼
|
Attic
before
after
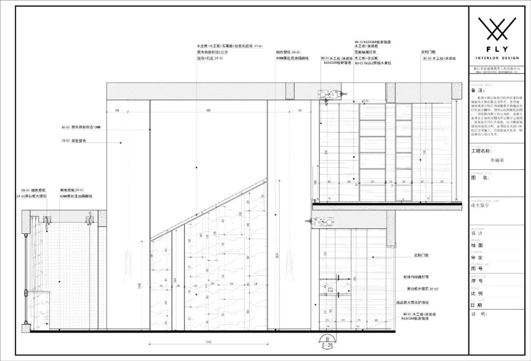
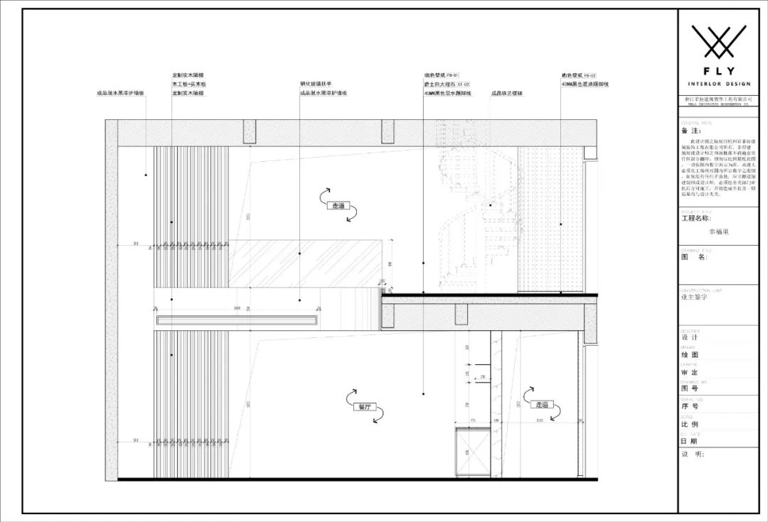
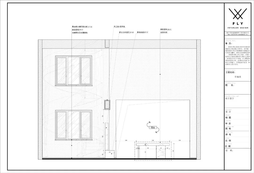
施工
图 | Construction plans
材料说明表
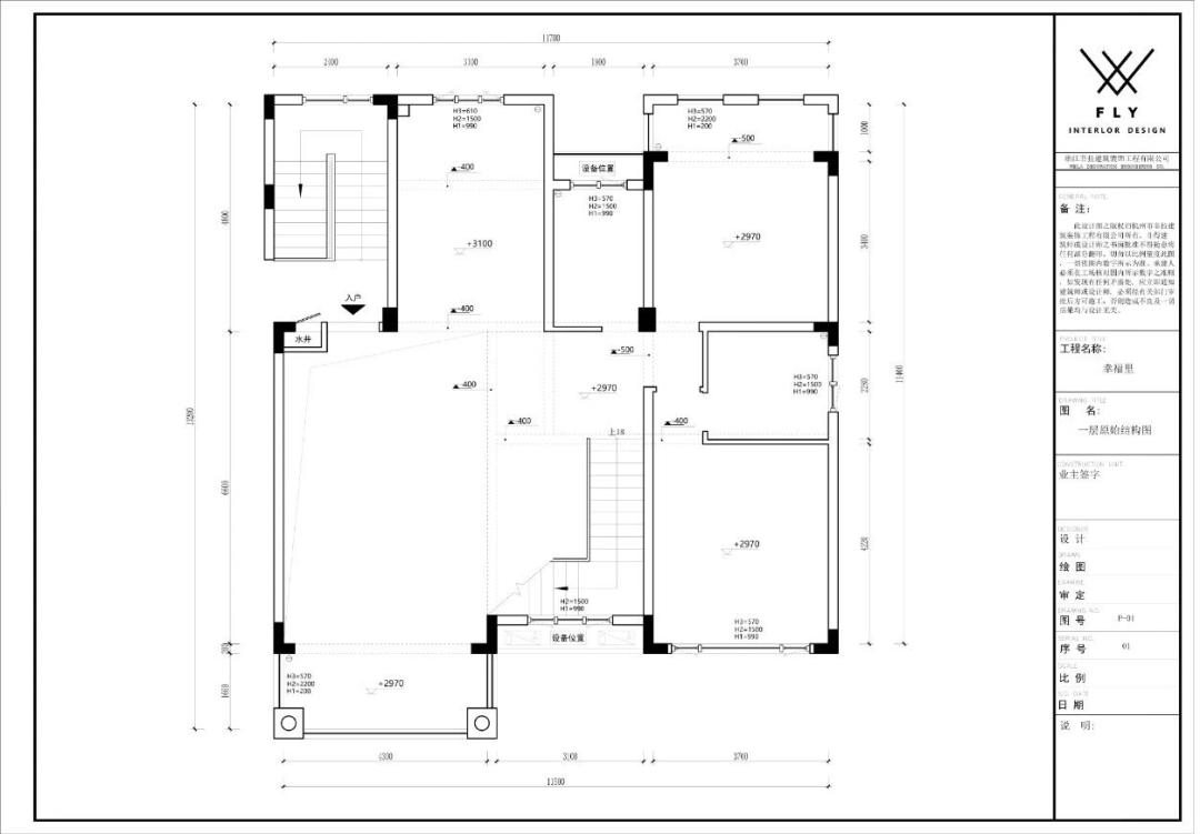
原始结构图
平面
设计图
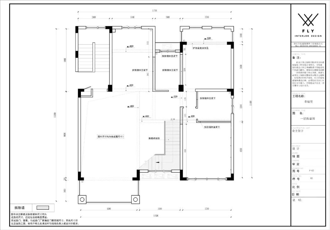
一层拆墙图
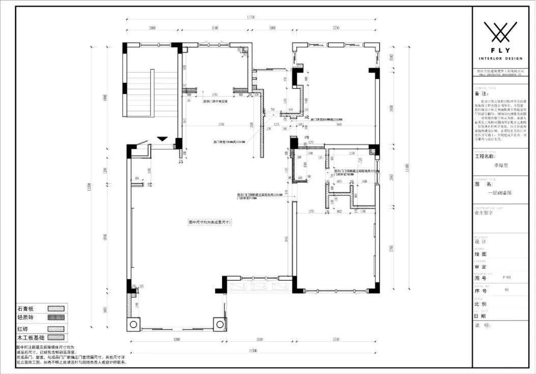
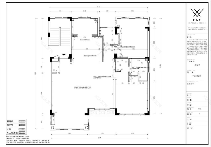
一层砌墙图
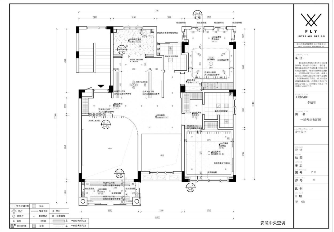
一层天花布置图
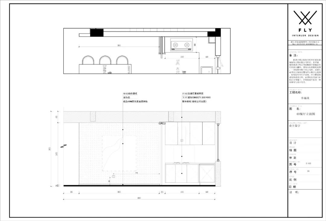
餐厅立面图
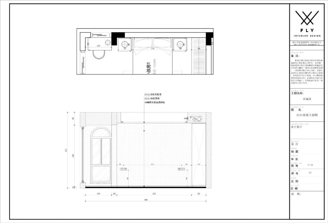
小孩房
立面图
立面图
吊顶大样图
大样图
异地关于软装、选材
关于异地选材软装方面我们一般有三种方式:
一、
二、
设计师在去房子量房、放样等阶段到当地市场帮助选样。当然这种方式也只能是非常少的一部分,毕竟设计师去当地的次数有限。
三、
设计师在淘宝选好样式,链接给到业主然后自己
本项目的家具、饰品、KD板都是业主委托我们在杭州采购的,对效果也可以更好把控。
这些方法在实际操作中都要根据具体情况去选择,但遵循的原则是最大限度还原设计落地。
最后在此再次感谢业主张总和邓老师对菲拉的信任和支持,让我们能够完美的实现一个非常有代表性的异地作品。
设计机构 I Designer Department:菲拉设计
创始人 & 主案设计师 I Founder & Designer: 宋雄飞
项目地址 I Project address:湖南新田· 幸福里
设计时间 | Design time:2017年
项目类型 I Project type:硬装设计,软装宅配
面积 I Square Meters:270+50㎡阁楼
户型 I Door Model:顶跃
创始人/设计总监:
宋雄飞
专业:环境艺术设计
抛弃固有思维 寻求一切可能 让设计回归生活
宋雄飞,专注于室内空间设计,创立了自己的品牌公司“菲拉设计”。带领着一批具有崇高设计梦想的青年团队,一直在设计的矛盾中寻求突破。善于结合生活将空间重组,把空间特色发挥到极致,强调功能与美感平衡,尊重使用者的真实需求。生活方式决定空间形态,为很多业主量身打造了属于他们自己别具一格的家。
主要业绩及获奖情况:
设博会华鼎奖十佳杰出设计青年;
中国空间设计艺术大赛-创新中国-最佳设计作品金奖;
创新中国空间设计艺术大赛十佳杰出设计青年;
亚太空间设计百强设计师 ;
好好住营造家奖;
《第八届大金内装设计大赛》综合设计 公寓组 铜奖;
《第七届大金内装设计大赛》全国综合设计 公寓组 铜奖;
国际空间设计大奖《艾特奖》 入围奖;
中央财经频道CCTV2《交换空间》栏目受邀设计师;
杭州电视台3频道《生活大参考》栏目受邀设计师;
杭州电视台4频道《家居我来帮》栏目受邀设计师;
作品发表《装修情报》《家居视界》《杭州城报》等平面媒体
设计案例:
绿城-中交悦西溪样板房、绿城-兰庭伍重院、绿城-桃花源、绿城-富春和园、绿城-翡翠城、新湖-武林国际、滨江-城市之星、雅戈尔-御西湖、碧桂园杭州样板房、云龙十一景、彩虹城、风雅钱塘、金基晓庐、钱江时代等
有什么问题都可以添加客服菲菲咨询!
地址/杭州市江干区高德置地中心2号楼2单元1101室
#往期推荐#
欢迎各位评论,转发,点好看~~
所属版权及最终解释权归菲拉设计所有
客服
消息
收藏
下载
最近

















































































