查看完整案例


收藏

下载
地址|Address:绿城·郁金香园
面积|Area:199㎡
设计|Design:淄博八零原创设计
施工|Road Work:八零匠心工程
软装|Soft Outfit:花花 HOME 软装
摄影|Photography:繁溪建筑摄影
90 后的屋主夫妻两人是自由创业者,作为设计行业从业者,有极高的审美和品位。这次筑家主角是一家三口,屋主二人和宝宝,在湖畔云顶充满美感的居所里,开始新的生活。
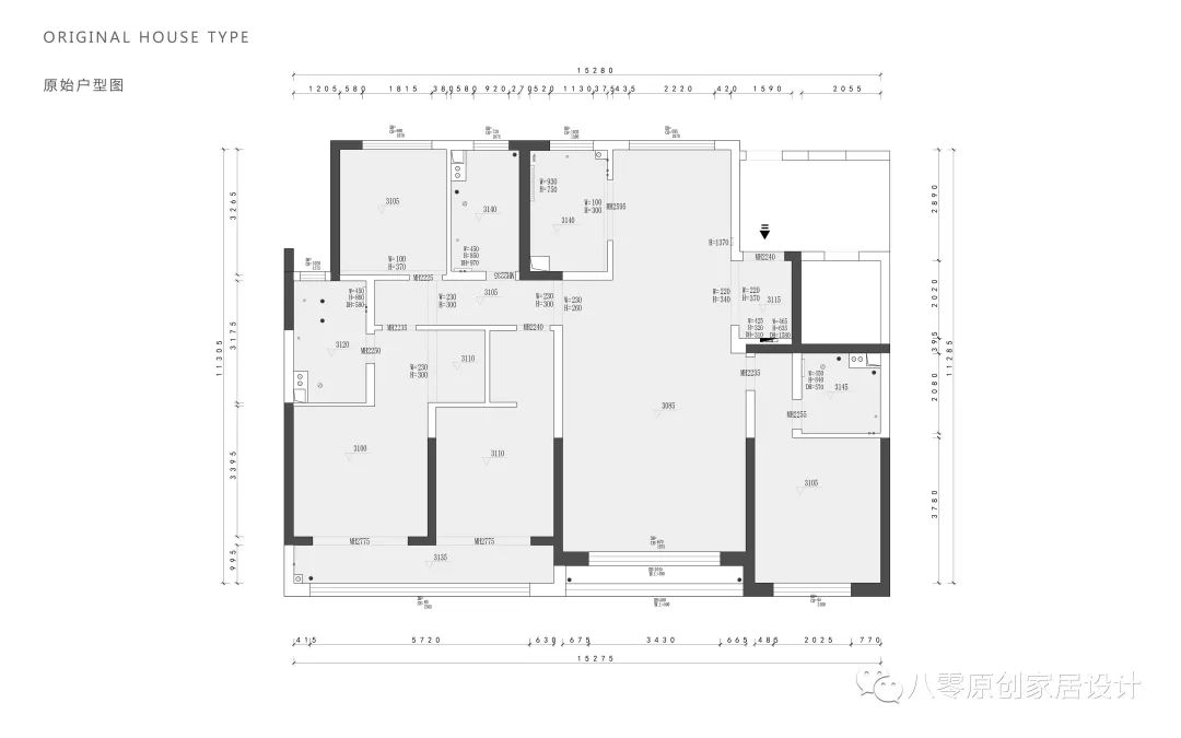
原始户型布局
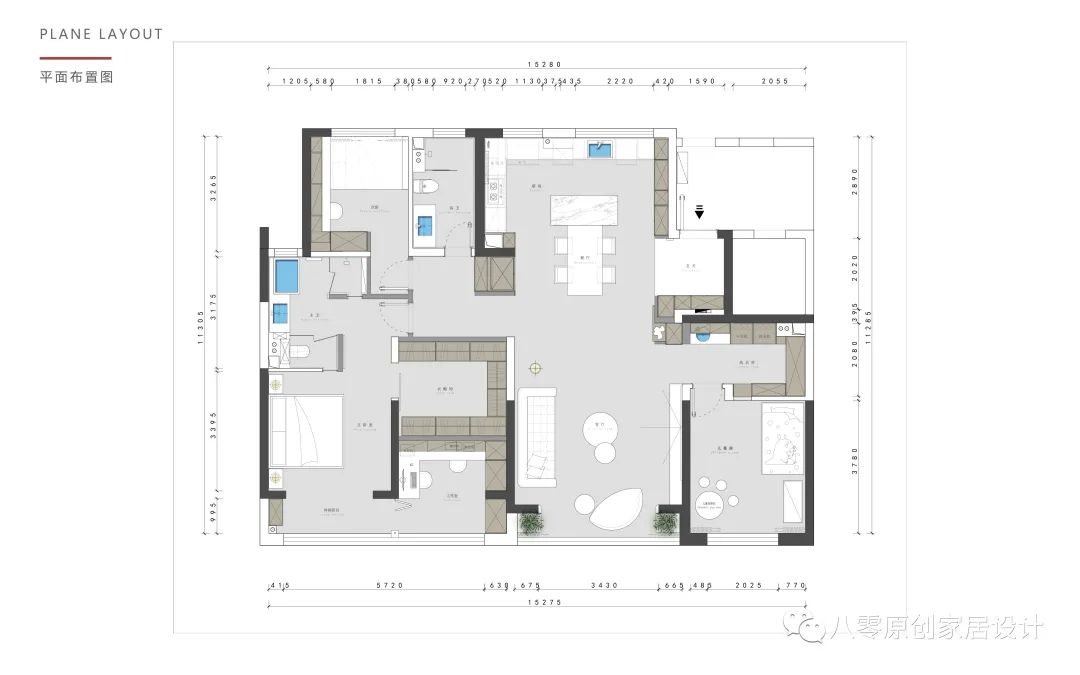
/优化后户型布局
·
状况概述:
本案来自绿城郁金香园 199㎡4 室 2 厅 2 卫的理想之家,设计师结合屋主需求,提出以下方案:
·
改造亮点:
1、下沉式玄关,落尘洁净
2、餐厨一体化,开放共生
3、融合空间,打造专属家政间区域
4、打通主卧次卧,形成套间,规划为衣帽间和工作区
静谧之风拂过,云端绵绵,星光渐起。营造自然之气,反复治愈身心。
南次卧被完美分割,功能性家政间凭空而生;归家后的生活动线流畅,诗意生活应该如此。
环绕式餐厨关系,岛台为餐厨空间增加家人互动与社交属性。
主卧次卧融为套间。在顶楼,一览齐盛湖、海岱楼、大剧院乃至淄博的 CBD;感受不同时节的淄博,感受时间的变化。
顶级度假酒店的舒适感,在家被还原。分离式半通透卫生间,互不干预,空间光线通透。
为孩子用心打造的成长栖居地:让孩子成长在艺术感环绕的家中,在城市的高处眺望。
设计师说:“屋主夫妇都十分开朗,性格完美互补,生活就是一半诗意另一半烟火,柴米油盐的生活里,总要有些温柔的梦想。”非常荣幸,一路走来,我们始终陪伴在你身边,让诗意居住之梦圆满。
B R A N D L I S T 物品清单
全屋智能:欧瑞博
炉灶:日本代购百乐满
烟机:方太
冰箱:卡萨帝
洗衣机烘干机:松下
家具软装:网购
全屋定制:八零原创定制中心
软装:花花 HOME 软装馆
青年创业在淄博电视大赛优秀奖
中国国际室内设计联合会 CIID 第三届金创意奖国际空间设计大赛最具影响力设计机构奖
简一大理石瓷砖 2020G+设计精英大赛平层洋房空间优胜奖
红星美凯龙 2020G+中国高端室内设计大赛山东省赛区 TOP30
2020 红棉中国设计奖年度优秀极简空间设计奖
2020 好好住|营造家奖华北赛区 TOP20
芒果奖 2020 中国人文设计大赛晋级奖
第八届日立 Hi-Design 室内设计大赛公寓组优秀奖
广州设计周中国设计杰出青年(2021-2022)淄博城市榜评审委员单位
40UNDER40 中国(山东)设计杰出青年(2021-2022)启动礼-青年设计最强音
中国家装设计百强品牌(2021-2022)
2021 营造家奖年度设计 TOP500
2021 一兜糖最有温度设计师华东地区 TOP100
2021 百度馨居奖年度最佳大户型设计奖全国 TOP500
芒果奖 2021 晋级奖
2021 红棉中国设计奖年度最美现代空间设计奖
2021 金住奖-中国(淄博)十大居住空间设计师
2022
红棉奖最美现代空间设计先锋人物
客服
消息
收藏
下载
最近




















































