查看完整案例


收藏

下载
INFORMATION
项目面积:143m²
Project area | about 143m²
项目户型:复式
Project model|Duplex
设计风格:现代轻奢
Design style | Modern Style
项目地址:九溪墅
Project address| Jiuxishu
项目设计:壹号国际设计
Design by|TOP-DESIGN
首席设计:熊丽娅
Chief designer| Lily · Xiong
—
家是承载所有温馨时刻的温暖居所,萌发着关于爱的点滴日常。
A home is a warm place to live for all the warm moments. A little everyday about love. —
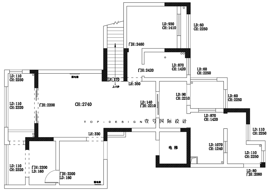
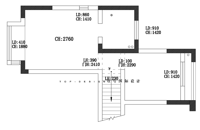
平面设计图 Interiordesign ------------------
右滑查看更多
整体空间感以大方、简洁、温馨、欢快、活泼为主,书房区域简洁大方,过渡到客厅区域开始融入法式轻奢的概念。客厅相对休闲的场景,墙顶面的精致法式小线条、雕花着重打造法式轻奢感,整体再融入法式、意式家具软装。再进入餐厅又是简约大方的墙面,餐厅就餐墙面简约、耐脏、好打理,不同区域负责的内容不一样,真正做到实用与美观并存。
效果图展示
DesignDisplay
------------------
01 客厅
Living Room
1,电视背景对应沙发区域精致的法式线条造型框,预留出投影屏幕位置,右边块面造型延续,颜色加深,突出墙面,增加层次感,和谐又独立,灯光氛围感效果拉满。
2,阳台门套柔美的小弧形过度 L 形,爵士白大理石填满,增加门套宽度的视觉感。
3、沙发边弧形墙面用欢快感的橙色跳脱出来,点睛之笔,搭配墨绿色沙发,互补平衡,阳台蓝色休闲椅在阳光中将柔美的造型烘托出来。
4、书房预留门套也是点睛之笔,特意用金属色框套强调书房空间,与客厅隔而不断。
5、顶面造型顺应弧形墙面,法式石膏盘,配上网红气球灯,唯美、浪漫。
------------------
02 餐厅
Dining Room
1. 酒柜与书房收纳柜皆有橙色点缀,遥相呼应,柜体设计有开有合,更有玻璃柜展示设计。
2. 吧台颜值与储物一体,餐椅颜色延续客厅配色,协调统一。
3. 餐厅背景比例超长,将区域划分,对应楼梯位置设计独立背景,灯光过度。
4. 线条感极强的皮雕装饰墙面增加质感,且又耐脏好打理,蓝色挂画点亮空间。
03 其他区域
Other Area
1、楼梯踏步加宽后,第一踏步突出墙面,与左右两侧墙面衔接延续同色系,形成框套感,弧形收边呼应其他弧形元素,也更考虑防撞效果
2、书房前期作为多功能区,以储物、小孩玩耍区为主,储物分鞋柜、衣柜、展示柜、收纳柜,多功能使用,橙色小小的点缀呼应主题色。
3、卧室考虑未来好打理,以简洁大方为主,灯光都是以下口暗藏设计方式处理,整个卧室颜色温馨、同样橙色开架点缀,放置一些随手可拿的物品,深色皮雕对应顶面过道,将床品区域区分开来。
4、飘窗木饰面框套设计手法,使飘窗更休闲,温润。
设计,是生活的书写;一笔一画,都决定了未来的生活样貌;是自然清新?是东方雅韵?还是复古精致?不同的人,有不同的选择;将居住者的生活态度融入到空间,在留白中寻找空间的秩序,让即使居于钢筋水泥的城市盒子里的人,也能在一方小空间里找到自己的舒适自由。
---设计师·熊丽娅
—————————
CaseReview
荣誉
2022 年度
荣获张家港市“家庭装饰示范”优质装饰工程奖
2021 年度
荣获张家港市“家庭装饰示范”优质装饰工程奖
张家港市装饰装修行业“优秀民营企业”
社会公众满意度调查荣获“市民满意家装企业”
连续 5 年荣获“信得过家庭装饰企业”
全国住宅装饰装修行业“百强企业”
荣获“百姓喜爱装饰品牌”
用责任心做事,用感恩心做人
END
TOP-DESIGN
壹号国际设计
0512-58318756
Add:张家港市国泰新天地 20 楼 2007
客服
消息
收藏
下载
最近

































