查看完整案例


收藏

下载
写在前面:
寻找一个城市的记忆,往往要到曲折蜿蜒的街头巷尾里。因为那里隐藏着充满生活日杂的老屋,月落日升,岁月轮回,贮存了光阴,埋藏了故事。
本期介绍的案例是将一套经历岁月蹉跎的学区房,改造成具有简约欧式风格的温馨家居。业主是位温暖且顾家的人。考虑到小孩上学和父母养老,综合考虑后,他选择了这套居于闹市带庭院的老屋。
本案详情:
地址:邮电新村
面积:117㎡
户型:两室一厅一卫
业主需求:客户夫妻俩上班较忙,非常孝顺,注重孩子的学习。希望家里安静、舒适又温馨,适合父母养老,同时又能留给孩子玩耍和放飞自我的空间。因为房屋太老旧,所以找到我们,希望可以打造出舒适宜居的居家环境。
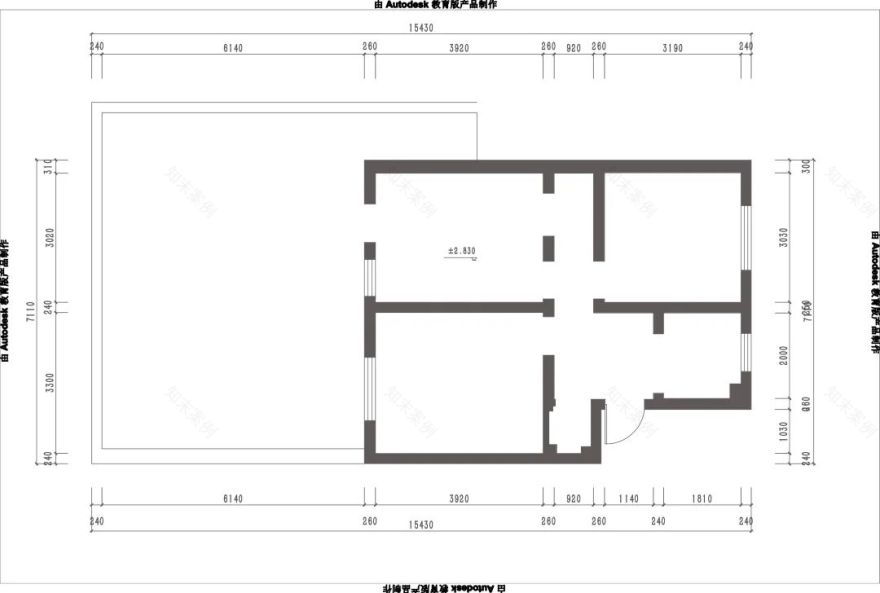
原户型图:
原户型缺点:
1、老房子没有承重,不可随意拆除。
2、墙面老化,采用的是红砖结构,拆除完后砖头脱落,泥沙灰尘多,粉刷难度大。
3、庭院没有排水系统,且外面地势高于内屋,下雨后院落积水,只能靠自然蒸发。
4、楼房是预制板结构,缝隙明显且有许多孔洞,后期会开裂。
5、空间格局不合理,客厅较小且与餐厅融于一起,卫生间没有干湿分区。
现在的户型图:
改造重点:
1、墙面进行打湿、除尘和干燥处理,全屋墙体加固。
2、地面做了防水,墙根上翻50公分,解决一楼返潮,地下墙根吸潮问题。
3、院子排水系统重新改造,使院子更干燥干净。
4、空间结构重组,原有卫生间重新改造布局,使整个房屋的动线更为合理,同时也预留出更多储藏空间。
5、风格确定为简约欧式,通过简约线条、色彩搭配以及灯光处理等营造出欧式韵味。
客厅
把原先的主卧室与客厅进行对调,从院落进门后直接到客厅,给空间增加了一种缓冲感。
整个客厅非常干净利落,灰绿色皮质长沙发、长形黑白茶几与墙面和顶部线条相呼应,让整个空间有了一种延伸感。
装修前后对比
设计师放弃传统欧式里亮黄的灯光,反而采用白色暖白的光,墙面却选用蓝色冷调,冷暖交织,让空间保持足够光源的同时也不失温馨感。
主卧
床头背景采用定制的喜鹊花开富贵的壁画,床头米色皮质软包造型简洁,让整个房间更显宽敞,也增加了淡雅韵味。
侧面的一排双开门白色衣柜保留了足够的储藏空间,各种衣服都有地方安置。因为床头两旁放置了床头柜,所以这里做了开放格的柜子,可以摆放平时喜爱的装饰品、绿植或者照片,增添些生活乐趣。
儿童房
每个小男孩都喜欢各种小玩具和动画人物,设计师将主灯装饰成孩子酷爱的飞机造型。
业主夫妻俩偶尔也会过来小住,所以设计师采用了上下铺的形式,夜晚,父母给孩子讲故事,进入到小孩子天马行空的世界。
餐厅
整个餐厅是方形结构,吊顶优美的圆弧与圆形餐桌交相呼应,缓冲方形线条的硬朗感,方圆之间用一点暖白灯光进行点缀,整个空间变得更丰富,也更有层次。
装修前后对比
卫生间
卫生间空间有限,没有办法把洗漱台和淋浴区归到同一个空间。设计师将原来主卧里的储藏间打通,做了背靠背的空间处理,一面是洗漱台,另一面做成了淋浴房。
庭院
为解决排水问题,设计师把庭院地势抬高,挖一道沟渠,预埋排水管,把水排到外面的窨井里。
装修前后对比
围墙的墙面铺贴了仿石头纹理感的瓷砖,增添了乡间田园气息。一旁的花坛绿意盎然,鱼儿自由逡巡在鹅卵石堆砌的水池中,闲时悠然坐在庭院中品一杯茶,在闹市中取一片闲暇,惬意又满足。
装修前后对比
烟火与艺术相融,本真纯粹
居坐此间
身在城市却离城市很远
煮水烹茶的时刻
尽享岁月美好
往期精彩
客服
消息
收藏
下载
最近






















