查看完整案例


收藏

下载
◤若♪青山不及你眉长,水清不似你目澈,如花看半开,酒饮微醺,若即若离,似远还近。
本案地址位于豪门金地,业主是一家三口一块生活。他们注重生活品质,想要一个休闲、雅致、轻松的生活空间。设计师将传统艺术与现代美学相融合,把空间中的每一点都改造成典雅、舒适、大气的家,空间里的每一处改造都是最适合他们的。
家,是有温度的,家是最动人的,家人的陪伴,才是生活的本质。设计师在追求家居艺术的同时,也考虑了设计本身带来的实用性,在典雅、舒适的氛围当中,给一家人留下悠闲、轻松的相处空间。
项目风格 / 新中式
项目地址 / 豪门金地
设 计 师 / 高泉
项目坪数 / 220m²
█
设计图
负一楼原始结构图
一楼原始结构图
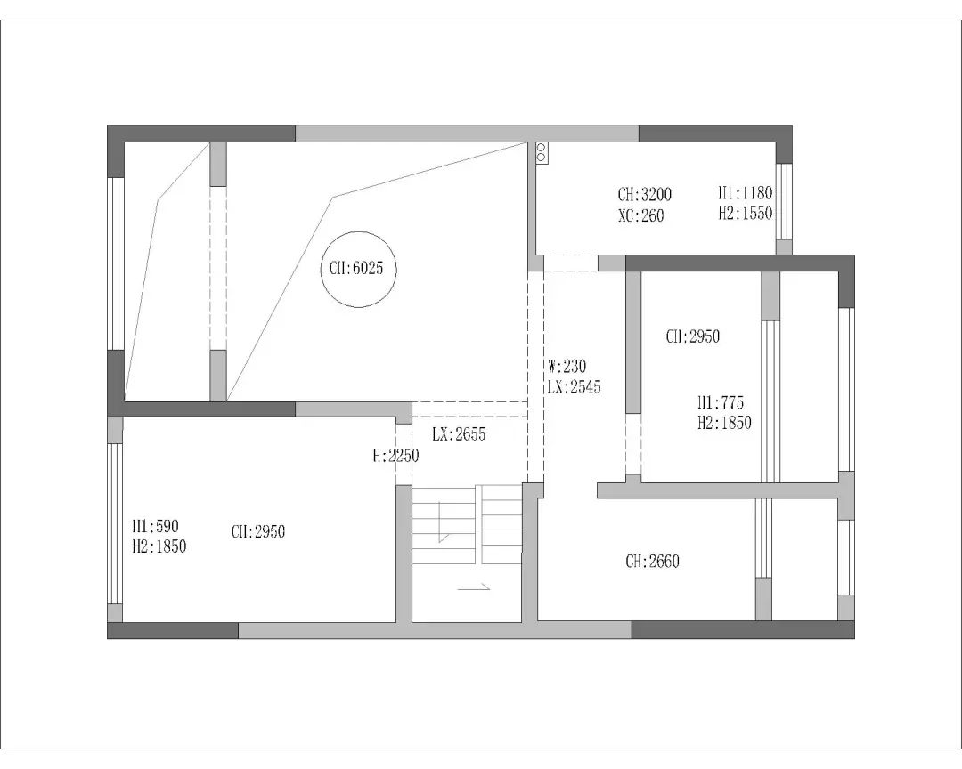
二楼原始结构图
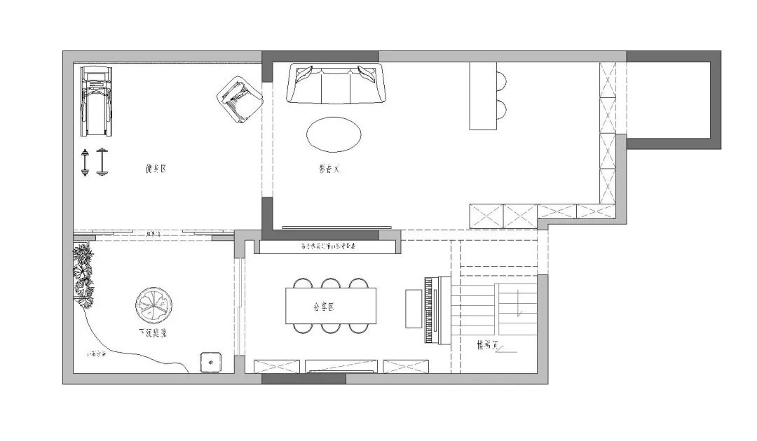
负一楼平面布置图
一楼平面布置图
二楼平面布置图
█
客餐厅|灯生阳燧火
整个空间虽然形成了一个整体,但在设计师看来一步一景是新中式风格特有的表现形式,走一步就是不一样的景色。整个空间的神韵是清雅的,充满诗意的东方韵味。新中式的韵味,可以让回家的人,在身心上瞬间慢下来。在这个空间里,可以感受到安详、平静。以简洁、清雅的气息,让空间中的神韵富含情趣。
“清雅神韵,写意东方”,电视背景墙上每一个摆件所蕴含的,是一句句有着诗意情调的诗句。他们将一楼与二楼联系了起来,形成了空间上的交互。从硬装到软装、饰品,每一个物件都经过巧妙的构思,蕴含着新中式特有的清雅、古典之美。
开放式餐厅的设计延续着整体的风格,无论是颜色还是材质,都有着独特的韵味,是一处休闲舒适的用餐空间。
█ 卧室 | 尘散鲤鱼风
卧室空间流动着清雅的脉络,让这里多了几分温润感。将木质的温暖完美灌入到卧室空间中,业主在这里可以得到治愈,调节一天疲惫的身心。在这里可以小憩或者看书,也可以享受着自己难得的自由空间。
东方的意蕴与现代的色彩莫名的融洽,生活就是要随性而不将就,要有一个属于自己的精神领域,在时光的舞姿中绚丽多彩的生活。
█ 负一楼 | 迟日江山丽,春风花草香
“迟日江山丽,春风花草香”,茶室给人一种清新宁静的感觉,小到一个茶壶,都能体现出业主对平静、惬意生活的喜爱。
我们要以恰当的生活方式为主,将家的形式进行组合,将东方美学的内核进行提炼,融入到我们生活当中。在一花一木,山山水水中体现新中式的清韵,时时刻刻可以感受到悠然的生活。
装饰简洁清雅的书房,延伸着业主感性的触角。这个灵性的空间,蕴含精致,洒脱。
负一楼的空间分布是业主一家人最喜欢的地方,有书房、影音室、酒吧岛台和健身房,功能齐全。家里的每一个成员都可以在这里做属于自己的事,享受家带给自己的舒适。
自由是一种生活的态度,它源于对生活结晶的归纳和品位,在于对生活的不断探索。
█ 二楼 | 白石读书房,世有斗南人杰
二楼开放式的书房,这个空间饱满、通透。经过设计师精细地安排,利用这里每一寸的空间,在没有占据太多居住空间的前提下,使整个书房更加的精致、实用。
END
客服
消息
收藏
下载
最近




































