查看完整案例


收藏

下载
热爱生活之人
会对这样的生活充满向往
鸟雀齐鸣,花木繁盛,诗意栖居
今日为诸位带来的户型鉴赏
便是
【望江台】
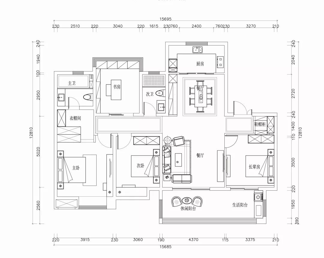
100㎡ 三室两厅
项目面积:100㎡
设计风格:现代简约
关键词:动静分离、采光良好
本案设计中,设计师将部分门的位置进行了移动;拉近餐厅和厨房距离,方便使用,符合日常生活习惯;建立独立收纳空间且整体配色干净清新,收纳功能强大。
☟花容渐现
☟
客厅
金属喷黑加裸灯泡的设计相对时尚,沙发质感温厚,瓷砖本身的铺设已将空间规划出来,客餐厅通透,采光和通风较好,整体设计思路偏向素雅、精细,讲求收纳空间的利用。
餐厅
为了满足主人需求,更是将一整面墙面做成收纳空间,增加空间利用率。
放大收纳柜功能,增强收纳功能,三分露,七分藏,杜绝卫生死角。
客厅
125㎡ 四室两厅
项目面积:125㎡
设计风格:北欧
关键词:前卫、撞色
本案设计中,设计师保留了125㎡露台的功能性,采用简约的黑框推拉门,视觉通透。整个案例中配色大胆,矢车菊蓝和明黄的搭配,经典而不旧,黄作为跳色让空间更加灵动。
☟花容渐现
☟
不用以往的电视柜,而是将柜体链接起来,黄色部分的拼接处是可活动的,本案没有使用贵妃榻的设计,而是采用单椅设计,随时可进行调整,方便实用。
家居装修不是一时的走秀,而是长时间的居住,所以在设计的过程中,更多的要注意实用和耐用,选择家居材质的过程中一定会面临选择困难,山山建议您在挑选的时候,看颜值更加应该看品质,对于材质和装修的细节方面,更加应当多沟通,多提问,多了解。
132㎡ 四室两厅
项目面积:132㎡
设计风格:现代
关键词:材质、灯光
相比于之前两个案例,本案更注重家居的材质,不论是橙色的皮质单人沙发,还是棉质榻坐,都很讲究材质与空间的关系,在什么样的空间便有什么样的感受,对于居家来说非常重要,而对于面积较大的家庭来说,按照功能区域进行定制划分,更加能够完善居住需求。
☟花容渐现
☟
灯光在生活中的作用非比寻常,对于灯光的布置和利用,可以根据家庭活动的不同进行调节,本案中灯光设计较多,对动线灯光、氛围灯光、辅助灯光的运用较好,试想在关闭主灯后,一天的正常活动结束,你只想躺在家中看看电视,灯火温柔,蜷在沙发上渐渐进入梦乡。
书房是释放心情的空盒子,所有的烦闷都可以渐渐消散,书房不光要有充足的光线、藏书空间,还要有舒适的阅读位置,充足的视野,用来做到真正的灵魂放空。
143㎡ 四室两厅
项目面积:143㎡
设计风格:新中式&现代简约
关键词:改造、便捷
本案对空间进行了改造,改造后有独立的玄关区,符合家庭私密性和出入的收纳需要,卫生整洁;餐厅和厨房靠近,使用起来很方便,符合日常生活习惯;有独立的收纳空间,方便杂物和换季物品的收纳。
☟ 新中式
☟
《千里江山图》的经典配色,从水墨粉本,红色赭石铺底,
头一遍石绿,到绿色的无极变化,
最后添上青色,一层一层铺展开来。本案的颜色搭配灵感就取自于此,装饰画、窗帘搭配、中式沙发都进行了色彩沿用。
☟ 现代简约
☟
与新中式的古典雅致不同,现代简约更加讲究高级感,灰度适中且要明暗分明,线条感需要清晰的同时不能太过冰冷,失去家的属性,设计师在绒面、棉麻制、纯棉等材质中做了综合,寻求适当的冷静和温柔。
儿童房的风格与客厅截然不同,加入了雪山、麋鹿、小熊等充满童心可爱的元素,铺设一个柔软防滑的地垫,完整一个美好的梦。
- END -
客服
消息
收藏
下载
最近



























