查看完整案例


收藏

下载
风 向 爱 情 海
本案营造出一种地中海的氛围,其自然气息扑面而来,更有一种安逸、舒适的海洋气息。
客 厅
本案
座
落于南京秦淮河畔——水月秦淮,建筑面积200平米。
餐 厅
本案营造
出一种地中
海的氛围,其自然气息扑面而来,更有一种安逸、舒适的海洋气息
。
客 房
书 房
每当我们拂去外界的浮尘,回到家里安逸地躺在沙发上,这种惬意就会油然而生,令我们乐此不疲。
楼 梯
主 卧 室
一个家,一种寄托,也许在不经意间我们已然感受到家的美好!
卫 生 间
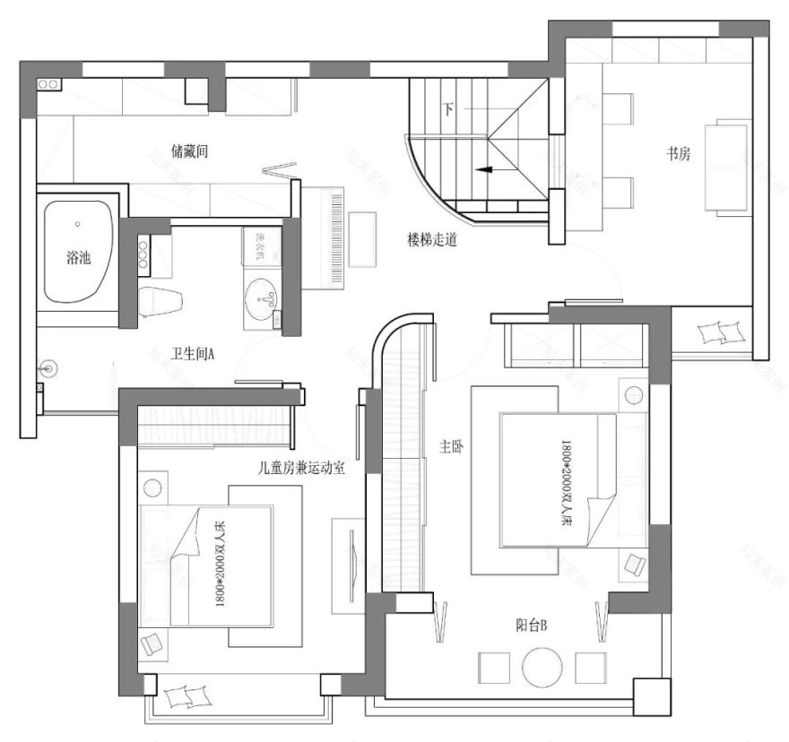
户 型 图
一楼
二楼
空间性质
|
跃层
项目名称
|
风向爱情海
项目地点
|
中国.南京.水月秦淮
设计公司
|
品承设计
竣工时间
|
2013年02月
建筑面积
|
200㎡
主要材料
|
仿古砖、马赛克、彩色乳胶漆
品承设计
地址:南京市建邺区所街116号乐基广场2号楼814室
客服
消息
收藏
下载
最近
























