查看完整案例


收藏

下载
杭州绿城生活馆的设计路径主要是解读绿城的品牌文化和杭州的城市文化,并将其文化元素融汇于设计中,使生活馆与杭州的城市韵味同频呼应,进一步强化绿城品牌在当地的认同感。让品牌成为人们对于“理想生活方式”的期待的象征。
基于这一目标,解答城市生活馆的价值定义是什么?生活馆需要通过设计表达什么主题,以匹配杭州和绿城共识语境?成为了设计过程中的重点问题。
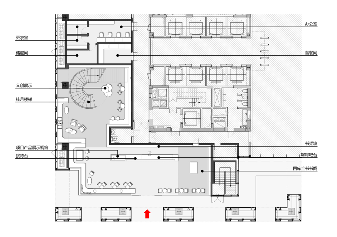
通过对杭州人文历史和对绿城企业理念的捕捉和过滤,MDO将杭州和绿城的共性其统一为婉约的“理想主义”价值命题,将生活馆划分为三个主要模块:书房、品牌馆和产品馆,这三个模块分别成为诠释理想主义的物理载体。
MDO在入口的原建筑幕墙内嵌入了一个新的体块,以最少的改造突出品牌馆的标识性。阳光下西湖的蓝色和绿城的绿色混合在一起呈现湖绿色。在不同的自然光和人造光下,将一抹水波的光影映射到空间中,呈现出安澜平和的景象,也保持了强烈的视觉识别。一楼以人文理想的绿城书房为主题,打造一个商业运营的咖啡空间,将绿城以人为本的服务和生活方式带给周边的社区以及前来参观的人们。
MDO提取书法中田字格的元素运用于天花造型,增添细节的同时使整体的空间呈现出书房的静谧感;吊挂的艺术装置用书法中灵动却充满力量的笔触感来表达杭州“云桥”的文化符号。
吧台的设计使用石雕的形式将杭州市市花桂花元素隐藏在四季花丛中,当你慢慢靠近书架,你会发现在书架的榫卯构件上,也能寻到小小的桂花。镀湖绿色的金属板将白天的阳光与夜晚氛围灯光染上一层淡淡的湖绿色折射到室内,展现出素雅安然的氛围。
桥的功能在于沟通连接河两岸,在此空间中楼梯就是“桥”。设计提取拱桥的弧形元素运用于造型中,通过悬浮式处理手法使楼梯呈现出优雅轻巧之态,宛若浣纱飘落。屏幕装置则呈现出西湖边桂影洒下落花满地的意向,当人们在楼梯上行走,仿佛漫步于云桥之上。
进而,MDO再利用气味、器皿、纺物、艺术品… 让置身于空间中的人们更深切的感受绿城的魅力。所有的家具均结合了绿城的品牌图腾和色彩,由MDO x TIWU联合设计强调舒适;艺术品则展示着传统铜板蚀刻工艺在现代美学中的转换,完美呈现了月球表面的凹凸造型,犹如一轮明月悬挂于空间中,呼应了品牌的桂月标志,为绿城生活馆打造了专属的视觉符号。
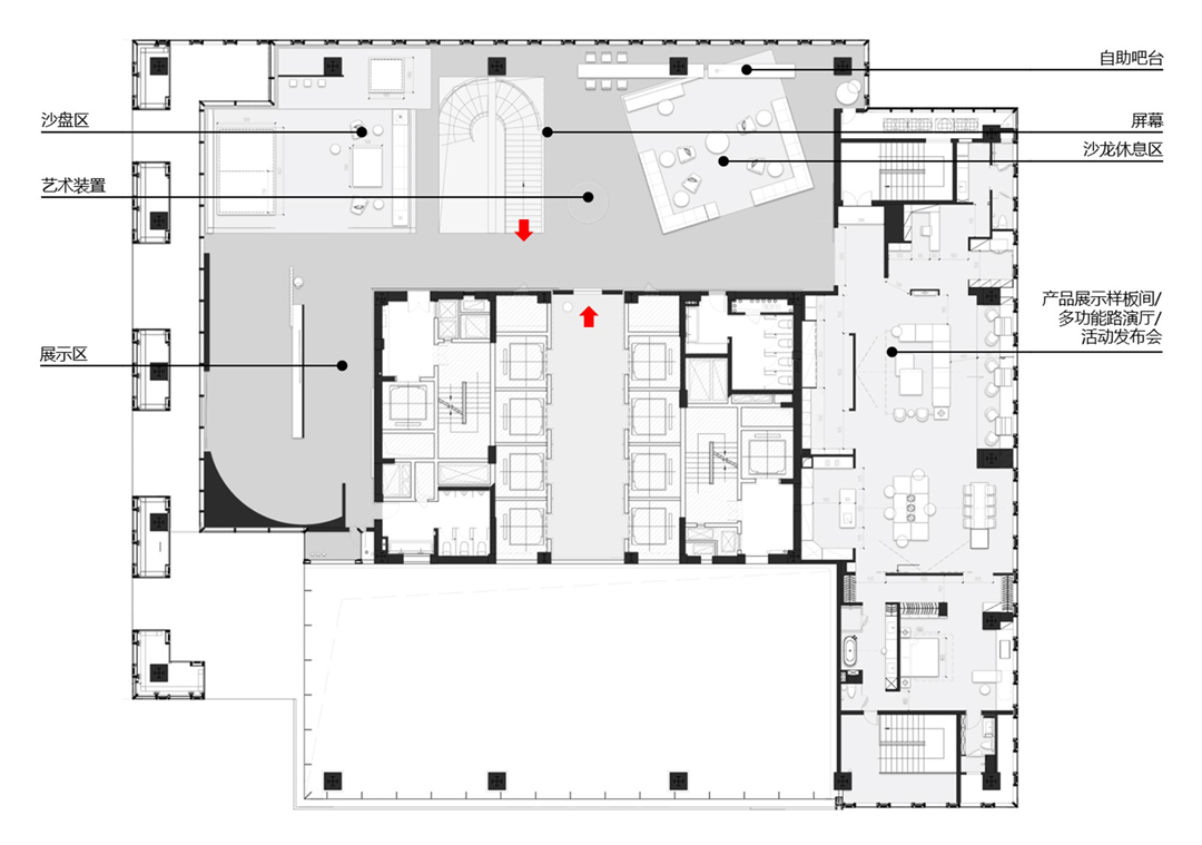
品牌空间以绿城精神图腾“桂月清影”为创意展示着绿城的理念和文化。
屏幕装置中缓慢活动的水波影像,通过镜面天花和高光地面的反射延申营造出波光粼粼的湖面氛围感,与旁边暖色材质围合的“亭子”相呼应,凸显出廊桥水榭,亭台楼阁的设计主题。花艺设计灵感来自春日柳丝的意象,柳丝优雅浪漫,轻柔飘逸,将柳丝被春风吹拂卷曲飘荡的自然形态定格在空间中,取一抹绿意和生机,赋予空间新的生命活力。
产品馆则模拟样板间的空间,以作为绿城经典产品和新品的展示场所。
MDO的设计旨在提供完全的灵活性,以创建功能性与美观性兼具的展览场景。设计采用大理石、黄铜、金属、艺术玻璃等多种对比鲜明材料和醒目的色彩组合来强化多样性和流动性的概念,为绿城的系列产品创造完美的背景:触感和坚实、有机和人造。
壁面展示了对系统材料的细微更新,使用大理石、黄铜等奢华材料,以背切弯折工艺增强更多线性细节,体现着绿城对工艺的研究热情。可供选择可拆分可组合,灵活性极高的组合沙发,可用于多种场景,满足不同使用功能,其架构由橡木制作,座面由舒适优雅的皮革组成。营造了一种舒适、光线充足且高度灵活的平静氛围。
局部区域,则是利用天花墙面统一的古铜金属材质来定义不同的产品空间。每处产品空间的设计都以平静为锚点,通过简单的形状和中性色彩散发出和谐与宁静,宣告着这些产品可以轻松融入从现代到复古的任何生活环境。
就此,绿城杭州馆的“理想主义”被完整地呈现在人们眼前。
滑动查看平面图
项目名称 |
绿城杭州生活馆
项目面积 |
1200㎡
项目地址 |
杭州市拱墅区湖墅南路66-1号滨绿大厦B座
设计单位 |
MDO木君建筑设计
设计总监 |
Justin Bridgland、徐伩君
主创设计 |
易
丹青、董萌萌、赵建稳
参与设计 |
曾思娘、高达、黄硕、高国强、张福静、焦惠洁、肖雯、鞠瑶、贺斌
装置合作 |
二十一花艺工作室
家具合作 |
赵云产品设计工作室
灯光设计 |
三色石设计院
完成时间 |
2022年8月
空间摄影 |
夏侯全生
MDO木君建筑设计由徐伩君女士和Justin Bridgland先生共同创立于2014年,是一家立足于中国上海,在英国伦敦设有分公司的多元化设计公司。
MDO(上海)主要提供国际化的地产与规划、建筑设计、城市更新、商业设计、产品与展陈设计以及视觉设计等六大设计服务,MDO (UK) 专于设计和开发欧洲的高端可持续住宅项目。
徐伩君女士是英国ARB注册建筑师和室内设计师,桥义先生是英国皇家建筑协会RIBA 认证建筑师也是音乐家。不同的文化背景与领域跨界,让MDO 对设计中的“转换”概念十分重视,这使我们的作品能够自然的融入多元的文化底蕴。同时,MDO 致力于探索空间与尺度、比例、细节、材料、光影及色彩的互动关系,为空间营造一段特别的旅程。
客服
消息
收藏
下载
最近


















































