查看完整案例


收藏

下载
济南市,简称“济”,别称“泉城”,素有“四面荷花三面柳,一城山色半城湖”的美誉。是国家历史文化名城、首批中国优秀旅游城市,史前文化龙山文化的发祥地之一。
01. 门厅
The lobby
门厅起始素色的仿水磨石砖地面和金属镂空墙面结合在一起形成了干净简约的室内空间。在视觉与时空的旅行之间,在理性解析之外,解读空间的“感性之美”。
02. 沙盘区 Sand tabledistrict
沙盘区拱形吊顶给人静谧的幽深感,如一叶扁舟卷画帘,把臂同游。上方的艺术吊灯行云流水般清透,有机形状和自然形态相互作用,畅游无束。
柱子与空间风格巧妙的有机结合,形成屏墙。点、线、面的交错,在排列后阐述出的空间自然形态,曲折转角之外,创意出 X 与 Y 轴的物理总和。衍生出立体形态和空间形态的基础,是形成美诸法则的要素与形式。
03.洽谈区 Negotiate area
洽谈区大面积的波纹玻璃竹林装饰画透出一片不易察觉的虚灵妙境,自然散透高雅,与空间的摆设相呼应,让人醉心停留。干净纯粹的东方意象,把浑雄与超逸刚柔并济成洒脱之态,柔和的色调,细致的光影,充分感受到光线在空间流动,对比、调和、匀称、比例、节奏、韵律等多样性陈列的基石。
与济南称紧密结合,使空间时尚又不缺乏人文底蕴。干草标本与鲜活绿植的穿插运用,山石水墨做点缀,感受齐鲁大地生机盎然,潇洒豪迈而内敛含蓄的人文气质。
编织艺术,寻宋美学,从喧嚣都市中抽离,回归都会桃源,为尘器凡世开启一片心灵休憩之净。蜿蜒的弧度打开人文气息的艺术之境。以千里江山图为原型,采用现代的手法来表现。
用一种五感交融的空间美学,在我们眼中,一个空间的灵魂,与物质无关,与精神有关。追求内心宁静与升华,纹理中隐隐透露出人文的关怀备至,周游其中,邂逅的不经意掀起艺术气息的漪澜。
效果图-Impression Drawing-
图纸呈现 -Drawings Show -
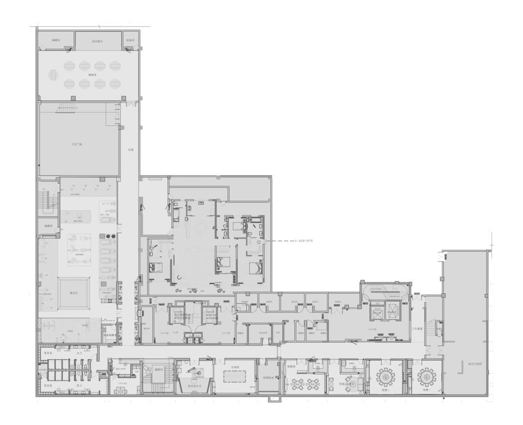
地下会所平面图
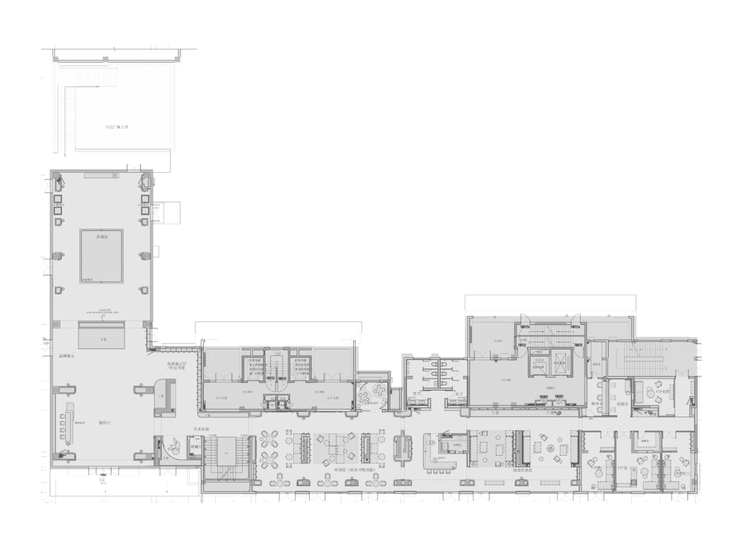
一层平面图
项目名称 | 中信泰富济南九庐项目售楼处
开 发 商 | 济南历信置业有限公司
业主团队| 周毅明、穆羽、陈颖、张冬冬
设计机构| 上海飞视设计
设计总监| 张力
硬装设计| 陈猛、朱利华、吴飞、李甜、房子杰、王翰
机电团队| 韦蓉蓉、孙乾、刘成基
软装设计| 上海华帛室内设计有限公司
灯光设计| 上海筑光照明设计有限公司
项目摄影| 一千度视觉
项目地点| 济南-历下区姚家路与华阳路交叉口
面积| 2000㎡
主要材料| 雅士灰大理石、墨玉黑大理石、45 度灰大理石、人造石、木饰面、古铜拉丝不锈钢、做旧古铜不锈钢饰面等
创始人&设计总监/ 张力
上海飞视装饰设计工程有限公司,于 2006 年在上海创立。
一百多位来自全国各地的创意人才汇集于此,构成我们年轻激情的团队。多元背景为公司带来丰富的创造力、艺术性与学术力量。
自创立以来,飞视设计一直专注于地产服务,积极发展高端私宅业务。我们秉持着严谨的专业态度、真正的服务意识、项目的掌控力度、对细节的严格要求,还有规范的设计管控流程,在全国与多家房地产企业合作并圆满完成设计项目。
客服
消息
收藏
下载
最近
































