查看完整案例


收藏

下载
01.INTRODUCE
项目丨PROJECT
盛璟东方营销中心
SHENGJINGDONGFANG SALES CENTER 丨 2020.01
地址丨ADDRESS
重庆江津区
类型丨TYPE
销售中心丨962㎡
团队丨TEAM
创意总监丨袁鹏鹏
深化团队丨涂茳、
谢标、苑沈彭、白涛
02.PROJECT
设计概念
日出东方隈,似从地底来。
历天又入海,六龙所舍安在哉。
本次的设计将传统的中国文化与现代设计相结合,通过色彩和材质的搭配,意图营造出一种富有东方的文化底蕴和品位的空间环境。
东方是太阳升起的方向
亦是文化底蕴深沉的典藏
书籍所承载的是文化和品位的深刻含义
外立面设计效果
室内设计效果
中国的文化是东方世界中
一枚瑰丽的珠宝
它丰润和柔和
缤纷而绚烂
在历史的长河之中
它永远是最引人注意的那一颗
拥 抱 / 热 情 / 欢 迎
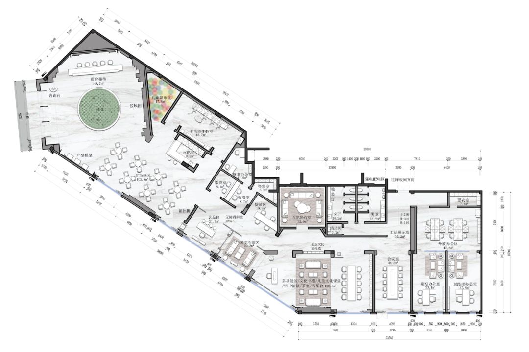
前台接待区
洽谈区
水吧台
多功能体验室
过道
缴费区
茗品区
深度洽谈区
多功能区-古筝台
文化书苑
多功能区-茶室
VIP签约室
卫生间
会议室
开发办公区
办公室
平面图丨LAYOUT
袁鹏鹏空间艺术设计机构
原创
04.ABOUT US
介绍丨INTRODUCE
袁鹏鹏空间艺术设计顾问机构
袁鹏鹏空间艺术设计顾问机构,一家致力于室内室间设计咨询服务的专业机构。
我们擅长:高端地产销售中心、星级酒店,极致私人会所及样板间软硬装设计,住宅产品户型优化,精装修标准研发以及集团总部等领域空间设计咨询服务。
一直以来,因专注心中梦想,我们获奖无数。
我们坚持:“因专注,而不同”,积极用独特视角来展示和提高项目的品牌价值。
我们努力:用激情、坚韧、创意和专业,将钢筋水泥搭建的冰冷空间,转变为未来即将呈现的温馨、舒适而又实用的商业及生活场景。
我们关注:客户的梦想并将助力实现。同时将客户的空间体验做到极致。
我们期待:与智慧的业主做有逻辑的空间设计,并与之共舞。
嘉尚工程建设有限公司
嘉尚工程建设有限公司是集设计与工程施工服务、材料配送、售后服务于一体,致力于为消费者提供高品质的设计、施工服务的专业化装饰企业。
我们认为设计是空间的灵魂,设计可以使空间升华,且能为空间注入生命及语言。公司发展至今,先后荣获历届中国室内设计大奖赛、中国室内设计双年展、亚太室内设计双年大奖赛、海峡两岸四地室内设计大奖赛等国内外各项权威重大设计赛事大奖,从而成为行业设计的风向标。
多年来,公司形成了一种“我们一起努力,共创嘉尚品牌”的企业文化,这种深厚的团队精神力量一直在推动着嘉尚装饰大步阔进。
嘉尚装饰凭借“精雕细琢,袁氏本色”的严谨工作理念成功地塑造了高、精、尖品质的别墅、豪宅、商业空间的专业铸造者形象,并以高素质的施工质量及完善的售后服务享誉业界。
麦田软装顾问
麦田软装顾问以先进的品牌营销理念,及尖端的设计精英队伍,致力于为每一位尊贵客户打造艺术化,经典化的生活环境;创造个性化家居环境、引领生活方式、提升生活品质为使命,是麦田软装顾问人不懈的追求。
主要针对酒店、会所、别墅、住宅、老房子以及商业空间提供整体软装配饰设计方案及家具、灯具、饰品类的定制和采购服务。
通过软装体现个性化;我们用「色彩、空间、美学」帮您打造一个温暖有态度的家。
一盏灯, 一瓷器,细至每个形体、图案、色彩、材质,它们都通过自身的美传达出拥有者对生活的追求,取悦你的心,神,视野。
我们相信,爱家的人都是生活艺术家。
地址丨ADDRESS
东莞市莞城区工农路88号工农八号创意园三号楼
公司:0769-26882451
客服
消息
收藏
下载
最近















































