查看完整案例


收藏

下载
MINGWANG DECORATION
玄武区花园路 70 号
设计风格:现代简约
装修面积:99㎡
设计总监:师菊慧
施工团队:铭望装饰
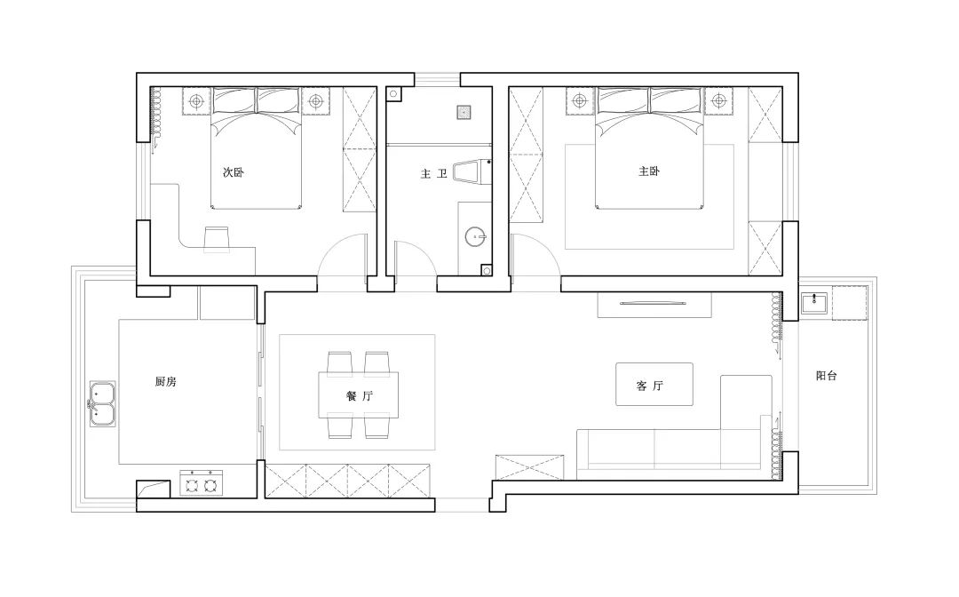
「原始结构图&平面布置图」
本案位于玄武区花园路 70 号,近 100㎡的两室两厅,在满足了业主居住需求的同时,充分保障了各区域的使用面积,营造出宽敞舒适、清朗通透的空间氛围。客厅
室内设计往往通过色彩、材质、形状进行组合再创造,在细节中知微感同,呈现出空间主人的喜爱偏好及家居习惯。客厅空间选用了低饱和度的主色调,降低人的视觉疲劳,给予居住者揽境于心的舒适感,爱马仕橙缀入高级灰的世界,增添了空间活力,热情洋溢却又不过分张扬。
Interior design is often re-created through the combination of color, material and shape, which shows the favorite preferences and home habits of the space owner.
The main color of low saturation is selected in the living room space to reduce people’s visual fatigue and give residents a sense of comfort. Hermes orange is decorated into the world of high-grade gray to add space vitality. It is full of enthusiasm but not too publicized.
餐 Dining Kitchen 厅
餐厅、客厅、厨房处于同一直线上,南北通透,动线顺畅。玄关柜和餐边柜二合一组合设计,一柜多用有效减少了占地面积,并满足了定制品多元功能的使用。米灰色烤漆门板及铝框黑玻的对称拼接在艺术光源的映衬下透露出轻奢的气质,提升了一日三餐的氛围感。
The dining room, living room and kitchen are in the same straight line, with transparent north-south and smooth moving line. The two in one combination design of porch cabinet and dining side cabinet makes one cabinet multi-purpose, which effectively reduces the floor area and meets the multi-functional use of customized products. The symmetrical splicing of beige painted door panel and aluminum frame black glass reveals the temperament of light luxury against the background of artistic light source, which improves the atmosphere of three meals a day.
半开放式厨房由玻璃移门进行隔断与闭合,增强了各空间的情感交流。“U”型布局在增加收纳面积、扩大使用面积的同时,让“洗”“切”“炒”的烹饪路线更为合理。烟机管道藏于柜内,保持了厨房整体设计的协调统一性,干净利落、秩序井然。
The semi open kitchen is separated and closed by the glass sliding door, which enhances the emotional communication of each space. The "U" layout not only increases the storage area and expands the use area, but also makes the cooking route of "washing", "cutting" and "frying" more reasonable. The flue gas pipe is hidden in the cabinet, which maintains the coordination and unity of the overall design of the kitchen, clean and orderly.
主 Master
Bedoom 卧
主卧选用了经典且不易过时的白色调,沿着空间结构定制极顶式衣柜,于外填补了墙面视觉上的留白,于内蕴涵着饱满丰盈的储物功能。深木色斗柜带来一丝庄重典雅的气息,木作与生俱来的温润和煦温暖了整个空间氛围。
The master bedroom adopts the classic white tone that is not easy to go out of date. The top wardrobe is customized along the spatial structure, which fills the visual blank on the wall outside and contains full and abundant storage function inside. The dark wood color bucket cabinet brings a trace of solemn and elegant atmosphere, and the inherent warmth of wood warms the atmosphere of the whole space.
次
Secondary
Bedoom
卧
次卧是女儿房,设计师将配色维持在暖色调,用干净明澈的淡蓝和低调素雅的米黄构建起一个舒逸悠闲的睡卧环境。转角处一体式“L”型书桌柜,以柔美的弧线磨平了空间棱角,不仅避免了孩子无意间的磕碰,也让墙立面整体视感更加和谐统一,流畅自然。
The second bedroom is the daughter’s room. The designer maintains the color matching in warm colors, and constructs a comfortable and leisurely sleeping environment with clean and clear light blue and low-key plain beige. The integrated "L" desk cabinet at the corner smoothes the edges and corners of the space with a soft arc, which not only avoids the unintentional collision of children, but also makes the overall visual sense of the wall facade more coordinated, unified, smooth and natural.
Shower Room
浴室柜门板表层覆着着与岩板台面同纹理的黑金石纹科技木皮,台下盆设计不破坏地柜的整体性。通体玻璃移门嵌至黑色型材组成的框架之内,有效地将干区与湿区进行划分,保障了浴室地面的干净整洁。
The surface of the bathroom cabinet door board is covered with black gold stone grain technology wood veneer with the same texture as the rock board table. The design of the basin under the table does not damage the integrity of the floor cabinet. The whole body glass sliding door is embedded into the frame composed of black profiles, which effectively divides the dry area and wet area, and ensures the cleanliness of the bathroom floor.
---END---
A good designer should get rid of too much glitz, return to the original, but not lose the aesthetic feeling. Nanjing Mingwang Home Decoration has hundreds of gold-medal designers who are good at various design styles and can tailor design plans for you.
公司地址:南京建邺区河西大街 66 号铭望家装
客服
消息
收藏
下载
最近




























