查看完整案例


收藏

下载
伍兹贝格为澳大利亚国民银行(NAB)在悉尼打造了一处双生空间,将遥距 24 公里的两个工作场所-NAB 3 Parramatta Square(3PS)和 NAB 2 Carrington St(2CS)-联系起来。设计突破空间的物理距离,以壮观的“红梯”作为两处办公场所的空间 IP,形成可容纳超过 6,000 名员工的 NAB 悉尼“办公园区”,同时也为银行工作场所体验的革新树立了标杆,通过统一的空间体验让其现有和新兴客户群产生联结。
In Sydney, there’s a red staircase that connects two workplaces located 24 kilometres apart. NAB 3 Parramatta Square (3PS) and NAB 2 Carrington St (2CS) are Woods Bagot’s fraternal twin workplace tenancies. Known by NAB as their “Sydney campus”, together these buildings accommodate over 6,000 desks, providing a rare opportunity to boldly transform the bank’s workplace experience in locations highly connected to both its established and emerging customer base.
▼2CS 概览,overview of 2CS
NAB 3PS 是“后起之秀”,它的落成帮助奠定了 Parramatta 作为悉尼新兴城市中心的基础。而 NAB 2CS 则位于悉尼成熟的 CBD 商业核心区,周围环绕历史建筑,使项目更像商业区中的“中流砥柱”。这样的双生概念体现在两处场所的空间布局、几何造型、动线规划、连接性和材料应用等各个面向。
The design response for the NAB 3PS project was informed by an ‘emerging’ project persona, with the project becoming a keystone for the establishment of Parramatta as Sydney’s Central City. In contrast, the heritage surrounds and well-tread CBD business hub at NAB 2CS brought forth an ‘established’ persona. These conceptual approaches informed all aspects of the workplace design, including the programmatic arrangement of space, geometry, movement, connectivity and materiality.
▼壮观的“红梯”作为两处办公场所的空间 IP,the ‘red-thread’ stairs
后起之秀
Emerging Persona
NAB 3PS 是一个 13 层、35,000 平方米的适应性工作场所。作为新兴城市中心的办公场所后起之秀,它位于 Parramatta 广场片区,处在大悉尼的中心位置,而这里也是澳大利亚规模最大的城市重建区域之一。
NAB 3PS is a 13 level, 35,000sqm adaptable workplace located in the heart of greater Sydney, central to one of Australia’s largest urban renewal projects, the Parramatta Square precinct.
▼3PS 中庭空间,3PSatrium
▼俯瞰中庭楼梯,view of the atrium
设计团队力求创造一个原始、惊喜、真实的美学空间来体现大悉尼的环境肌理,通过调整动线、优化布局及形式,呈现出一种空间分层交错的视觉感受,为区域内具有多元文化背景的客户群提供先锋的交互体验。
The project’s ‘emerging’ theme focused on creating a raw, surprising, authentic aesthetic, representative of the greater Sydney context and a culturally diverse demographic. Movement, spatial distribution and forms within the interior create a bold and interactive experience by intersecting and layering space.
▼空间分层交错的视觉感受
tocreate a bold and interactive experience by intersecting and layering space
▼开放办公区,open working space
办公低层空间与城市公共空间连通,有意向公众“揭开”银行内部运作的秘密,吸引客户和周边社群,打造一系列沉浸式空间,实现员工与城市生活的连接和共创,也为员工提供生活工作所需的便利配套。
The lower levels of the building encourage engagement with the public realm, deliberately ‘lifting the curtain’ on the inner workings of the bank by drawing the customer and community inward and providing a range of immersive spaces to enable connection and co-creation, as well as accessible amenity for staff.
▼俯瞰办公区,view oflower levels
▼办公低层空间与城市公共空间连通,the lower levels of the building encourage engagement with the public realm
▼沉浸式空间,immersive space
中流砥柱 Established Persona 相比之下,NAB 2CS 则是历史沉淀之下的中流砥柱,呈现出一种精致的空间美学。12 层、29,000 平方米的适应性工作场所一部分位于历史遗产 Shell House 建筑内,一部分位于一座新建的商业塔楼内。虽然横跨新旧两栋楼,但是设计创造性地通过一个中央中庭连接起两座大楼的办公空间,并成为能够俯瞰 Wynyard 公园巷道景观的稀有场所。
At NAB 2CS, an ‘established’ notion of identity is translated into a refined aesthetic. The 12 level, 29,000 sqm adaptable workplace occupies all commercial levels of the heritage listed Shell House, as well as a new commercial tower adjacent, with a central atrium connecting the two. Overlooking Wynyard Park, this rare park side address is harnessed with framed pockets of views across the treetops and down Wynyard Lane.
▼2CS 中庭空间,2CS atrium
高度灵活的设计也让 2CS 空间成为公园公共空间的延申。建筑一到四层面向公众开放,包括了一个微型分行和咖啡馆。入口处雕塑般的彩带造型形成了视觉焦点,是整栋建筑空间旅程的开始,也为客户和员工带来高端礼宾服务体验。
The workplace is designed as a highly flexible extension of this public realm, with the first four levels publicly accessible, incorporating a Micro Branch & Cafe. A sculptural entry ribbon forms a centrepiece, launching the circulation journey through the building, transporting customers and colleagues to an elevated concierge experience.
▼入口处雕塑般的彩带造型形成了视觉焦点,a sculptural entry ribbon forms a centrepiece
▼咖啡馆,a Micro Branch & Cafe
▼创意红梯和办公中庭交织在一起
the ‘red-thread’ stair creates movement and connection across the tenancy
在高层办公空间,设计团队进一步发展了 NAB 现有的工作场所战略,提供了一系列多样化的社交和协作空间,包括一个露天剧场、两个户外露台和一个巨大的交易楼层,所有这些设计都确保了 NAB 的员工能够享受到优越的便利设施。
On the upper levels, the workplace design evolves the existing NAB workplace strategy by providing a diversified suite of spaces for connection and collaboration, including an amphitheatre, two outdoor terraces and a vast dealing floor, all punctuated with a superior level of amenity for the bank’s support staff.
▼露天剧场,amphitheatre
通过在建筑空间引入有效的室内设计措施,我们成功地在 3PS 和 2CS 之间创造出统一的体验,无论在物理空间还是视觉维度上都让 NAB 的员工和客户感受到空间体验的一致性。”伍兹贝格合伙人分享道,“在两个空间中,创意红梯和办公中庭交织在一起,这一策略不仅整合了空间动线,还将 NAB 品牌特性转译成环境特征,让两大办公空间分享一致的场所精神。”
A unified experience is created across 3PS and 2CS, both physically and visually, through the introduction of meaningful interventions to the base building,” says Woods Bagot Principal Ian Lomas. “An innovative stair and void strategy are woven across both tenancies. The ‘red-thread’ stair not only creates movement and connection across the tenancy but is also a key mechanism for the translation of brand to environment, and unifies the spirit of the two locations.”
▼一系列多样化的社交和协作空间,a diversified suite of spaces for connection and collaboration
后疫情时代,工作场所的价值受到了前所未有的质疑。作为 NAB 和伍兹贝格十愈年合作的结晶,这两处标杆之作无疑为办公空间的未来注入了新的活力。
The two tenancies are the culmination of over a decade of collaboration between NAB and Woods Bagot, offering a new vitality to the workplace at a time when its value has never been more in question.
▼庭院一角,the courtyard
一个成功的工作场所设计是客户和设计团队长期共创合作的结果,两处空间的并行交付就是伍兹贝格和 NAB 共同交付的答卷。“随着和 NAB 长久合作关系的推进,”Stanaway 说,“设计团队对 NAB 品牌 DNA 的理解也越来越深入,我们不仅为 NAB 塑造出如墨尔本 Bourke 街 700 号等地标空间,体现出其现有品牌调性和设计独调性,也和 NAB 一起展望工作环境的未来,打造出真正能够定义品牌价值的办公空间。这一双生空间也成为伍兹贝格最为骄傲的设计案例之一。”
For one workplace to achieve this success, a uniquely reciprocal conversation between client and design team is needed. Two delivered concurrently can only be the result of a sustained, collaborative partnership – a dynamic that’s of rarefied air. “It’s a relationship that’s had time to evolve,” says Stanaway. “We’re as close to NAB’s DNA as we’ve ever been, its aspirations for the future of its workplace environments, and existing brand and design identity established by landmark projects such as 700 Bourke Street in Melbourne.” “Our collaboration has resulted in some of the most progressive workplace design solutions delivered by our team.”
▼3PS 夜景,night view of 3PS
▼2CS 夜景,night view of 2CS
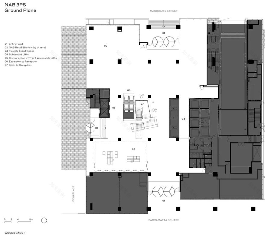
▼3PS 首层平面,3PS ground floor plan
▼3PS 二层平面,3PS level 1 floor plan
▼3PS 三层平面,3PS level 2 floor plan
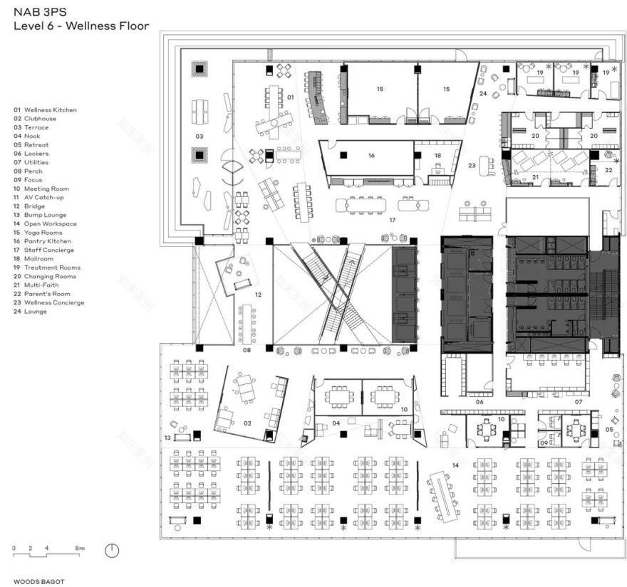
▼3PS 七层平面,3PS level 6 floor plan
▼3PS 九层平面,3PS level 8 floor plan
项目名称:NAB 3 Parramatta Square (3PS),NAB 2 Carrington St (2CS)
客户:澳大利亚国民银行
Client: National Australia Bank (NAB)
伍兹贝格服务内容:室内设计
Woods Bagot Scope: Interior fit out
完工情况:2022 年完工
Status: Complete in 2022
摄影:Nicole England,Woods Bagot,Trevor Mein
客服
消息
收藏
下载
最近





























