查看完整案例

收藏

下载
对于现代风格的阐述,除去轻奢风格的精致,质感十足的简约也是越来越多的别墅业主心中的“白月光”。并不是房子越大,就越是要塞满各种各样的东西,少就是多,简洁就是丰富,设计的描绘不仅仅是放东西进去,有的时候也是要“拿”东西出来。还原给空间最贴近生活的气息,在本次南岸花城的设计项目中,峰上大宅叶文彪老师便呈现出这样一个“丰富”的作品。
南岸花城
350 ㎡ 现代风格
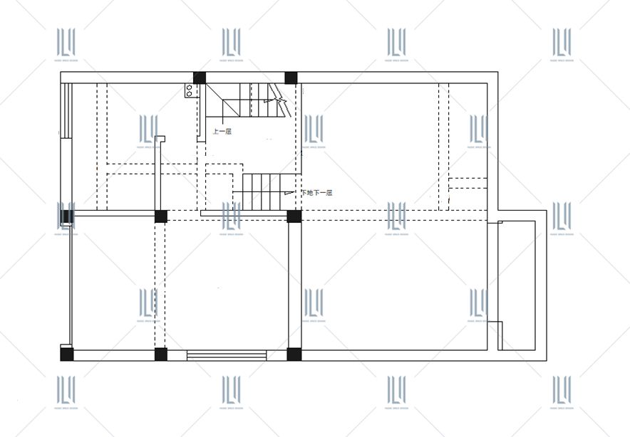
原始结构图
☞右滑查看
●
结构分析
:各个空间户型方正,方便室内家具布置;居室布局合理,动静分离,兼顾到了卧室和卫生间的私密性;客厅、卧室、卫生间和厨房等主要功能间的尺寸以及比例适中,居住起来舒适、方便;
●
采光分析
:全明通透户型,居住舒适度较高,整个空间采光充足,利于后期居住;
●
通风分析
:居室布局合理,南北通透,通风良好;
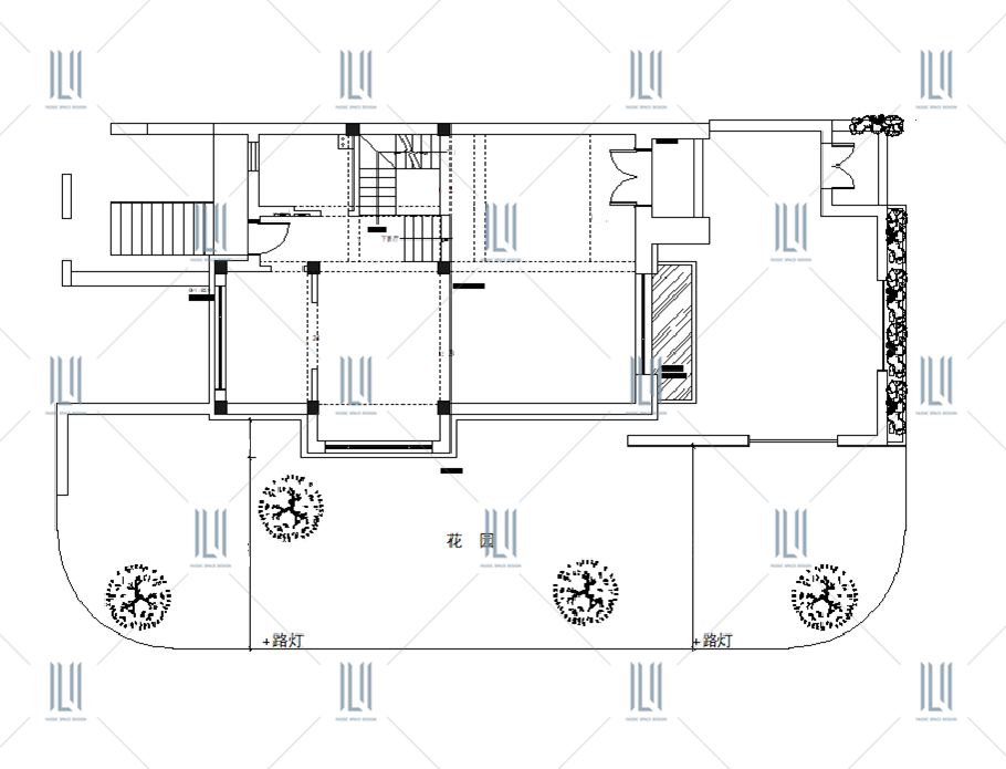
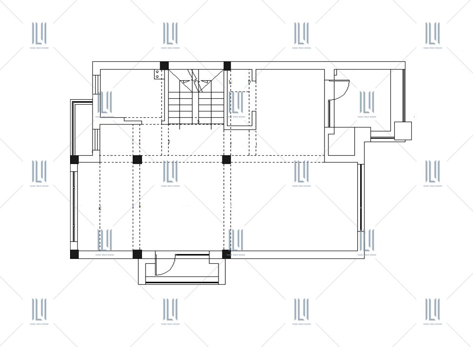
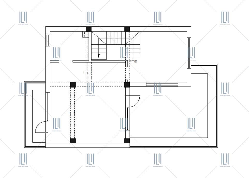
平面设计图
☞地下室
☞一层
☞二层
☞三层
●
户型调整
: 设计师合理充分利用空间,一层户外休闲区和地下室娱乐空间等为业主一家提供了休闲娱乐的活动区;三层增加书房,内做独立休息区域,保证主人的生活质量;卧室、玄关过道增加柜体,扩大储物功能; 地下室的功能划分极富有生活层次感,采光井的设计让地下室显得采光、通风极佳;整体空间功能上做了调整,把各空间功能区域连成一片,提升各个空间通达性。
意向效果图
▲客厅
回字形吊顶加上半开放式的布局,让空间有种向外延伸的视觉感。同时大面积光的进入,照映着光亮整洁的大理石面,使整个室内通透明亮。不论是吊顶还是沙发的摆放上,方正的布局带有一种中庸之感。但是设计师又在细节设计上突破,独立于外随意摆放的皮质沙发,以及不规则形金属灯,打破中规中矩带来的刻意与呆板,增添室内的舒适性。
▼卧室
卧室的设计简单又不失质感与格调,彰显别墅设计的大气,墙上的一幅幅具有现代感的壁画,意境深远,仿佛是从这间卧室开启走向另一空间的神奇之旅。
▲卫浴间
没有固定的搭配、没有固定的布局,简约的现代风格最大的特点在于自由思想所创造出的个人风尚,极大程度的展示出主人的喜好。设计师把地下室打造成连通的休闲空间,用半开放式的空间布局,用大面积矩形块面营造出错落有致的空间效果,温和的色彩,构造出浪漫的空间。描绘着业主一家崇尚自然,向往宁静的生活态度。
▼地下室
本案设计师
叶
文
彪
创意总监
设计理念:生活中的每一个瞬间,都可能是一个新设计的灵感。
从业13年
擅长欧式风格、法式风格、中式风格、新中式风格等。
案例:西湖墅,南岸花城,万科君望,桃源小镇荣锦苑,阳光天际,莱茵唐郡,荀庄,美林公馆,云水湾,富春玫瑰园,南江壹号,新华园,西溪玫瑰,个人别墅等。
荣誉奖项:
国家二级室内装饰建造师
《青年时报—风尚家居》设计奖
亚太空间设计师协会会员
亚太空间设计师联盟会员
即可预约设计师、在线预约设计方案
或拨打免费VIP专线:
4008-010-337
点
客服
消息
收藏
下载
最近




















