查看完整案例


收藏

下载
纯粹而博大的情感,是生命最动人心扉之处。一个好设计,要如同一部好片,不仅要能容纳故事、富有寓意,还要站在观赏者角度,让他们能从灯光、材质、色彩、空间布局等各方面感受到,设计师想要传递的情感与价值,置身于外物的繁华之上,提升对美好生活的期许。赢和愿助力每一位追求真正品质生活的业主实现期许。
项目信息 | Project information
项目地址| 拾乐府
设计风格 | 新中式风格
项目户型 | 别墅
项目面积 | 600m²
客厅
Living room
▼
瞥树影绰约、聆鸟鸣声声、忽嗅茗香满地,简洁质朴中溢出一番静谧之美。是否这番简约的闲绰这才是最抚慰人心的生活境界?
餐厅
Dining room
▼
时光的年轮中秘藏着缱绻相融、虚实相生的朦胧意境,远眺是山川绿林,近聆如窗烛话雨,长烟一空,浮光跃金,描摹出这动人一瞬。
房间
room
▼
林樾忽风起,浮翠悬窗牖,思绪飘荡间蓦见云彻雾卷,案牍之劳形也随着云烟淡去,偃仰啸歌,冥然境间,万籁皆有声。
内心忽为茅塞顿开后的阵阵欢悦所充盈,那是劳形褪却后舒畅惬然的悠逸之境,亦是人生澹泊方达远的豁达之境。
地下室
Basement
▼
一切都是恰如其分的舒适,却又无不处处显露着精心的设计考量,空间与光线、光线的剪裁、剪裁而出的绿意,在特定的时间段,如理想中的那般美妙生发,摇曳生辉。
花园
Garden
▼
溟蒙过后,光风霁月,轻柔的阳光在午后纷至沓来,铺洒在墙上、远处的地面上,沐浴着轻盈的光,生出一番温柔之感来。
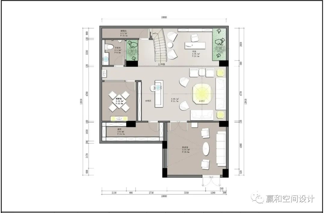
平面图
Plan
▼
— END —
我们一直寻求新的艺术与生活方式,尽可能将它的抽象美转化为具象的实在。
We are looking for the new expression of life andart,
trying to turn the abstractive beauty intothe concrete things
Come join up
深圳市赢和空间设计装饰工程有限公司
SHENZHEN YH SPACE DESIGN CO.,LTD
客服
消息
收藏
下载
最近
















