查看完整案例


收藏

下载
简是态度,是对生活的思考
奢是品位,是对气质的彰显
两者的默契,成就一室的璀璨之耀
客厅 X LIVING ROOM
整体空间以高级灰基调为主,搭配多种材料组合,在丰富了质感的同时,也体现出屋主优雅的气质与深厚的涵养,点缀以部分璀璨金色装饰,完美诠释了简奢的含义。
餐
厅
X DINING ROOM
味觉记忆的存续时间要远长于视觉和听觉,而每个家庭的餐厅则是承载了这份专属记忆的重要所在。
在氛围的营造上延续了整体简奢相织的默契,同时双餐厅的规划也满足了不同的需求。不论日常使用,还是隆重的家宴都信手拈来。
书房
X STUDY
静,是书房空间的主题。雅致的色彩选择,极简家具的布置,无一不是为了区别于这室外的喧闹与浮华,带有祥云壁纸的书柜更在这一室空间中添加了一丝文化的底蕴,拓展了一片思绪的宽广。
卧室
X
BED
ROOM
卧室往往是舒适的代名词之一,所以整体以暖色调为主,结合强度适当的光线,家的温馨立时展现。
在整体温馨舒适的基调下,兼顾到每个家庭成员的需求和喜好,差异化的设计与装饰送出一夜好梦。
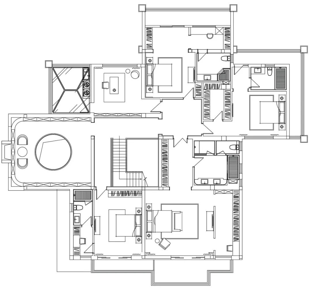
- 平面图 -
项目名称丨湖畔现代城
项目地址丨江苏常熟
项目面积
丨
750
m²
木作设计丨李运秋
木作定制丨三只喜鹊
客服
消息
收藏
下载
最近























