查看完整案例


收藏

下载
| 经典老房的整容级改造!|
一人居、小户型、一字户型……今天又是一个“化腐朽为神奇”的改造!现居住在上海的屋主是位单身小哥哥,买下这套小户型暂时自己住。房子是上海比较常见的狭长“一字型”老房,没有客厅和餐厅,倒是有两间卧室,内部空间的通风采光都很差。父母平时很少过来,所以不需要保留两室,屋主希望房子能更加明亮,有一个专属自己的舒适温暖独居小窝。
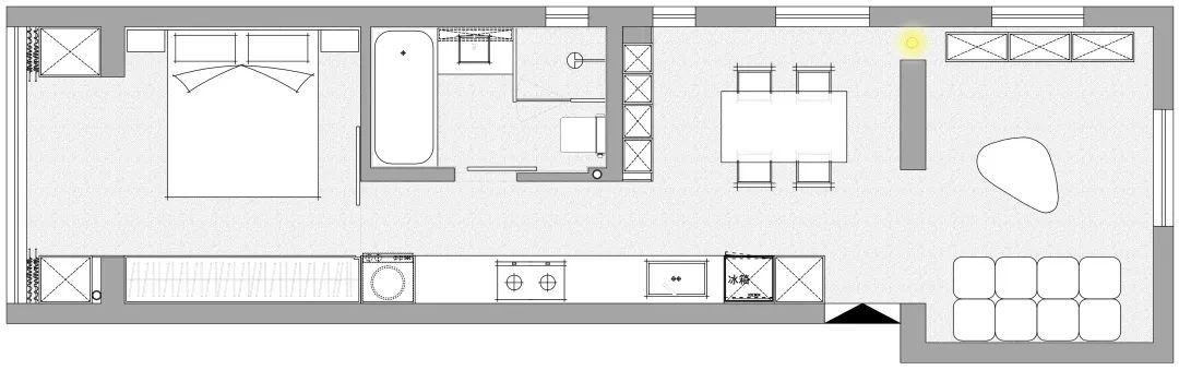
原户型是两室零厅一厨一卫,建面 54㎡,使用面积 45㎡。导致很大一部分空间都是过道,降低了整体的利用率。
改造前实拍,“小黑屋”既视感。
此外,户型没有玄关,进门缺乏收纳;厨房和卫生间都非常狭小,使用感较差;没有客餐厅不符合年轻人的生活习惯,两个卧室也占据了整个房子采光最好的位置。
1、进门左手边增加玄关收纳柜;
2、利用原过道设置开放式厨房,并嵌入冰箱洗衣机等;
3、原厨房和餐厅打通成为一个完整空间;
4、原朝北的卧室改为客厅;
5、卫生间由竖向改为横向,给厨房留出足够的操作空间,并适度增加宽度,可放入独立的浴缸、淋浴、台盆、马桶;
6、南阳台与卧室打通,衣柜调整到床对面与厨房并排,弱化收纳在空间中的存在感。
玄关
餐厅看向玄关。
进门左手边做了收纳柜,重塑原玄关缺乏的收纳功能,并通过调整卫生间形状以加宽过道,将玄关、厨房、卧室衣柜都整合于此,使得原本利用率极低的过道成为这个小家的一面强大收纳系统。
玄关看向餐厅、客厅。原朝北卧室打通改为客厅后,入户的第一视角就是四扇窗户,晴朗天气里的明媚阳光和清风涌入,原本的昏暗逼仄感一扫而空。家中没有做过度装饰,通过精心选择的高颜值成品家具,进一步增加空间的开阔感,通透的房子比任何装饰都让人感到幸福~客厅
进门右侧是由原次卧改造的客厅,通过一面部分打通的隔墙,与餐厅拉近了距离也保持了各自独立。
客厅完全按照屋主的生活来安排,打破了“沙发对电视”的传统布局。定制了 2100cm 长的斗柜,搭配实木包边的窗户,让窗景犹如一幅大型装饰画。在沙发上“躺平”时,可以直观感受到四季更替的美好。
对面是与斗柜同宽的定制沙发,灰白色系干净百搭,与整体很契合。灯光方面采用无主灯设计,不占用层高,通过吊顶内的灯带和沙发旁落地灯,打造使用场景更丰富的氛围感。餐厅
餐厅看向客厅。餐厅和客厅之间保留了部分原结构墙,T角的位置开了一条空隙,增加空间通透感的同时也让结构更有层次。80cm*1600cm 的长桌足够宽敞,既可以保障居家办公的舒适度,也可以 hold 住 6 人同时聚会。
餐厅灯选择一款球形纸灯,暖白色的灯光如水般氤氲出来,是日式特有的温柔雅致。搭配同样简约素雅的风景画,让墙体也成为一面装饰。
玄关柜、橱柜和餐边柜都选择暖白门板,增加光线漫反射,视觉上更显敞亮。为满足屋主的爱好,餐边柜中部留空作为咖啡角,也可搭配小家电方便工作日吃早餐。柜体其余部分设计了不同的收纳功能,地暖的器械也暗藏在餐边柜里。餐厅顶面做了吊顶,增加空间层次感。厨房
考虑屋主平时较少在家下厨,因此将厨房位置改到过道,设置为更敞亮的开放式。
厨房整体空间选用暖白色调柜板,搭配超白的石英石白台面,厨房电器也尽可能选择了白色系,让空间整体感更强,视觉上简洁清爽。
相比容易投下阴影的顶灯,在顶柜中加装灯带显然更好用。一字型布局将洗-切-炒依次排开,符合下厨习惯,动线简便。
卫生间门口设置了高柜,将洗衣机、烘干机叠放于此,小户型就是要榨干每一寸空间。卧室
过道尽头的卧室没有选择传统平开门,采用移门可以最大化保留采光。
卧室看向厨房,门体是定制的,烤漆搭配实木线条,给空间增添几许中古质感。
臥室床头与房门是一体化定制的,软包和实木线条搭配的床头,样式统一让空间更加简洁。顶面没有做传统的顶灯,只在床头和阳台上留了灯带和筒灯,对于照明来说完全足够了。
阳台设计了一个全身镜的柜门,用镜面反射增加空间层次感,也满足也满足屋主打理仪表的需求。
定制的实木床头柜,床头一体化让空间更显高级。
卫生间
通过借用部分餐厅区域扩大卫生间,做了独立的淋浴区和浴缸区,以透明玻璃房形式实现干湿分离。
选用奶油系小手工砖增添质感,悬浮台盆搭配嵌入式龙头保持简洁,独立的淋浴和马桶区也便于清理。
通过合理调整空间布局,让小户型的卫生间也能实现泡澡,可谓是成年人结束每一天忙碌的完美句号。
今天这个小户型一人居就讲完啦,曾经的狭长昏暗“小黑屋”,变成如今温馨敞亮的模样,你羡慕了没?
房屋信息
项目地址:上海
使用面积:45㎡
客服
消息
收藏
下载
最近






























